Springe auf Hauptinhalt Springe auf Hauptmenü Springe auf SiteSearch

Trinkwassernetze — Pi mal Daumen oder BIM-gerecht in 3D?

Trinkwasser ist ein Lebensmittel und das fach- und bedarfsgerecht ausgelegte Trinkwassernetz die Verpackung. Dazu gehören Rohre und Absperrventile genauso wie der Warmwasserspeicher, die Zirkulationspumpen und die Ermittlung notwendiger Volumenströme.

Trinkwasser ist ein Lebensmittel und das fach- und bedarfsgerecht ausgelegte Trinkwassernetz die Verpackung. Dazu gehören Rohre und Absperrventile genauso wie der Warmwasserspeicher, die Zirkulationspumpen und die Ermittlung notwendiger Volumenströme. Mit „ Wasser 3D “ aus dem Hause Hottgenroth/ETU erhält das Fachhandwerk eine maßgeschneiderte Softwarelösung zur Berechnung und Auslegung. Die Software garantiert durchgängige Projektplanung bis hin zur Erstellung von Stücklisten und der Ausgabe eines Strangschemas.

Die Berechnung entspricht den Anforderungen der novellierten Trinkwasserverordnung DIN 1988-300. Der Spitzenvolumenstrom wird nach einem neuen Berechnungsmodell für verschiedene Gebäudetypen bestimmt. Außerdem können Nutzungseinheiten anlegt werden, um eine bessere Erfassung der Spitzenbelastung im Stockwerksbereich zu erreichen. Das Programm ermöglicht die Berechnung eines Trinkwassernetzes mit – im Lieferumfang enthaltenen – umfangreichen Herstellerdatensätzen oder vom Benutzer selbst angelegten Herstellerdaten. Ebenfalls möglich ist eine produktneutrale Auslegung des Netzes entsprechend der Vorgaben der DIN 1988-300. Hierzu wird insbesondere eine Bestimmung der Druckverlustbeiwerte (Zeta-Wert) für Abzweige normkonform durchgeführt. Druckverluste von Armaturen und Formteilen werden DIN-abhängig ermittelt.

 

 

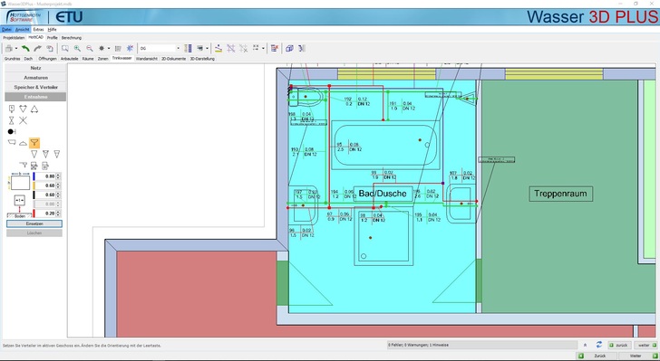
Besonderes Highlight: Als Erweiterung zur klassischen 2D-Schemadarstellung lässt sich in „ Wasser 3D “ das Leitungsnetz direkt in HottCAD zeichnen. Das in den meisten Programmen von Hottgenroth/ETU integrierte CAD-Modul erleichtert die Gebäudeerfassung und ermöglicht die ganzheitliche Planung im dreidimensionalen Gebäudemodell. Beim Einzeichnen der geplanten Rohrleitungen im Grundriss werden automatisch alle benötigten Teilstrecken erfasst und zur Berechnung weitergegeben. Assistenten vereinfachen das Zeichnen und unterstützen die zügige Fertigstellung von Plänen. Detaillierte Exportfunktionen von DWG/DXF ermöglichen die Weiterverarbeitung in anderen Programmen.

Mit „ Wasser 3D “ und „ Wasser 3D PLUS “ werden Wasserversorgungsanlagen im Hinblick auf die hygienische Qualität des Trinkwassers effizient und sicher ausgelegt. Weitere Informationen finden Sie hier .