 
    © Geberit
              
        Praxisbezug im Studium: Gemeinsam mit dem Lehrpersonal haben Versorgungstechnik-Studenten der FH Bingen eine Trinkwasser-Versuchsanlage aufgebaut.
      
      Trinkwasserhygiene live
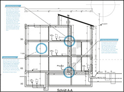
„Die Anlage zeigt auf, welche Möglichkeiten es gibt, die Verkeimung in Trinkwassersystemen zu vermeiden“, erläutert Prof. Andreas Winkels. „Die Studenten können die Spülungen von Armaturen, WC und Urinalen über die Schaltkästen selbst aktivieren und dann direkt verfolgen, wie sich unterschiedliche Leitungsführungen auf die Durchströmungen auswirken und wie automatische Spülvorgänge eine Stagnation vermeiden können.“ Zur exakten Bestimmung von Messwerten sind in den Versuchsstand drei Anzeigentafeln integriert. „Die digitalen Anzeigen messen den Anteil des Wassers in den einzelnen Rohrabschnitten, um den Grad der Durchspülung bestimmen zu können“, erklärt Prof. Winkels die Funktionsweise der Anlage.Industriepartnerschaften für fachlichen Austausch
Zur 
    © Geberit
              
        Die Anlage demonstriert typische Problemfelder rund um die Trinkwasserhygiene. Über die Schaltkästen aktivieren die Studenten die Spülungen. An den Anzeigen lesen sie die Durchspülungsaktivitäten ab.
      
       
     
     
    