Springe auf Hauptinhalt Springe auf Hauptmenü Springe auf SiteSearch
Software-Programme und -Tools

Simulieren, konfigurieren, visualisieren

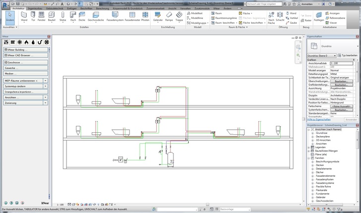
liNear, 6.0 B97: Viele Anwender warten schon seit Langem auf die Funktionalität, innerhalb von Revit ein 2D-Strangschema erstellen zu können. liNear präsentiert jetzt die Lösung: Mit dem aus der AutoCAD-Welt bekannten liNear-Schemagenerator können nun auch Schemata in Revit erstellt werden: Alle Komponenten sind dabei echte Revit-Families mit normgerechter Symbolik. www.linear.de

 

Hottgenroth / ETU, 6.1 B11: Das Simulations-Komplettpaket 3D Plus besteht aus den Modulen Gebäude-Simulation, Kühllast, WP-Simulation, KWK-Simulation und PV-Simulation, jeweils in der 3D Plus-Version. Es bietet direkte technische und wirtschaftliche Vergleiche, die kombinierte Simulationen von Anlagentechniken (z.B. PV und Wärmepumpe), die kombinierte Ergebnisanzeige von Simulationen und die kombinierte Dokumentation von Berechnungen. www.hottgenroth.de

 

Palette CAD, 3.1 C99A und 9.2 A05: Wer sich vorab mit einer VR-Brille in seinem neuen Bad umschauen kann, ist von diesem Erlebnis begeistert. Materialien, Farben, Größen- und Lichtverhältnisse – all das wirkt absolut real. Wer mit dieser Technik emotional verkaufen kann, der hat den Kunden auf seiner Seite. An den Ständen kann man VR-Brillen testen. www.palettecad.de

 

MEZ-Technik, 11.1 B14: Die auf e-klimaX basierende Software m-klimaX eignet sich für die Luftkanalbestellung per Smartphone oder Tablet-PC (Android). Eine maßstabsgetreue grafische Anzeige sowie standardisierte Abläufe vermeiden Fehler und Rückfragen und ermöglichen kurze Lieferzeiten. www.mez-technik.de

 

AL-KO Therm, 11.0 C49: Mit dem Auslegungsprogramm „AL-KO Air Cloud“ können auf individuelle Bedürfnisse zugeschnittene RLT-Geräte in nur wenigen Auswahlschritten konfiguriert werden. Im Hintergrund wird dazu die AL-KO-Datenbank Klim@Soft genutzt. Der Vorteil: Es werden nicht, wie bisher üblich, vorgefertigte Gerätekonfigurationen (Templates) verwendet, sondern tatsächliche Daten in Echtzeit verarbeitet. Das Resultat sind belastbare Leistungsdaten, die auch für Ausschreibungen verwendet werden können. www.al-ko.com

 

Solar-Computer, 6.1 D31: GBIS integral kombiniert die 3D-Planung von Trinkwassernetzen in Revit mit normbasierten Berechnungen und Datensätzen nach VDI 3805. Dialoge zum Editieren rechenrelevanter Daten sind direkt in Revit integriert; Zeichnen und normbasiertes Rechnen sind bidirektional verzahnt. Projekte lassen sich durch das Aufsetzen einer fabrikatspezifischen Ausführungsplanung auf eine produktneutrale Vorplanung zur Ausschreibung sekundenschnell anpassen. www.solar-computer.de

 

Wolf (Klima), 11.0 B11: Der „2-Minuten-Konfigurator“ ermöglicht eine Schnellkonfiguration von Klimageräten im frühen Planungsstadium mit groben Eckdaten, liefert jedoch präzise Angaben zu Dimensionen, Gewicht und Kennzahlen – am PC, am Smartphone oder Tablet-PC. Das Ergebnis gibt es in nur 2 Minuten. Neben 2D- und 3D-Zeichnungen und Datenblättern kann auch eine BIM-Datei für Autodesk Revit ausgegeben werden. www.wolf.eu

 

Orca, 10.1 FOY02: Bei der Version Orca AVA 22 wird in der IFC-Mengenübernahme das Projekt als dreidimensionales Konstruktionsmodell dargestellt. Einzelne Bauteilgruppen können ein- oder ausgeblendet werden. Die 3D-Visualisierung korrespondiert mit tabellarischen Sichten, in denen die Daten in hierarchischen Baumstrukturen sortiert sind. Sie ermöglichen übersichtliches Navigieren und erleichtern den Zugriff auf die enthaltenen IFC-Daten. www.orca-software.com

 

Stabiplan, Gang 5.1 / 6.1 V19: Der Schwerpunkt der neuesten Version 11 von Stabicad liegt in der schnellen und flexiblen Planung und Änderung durch intelligente Tools und Assistenten zur Unterstützung der Konstruktion in Revit. Durch Berechnungsmodule sind laut Anbieter Schritte gesetzt, um auch die deutschen DIN-Normen zu unterstützen. www.stabiplan.de