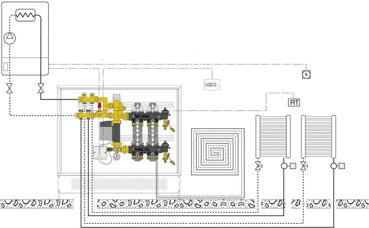
Um eine bestehende Heizungsanlage mit Radiatoren einfach um eine Fußbodenheizung erweitern zu können, hat Caleffi sein Programm um den Festwerttemperaturregler der Serie 182 ergänzt: Eine thermostatische Regelstation zur konstanten Vorlauftemperaturregelung von Fußbodenheizkreisläufen – und bei Bedarf – zur parallelen Anbindung von Radiatoren. Dafür ist ein spezielles Bypass-Set erhältlich. Der Festwertregler arbeitet ohne Fremdenergie. Die Reglereinheit ist mit einem Drei-Wege-Thermostatventil und einem Sicherheitsthermostat zur Abschaltung der Sekundärkreispumpe bei 55 °C ausgestattet und kann zwischen 25 und 55 °C eingestellt werden. Der Festwerttemperaturregler verfügt über Anschlussverschraubungen für DN-25-Umwälzpumpen, die Heizkreispumpe ist nicht im Lieferumfang enthalten. Das optionale Bypass-Set (mit einstellbarem Überstromventil) zum Anschluss von Radiatoren wird vor dem Festwertregler eingebaut.
Caleffi
63165 Mühlheim am Main
Telefon (0 61 08) 9 09 10
 
     
     
     
     
     
     
    