Springe auf Hauptinhalt Springe auf Hauptmenü Springe auf SiteSearch
Dezentrale Wohnungslüftung

Nutzerunabhängig unter Schrägdächern lüften

Kompakt informieren

  • Dezentrale Wohnungslüftung punktet in vielen Belangen: Ein günstiger Preis, eine einfache Integration in das Gebäude, wenige Schnittstellen, weitgehend neutral für die Bauzeit. Zusätzlich gibt es eine höhere Flexibilität bei der Anpassung an den tatsächlichen Bedarf.
  • Mit Velux Smart Ventilation steht nun ein Dachfensterlüfter zur Verfügung, mit dem die dezentrale Wohnungslüftung mit Wärmerückgewinnung auch in Räumen mit Dachschräge(n) einfach zu realisieren ist.

Die Hülle von Neubauten und energetisch sanierten Gebäuden wird heutzutage meistens sogar deutlich besser als es die Energieeinsparverordnung (EnEV) vorsieht gedämmt und dauerhaft nahezu luftundurchlässig abgedichtet. Eine natürliche Infiltration ist somit kaum noch vorhanden, sodass in der Regel weitere Maßnahmen zur Sicherstellung einer gesunden Raumluftqualität und der Abführung von Feuchtelasten aus den Räumen erforderlich sind.

Deshalb verlangt die EnEV neben der luftdichten Ausführung der Gebäudehülle seit 2009 auch die Sicherstellung eines Mindestluftwechsels, um den Feuchteschutz zu gewährleisten. DIN 1946-6 (Ausgabe Mai 2009, zurzeit in der Überarbeitung) konkretisiert die Anforderung dahingehend, dass eine Lüftung zum Feuchteschutz unabhängig von der Anwesenheit der Nutzer sichergestellt werden muss. Das bedeutet, dass zum Feuchteschutz des Gebäudes etwa alle sechs Stunden die Raumluft einmal komplett ausgetauscht werden muss, ohne dass die Mieter oder Eigentümer selbst eingreifen.

Diese Regelung sieht DIN 1946-6 für alle Neubauten und jede Modernisierungsmaßnahme vor, bei der mehr als ein Drittel der vorhandenen Fenster ausgetauscht oder mehr als ein Drittel der Dachfläche saniert wird. In diesen Fällen muss der verantwortliche Planer mit einem Lüftungskonzept aufzeigen, dass der von DIN 1946-6 geforderte Mindestluftwechsel für den Feuchteschutz nutzerunabhängig – also automatisch oder automatisiert erfolgt. Die wesentlichen Parameter bei der Berechnung sind Art und Wärmeschutzniveau des Gebäudes sowie die Windintensität am Standort.

Erfolgt der Mindestluftwechsel nicht automatisch über die natürliche Infiltration durch die Gebäudehülle, muss der Planer darlegen, wie er mit lüftungstechnischen Maßnahmen den erforderlichen Luftwechsel sicherstellt. In diesen Fällen wird die Wohnraumlüftung in der Regel mit mechanischen Lüftungsanlagen mit und ohne Wärmerückgewinnung geplant. Immer häufiger handelt es sich hierbei um dezentrale Lösungen, da sie in einer Gesamtbetrachtung zu zentralen Systemen kostengünstiger sind und einfacher zu installieren und zu warten sind.

Dezentrale Lüftungslösungen …

Bei Wohnräumen im Erdgeschoss können dezentrale Lüftungssysteme meist einfach und unkompliziert in Außenwände oder Fassadenfenster eingebaut werden. „Spricht man mit Fachplanern jedoch über das Thema Lüftung oder Mindestluftwechsel im Dachgeschoss, so besteht Einigkeit, dass die Belüftung bisher nur mit viel Aufwand, Kosten und Abstrichen an der Ästhetik zu realisieren ist. Denn gängige dezentrale Lüftungssysteme können nur in die Wände oder Fenster auf den Giebelseiten eingesetzt werden“, weiß Lüftungsplaner Lutz Jurjahn von Brüggemann Energiekonzepte, Stelle. „Auf diese Weise lassen sich zwar die direkt angrenzenden Räume belüften – nicht jedoch die Räume ohne Außenwand, beispielsweise Dachgeschossräume in einem Reihenmittelhaus“, so der staatlich geprüfte Hochbau-Techniker weiter.

Eine bislang häufig eingesetzte Lösung für Situationen unter dem Schrägdach, in denen kein Wandlüfter eingebaut werden kann, besteht aus kleinen Gauben für die dezentralen Lüfter, welche in das Dach eingebaut werden. „Deren Montage ist jedoch sehr teuer, aufgrund der Dichtmaßnahmen kompliziert und optisch wenig ansprechend“, beschreibt Jurjahn das Problem.

… auch für die Dachschräge

Mit Velux Smart Ventilation, einem Fensterlüfter mit Wärmerückgewinnung für Dachfenster, gibt es jedoch eine bei vielen Lüftungsplanern noch nicht so bekannte Lösung, mit der sich die Dachgeschossbelüftung einfach lösen lässt: Der Fensterlüfter wird einfach oberhalb des Velux-Dachfensters anstelle des Markisenkastens installiert. Eine zusätzliche Öffnung im Dach ist dafür nicht erforderlich.

„Das Dachfenster ist ja bereits vorhanden – es muss also kein weiteres Loch ins Dach gemacht werden“, erklärt Jurjahn den großen Vorteil des Systems. „Die Montage kann – auch nachträglich – ganz einfach durch eine Person erfolgen und ist in etwa einer dreiviertel Stunde erledigt, während beim Einbau von Lüftungsgauben verschiedene Gewerke eingesetzt oder koordiniert werden müssen.“ Weiterer Pluspunkt: Im Inneren ist der Fensterlüfter nicht sichtbar. Dabei kann Smart Ventilation mit den dezentralen Lüftungssystemen in Giebel und Fassade kombiniert werden und stellt genauso wie diese den geforderten Mindestluftwechsel in dem entsprechenden Raum sicher.

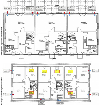
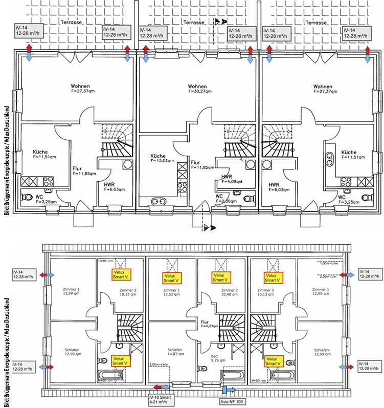
Lüftungskonzept für Dreier-Reihenhaus

Wie das in der Praxis funktioniert, zeigen das Lüftungskonzept und Umsetzung bei einem Reihenhaus-Neubau der Adolf Scharnweber Hochbau GmbH, Sterley, mit drei Wohneinheiten Abb. 1. Alle drei Reihenhäuser verfügen im Erdgeschoss über Wohnzimmer, Küche, Hauswirtschaftsraum und Gäste-WC. Fenster bzw. Terrassentüren versorgen die Räume mit Tageslicht und bieten die Möglichkeit zu lüften. Nur beim Hauswirtschaftsraum im Mittelreihenhaus handelt es sich um einen gefangenen Raum ohne Fenster.

Im Dachgeschoss, das man über ein offenes Treppenhaus erreicht, befinden sich jeweils drei Zimmer und ein Badezimmer. Fassadenfenster sorgen in den an die Giebel angrenzenden Dachgeschossräumen der beiden Endhäuser für Tageslicht. In den nach Süden ausgerichteten Räumen unter dem Schrägdach wurden in allen drei Wohneinheiten Dachfenster von Velux verbaut. Auch die nach Norden ausgerichteten Badezimmer der beiden Endhäuser wurden mit Dachfenstern ausgestattet. Im Mittelhaus versorgt dagegen eine Gaube sowohl das Schlafzimmer als auch das Badezimmer mit Licht. Die Wohnfläche der beiden Endhäuser beträgt 109 m 2 , die des Mittelhauses 114 m 2 .

Da es sich bei dem Projekt um einen Neubau handelt, war für alle drei Wohneinheiten ein Lüftungskonzept nach DIN 1946-6 obligatorisch. Dieses erstellten die hiermit beauftragten Lüftungsplaner von Brüggemann Energiekonzepte mithilfe eines Berechnungstools von inVENTer. Jurjahn: „Da es sich jeweils um zweigeschossige Wohneinheiten mit offenem Treppenhaus handelt, hätte man eigentlich annehmen können, dass keine zusätzlichen lüftungstechnischen Maßnahmen getroffen werden müssen. Unsere Berechnungen ergaben jedoch, dass die natürliche Infiltration bei keiner der drei Wohnungen ausreicht, um den erforderlichen Mindestluftwechsel für den Feuchteschutz sicherzustellen.“

Im Erdgeschoss sahen die Lüftungsplaner deshalb jeweils zwei inVENTer-Wandlüfter iV-14 mit Wärmerückgewinnung vor, die in den Wohnzimmerwänden installiert wurden Abb. 2. Sie sind mit Feuchtesensoren ausgestattet und tauschen zwischen 12 und 28 m 3 /h Raumluft aus. In Küche, Gäste-WC und Hauswirtschaftsraum wurde in Absprache mit dem Bauherrn auf die Installation von Lüftungselementen verzichtet.

Um in den Dachgeschossen den Mindestluftwechsel sicherzustellen, wurde in den an die Giebel angrenzenden Zimmern der beiden Endhäuser jeweils ein iV-14 Wandlüfter installiert.

Zudem wurden in allen drei Wohneinheiten die Dachfenster in den Räumen ohne Giebelwand mit Velux Smart Ventilation ausgestattet, insgesamt sechs Stück Abb. 2. Der Einzelraumlüfter arbeitet mit einem Doppel-Kanalsystem, bei dem der Luftvolumenstrom wechselseitig und miteinander synchronisiert durch Wärmeregeneratoren geführt wird. Dies sorgt für einen ausgeglichenen Luftwechsel im Raum und einen Wärmerückgewinnungsgrad von bis zu 81 %. Je nach Einstellung gewährleistet Velux Smart Ventilation so einen Austausch von 11 bis 25,5 m 3 /h (siehe auch Info-Kasten).

Im Mittelhaus sorgen in den Seitenwänden der Gaube installierte Wandlüfter für den notwendigen Luftwechsel in den angrenzenden Räumen. Im Schlafzimmer wurde hierfür ein Wandlüfter iV-12 mit Wärmerückgewinnung installiert, im Badezimmer ein Avio NF 100 Lüfter ohne Wärmerückgewinnung Abb. 2. Dieser sorgt dafür, dass feuchtwarme Luft, beispielsweise nach dem Duschen, direkt abtransportiert wird. Die Nachströmung erfolgt dabei von innen durch Lüftungsschlitze in den Türen.

Fazit

Die Kombination der Wandlüfter von inVENTer und Dachfensterlüfter von Velux ermöglichte es, den Mindestluftwechsel sowohl im Erdgeschoss als auch Dachgeschoss einfach und kostengünstig sicherzustellen Abb. 3. Dabei war insbesondere der Einsatz von Smart Ventilation für Lüftungsplaner und Bauherrn von großer Bedeutung, denn der als Zubehör erhältliche Fensterlüfter lässt sich oberhalb vorhandener Velux-Dachfenster installieren, das Unterdach bleibt dabei unberührt. Das spart nicht nur Zeit und Kosten, sondern minimiert auch die Gefahr von Undichtigkeiten in der Dachhaut.

Velux Smart Ventilation …

… ist der erste Lüfter mit Wärmerückgewinnung für Dachfenster (Dachneigungsbereich 20 bis 60°). Mit einem Doppel-Kanalsystems, bei dem der Luftvolumenstrom wechselseitig und miteinander synchronisiert durch Wärmeregeneratoren geführt wird. Die Zuluft gelangt durch die Lüftungsklappe des Dachfensters in den Raum. Das System erreicht einen Temperaturänderungsgrad der Wärmerückgewinnung bis zu 81 % gemäß der ErP(Öko-Design)-Umsetzungsverordnungen und einen korrigierten Wärmebereitstellungsgrad nach DIBt-Richtlinien von 76 %. Die elektrische Leistungsaufnahme variiert in den neun Lüftungsstufen zwischen 2 und 6 W (mit G3-Filter). Die Filter lassen sich mit einem Handgriff wechseln, ein gelbes Licht an der Bedieneinheit leuchtet auf, wenn sie nach etwa 4000 Betriebsstunden ausgetauscht werden müssen. Detaillierte Infos und Daten auf www.velux.de: www.bit.ly/tga1085

Kontakt zu den Anbietern

Velux

22527 Hamburg

Telefon (08 00) 3 24 24 07

architektur@velux.de

www.velux.com

inVENTer

07751 Löberschütz

Telefon (03 64 27) 2 19 20

info@inventer.de

www.inventer.de

Jetzt weiterlesen und profitieren.

+ TGA+E-ePaper-Ausgabe – jeden Monat neu
+ Kostenfreien Zugang zu unserem Online-Archiv
+ Fokus TGA: Sonderhefte (PDF)
+ Webinare und Veranstaltungen mit Rabatten
uvm.

Premium Mitgliedschaft

2 Monate kostenlos testen