Springe auf Hauptinhalt Springe auf Hauptmenü Springe auf SiteSearch
Reihen- und Ringleitungen als Stockwerksinstallation

Stagnationsrisiko vermeiden

„Stagnation gilt als eine wesentliche Ursache für die hygienische Be­einträchtigung der Trinkwassergüte.“ [3]. An dieser Einschätzung hat sich seit dem ersten Viega-Fachbuch „Leitungsanlagen in der Gebäudetechnik“ aus dem Jahr 2001 bis heute nichts geändert. Genauso wenig wie an der daraus abgeleiteten Empfehlung, schon in der Planungsphase Stichleitungen möglichst zu vermeiden, stattdessen auf Reihen- oder Ringleitungssysteme (Bild 2) zu setzen und häufig benutzte Hauptverbraucher am Ende einer Rohrleitung zu platzieren: So lässt sich auch an selten genutzten Entnahmestellen das Stagnationsrisiko weitestgehend reduzieren, da der Hauptverbraucher (z.B. ein WC) am Ende den regelmäßigen Wasseraustausch der davor liegenden Installation sicherstellt [4]. Ist in der Stockwerksverteilung ein Ringsystem zu installieren, sollte bei der Dimensionierung zur Ermittlung der Druckverluste im hydraulisch ungünstigsten Fließweg auf jeden Fall mit dem differenzierten Berechnungsgang nach der zukünftigen DIN 1988-300 gerechnet ­werden [1, 2]. Solche differenzierten Bemessungen sind „zu Fuß“ sehr zeitaufwendig. Für die Planung empfehlen sich Software­lösungen, mit denen komplexe Trinkwassersysteme berechnet werden können.

Keine Ring- mit „Rest-Stichleitungen“

Voraussetzung dafür ist bei beiden Installationsvarianten allerdings, dass es sich um „echte“ Reihen- oder Ringleitungssysteme handelt. In der Praxis finden sich hingegen immer wieder Ringleitungen, an die der eigentliche Verbraucher immer noch über eine T-Stück-Installation angebunden ist (Bild 3). Trotz der recht kurzen Strecke stellt diese Anbindeleitung einen nicht regelmäßig durchströmten Rohrleitungsabschnitt mit entsprechend hohem Verkeimungsrisiko dar.

Hinzu kommen die vermeidbaren Druckverluste, wie sie für verzweigte Rohrleitungsnetze typisch sind: In Stockwerksleitungen kann es deswegen zu Komforteinbußen kommen, beispielsweise durch abrupte Temperaturwechsel wegen der gleichzeitigen Nutzung weiterer Zapfstellen.

Fachgerecht ausgeführte Reihen- und Ringleitungssysteme zeichnen sich hingegen durch die Anbindung der Zapfstellen über durchströmte Wandscheiben aus (Bild 9). So ist immer ein regelmäßiger Wasseraustausch bis unmittelbar vor der Entnahmestelle gewährleistet. Zudem sind die Druckverluste in strömungsoptimierten Systemen um ein Vielfaches geringer als bei T-Stück-Installationen [5]. Vor allem bei umfangreichen Reihenleitungssystemen können diese reduzierten Druckverluste bei genauer Auslegung zu einer Verringerung der Nennweite führen [6]. Das wiederum trägt zum Erhalt der Trinkwassergüte bei, da das nun geringere Wasservolumen der Stockwerksleitung im regulären Betrieb häufiger ausgespült wird.

Wann welches System?

Sobald Trinkwasseranlagen etwas komplexer werden, scheiden Stichleitungen – also die direkte Anbindung von Zapfstellen etc. über Einzelanschlussleitungen – als Installationsvariante aus. Ob dann aber eher Reihen- oder doch besser Ringleitungssysteme als Alternative installiert werden, ist nicht immer eindeutig zu beantworten. Hier hilft nur die differenzierte Betrachtung jedes Einzelfalls weiter, da auch Mischlösungen oder Installationen, zum Beispiel mit ergänzender „Zwangsspülung“, denkbar sind, um den bestimmungsgemäßen Betrieb abzusichern [7]. Fünf häufig vorkommende Beispiele geben eine Entscheidungshilfe.

Fazit

Die Gegenüberstellung unterschiedlicher Installationsaufgaben von Trinkwasseranlagen zeigt deutlich, dass es keine universelle Antwort auf die Frage „Reihen- oder Ringleitungssystem?“ geben kann. Stattdessen ist die Betrachtung jedes Einzelfalls mit planerischem Sachverstand notwendig: Wie sieht der bestimmungsgemäße Betrieb der Anlage aus, wo könnten sich Nutzungsunterbrechungen mit Gefährdung der Trinkwasserhygiene durch Stagnation ergeben und mit welchen Maßnahmen lässt sich das effizient und wirtschaftlich verhindern, sind einige der Gesichtspunkte, die in diese Betrachtung ­einfließen müssen.

Für die tägliche Arbeit des Fachplaners empfehlen sich daher ent­sprechend ausgestattete Softwarepakete, die einen direkten ­Vergleich der unterschiedlichen Installationsvarianten ermöglichen. Viega hat dafür in das Softwarepaket „Viptool“ einen speziellen Rechenalgorithmus integriert, der selbst die komplexe Auslegung von Ringleitungen ermöglicht. Das Modul ­Hy­giene+ unterstützt dabei die druckverlustarme, „schlanke“ Planung durch verbesserte Visualisierung aller wichtigen hydraulischen ­Aspekte im Rohrnetz, beispielsweise eine Spülsimulation.

Welche Einflussfaktoren dabei für die Aus­legung gelten und welche Wechselwirkungen bei Veränderungen der ver­schiedensten ­Parameter entstehen, wird in der TGA-Ausgabe 09-2010 ausführlich dargestellt.

Literatur

[1] DIN 1988-3 Technische Regeln für Trinkwasser-Installationen (TRWI); Ermittlung der Rohrdurchmesser; Technische Regel des DVGW. Berlin: Beuth Verlag, Dezember 1988

[2] Rudat, K.: Zukünftige Regeln für die Bemessung von ­Trinkwasser-Installationen. Stuttgart: ­Gentner Verlag, TGA 01-2010

[3] Viega (Hrsg.): Leitungsanlagen in der Gebäudetechnik II; Grundlagen, Technische Regeln, Kommentare. 1. Auflage: ­Attendorn: Viega GmbH + Co. KG, April 2001

[4] Koch, C., Pleischel, S.: Mikrobiologische Probleme erfolgreich vermeiden. Arnsberg: Strobel ­Verlag, IKZ 20-2008

[5] Karger, R., Hoffmann, F.: Praxisgerechtes Prüfverfahren zu Druckverlusten durch Verbinder und Formteile. Düsseldorf: Springer-VDI-Verlag, HLH 4-2009

[6] Lander, H.: Druckverluste in Ringleitungssystemen für die Stockwerksverteilung – Bau eines Versuchsstandes, Messungen der Druckbedarfe und Vergleich mit einer Modellrechnung. ­Diplomarbeit. Berlin, 2008, unveröffentlicht

[7] Arens, P.: Trinkwassergüte erhalten und Kosten senken. Stuttgart: Gentner Verlag, SBZ 11-2009

[8] Hernandez Aragon, O.: Auslegung mit realen Zeta-Werten ­erhöht Wirtschaftlichkeit und Hygiene. Düsseldorf: Springer-VDI-Verlag, HLH 01-2010

Beispiel 1

Eine kleine Nutzereinheit, z.B. in einem Einfamilienhaus mit Dusche und Badewanne, Waschtisch und WC (Bild 4): Was früher die typische Stichleitungs-Installation war, wird heute aus hygienischen Gründen mit druckverlustoptimierten Wandscheiben als durchgeschleiftes System ausgeführt [8]. Über diese Installationsvariante sind die Zapfstellen durchweg kom­fortabel versorgt; die Platzierung des Hauptverbrauchers „WC“ am Ende sichert sogar in der Kaltwasserinstallation den regelmäßigen Wasseraustausch. In der Warmwasserversorgung erfolgt er durch das ähnlich intensiv genutzte Handwaschbecken. Eine Zirkulationsleitung wäre aus Komfortgründen denkbar, aufgrund der kurzen Rohrleitungswege aber nicht wirtschaftlich.

Bild 4 Durchgeschleifte Reihenleitung mit Hauptverbraucher am Ende — hier: ein WC — in einer für Einfamilienhäuser typischen Nutzereinheit. - Viega
Bild 4 Durchgeschleifte Reihenleitung mit Hauptverbraucher am Ende — hier: ein WC — in einer für Einfamilienhäuser typischen Nutzereinheit.

Beispiel 2

Eine kleine Nutzereinheit mit periodischem Leerstand, z.B. ein Hotelzimmer mit Dusche, Waschtisch und WC (Bild 5): Auf den ersten Blick unterscheidet sich diese Installation kaum von einem privaten Kleinbad – müsste nicht schon in der Planungsphase unter trinkwasserhygienischen Aspekten der zu erwartende periodische Leerstand berücksichtigt werden. Er tritt bereits ein, wenn für ein paar Tage ein Hotelzimmer nicht belegt ist. Da dies den „nicht bestimmungsgemäßen Betrieb“ bedeutet, muss vorbeugend Stagnation verhindert werden. Im Warmwasser-Rohrleitungsnetz geschieht dies durch eine Ringleitung, die in die Zirkulation eingebunden ist. Für die Kaltwasserinstallation genügt hingegen eine durchgeschleifte Reihenleitung, wenn das WC mit der Betätigungsplatte Visign for care mit Viega Hygiene+ Funktion für die ­automatische Auslösung ausgestattet wurde. Sie erkennt eine fehlende „bestimmungsgemäße“ Nutzung und löst dann die WC-Spülung selbsttätig aus. Dies geschieht bedarfs- und volumengerecht: Es wird nur so viel Wasser ausgetauscht, wie zur Vermeidung von Stagnation im betroffenen Rohrleitungsabschnitt – hier: der Stockwerksleitung – notwendig ist.

Bild 5 In einer Nutzereinheit mit zeitweisem Leerstand (z.B. Hotelzimmer) wird der Wasseraustausch in der Kaltwasserinstallation mit einem automatisierten System — z.B. der Betätigungsplatte Visign for care mit Viega Hygiene+ Funktion — abgesichert. - Viega
Bild 5 In einer Nutzereinheit mit zeitweisem Leerstand (z.B. Hotelzimmer) wird der Wasseraustausch in der Kaltwasserinstallation mit einem automatisierten System — z.B. der Betätigungsplatte Visign for care mit Viega Hygiene+ Funktion — abgesichert.

Beispiel 3

Eine größere Reihen-Duschanlage, z.B. in einem Sportstudio (Bild 6): Mit einem Ringleitungssystem für Kalt- und Warmwasser ist hier der regelmäßige Wasseraustausch unabhängig von der Frage, welche Zapfstelle geöffnet wurde, sichergestellt. Im Warmwasserbereich stellt die Ringleitung außerdem einen Komfortgewinn dar, da mit Auslösen der Dusche sofort Warmwasser zur Verfügung steht. In aller Regel ist davon auszugehen, dass solche Anlagen durchgängig genutzt werden, also der vom Planer bei der Auslegung angenommene „bestimmungsgemäße Gebrauch“ gegeben ist. Sind allerdings längere Nutzungsunterbrechungen zu erwarten, sollten ­unabhängig vom Ringleitungssystem automatische Sanitärarmaturen vorgesehen werden.

Bild 6 Ringleitungen sorgen bei Reihenduschen für den regelmäßigen Wasseraustausch, unabhängig davon, welche Zapfstelle benutzt wird.
Bild 6 Ringleitungen sorgen bei Reihenduschen für den regelmäßigen Wasseraustausch, unabhängig davon, welche Zapfstelle benutzt wird.

Beispiel 4

Eine größere Reihen-Duschanlage mit angrenzendem Schiedsrichter-/Ausbilder-Umkleideraum in einer Sportstätte (Bild 7): Bei diesen häufig in Sporthallen zu findenden Installationen ist davon auszugehen, dass der bestimmungsgemäße Gebrauch aufgrund der Entnahmestellen im nur „angehängten“ Schiedsrichter-Umkleideraum nicht zuverlässig gewährleistet ist. Um Stagnation zu vermeiden, ist die Kaltwasserleitung komplett durchgeschleift als Reiheninstallation bis zum WC als signifikanter Entnahmestelle geführt. Dort sorgt eine Betätigungsplatte „Visign for care mit Viega Hygie­ne+ Funktion“ dafür, dass bei nicht vorgesehener Nutzungsunterbrechung das Wasser in diesem Rohrleitungsabschnitt trotzdem bedarfs- und volumengerecht automatisch ausgetauscht wird. Die Warmwasserinstallation ist als Ringleitungssystem ausgeführt und in die Zirkulation eingebunden. Zusätzlich kann die für den Hygieneerhalt notwendige Nutzung durch eine in Intervallen automatisch auslösende Dusche unterstützt werden.

Bild 7 Da bei einer Reihen-Duschanlage mit „angehängtem“ Sanitärbereich keine regelmäßige Nutzung vorausgesetzt werden kann, sollte in der Kaltwasserinstallation ein System wie „Viega Hygiene+“ für den bedarfsgerechten Wasseraustausch sorgen. - Viega
Bild 7 Da bei einer Reihen-Duschanlage mit „angehängtem“ Sanitärbereich keine regelmäßige Nutzung vorausgesetzt werden kann, sollte in der Kaltwasserinstallation ein System wie „Viega Hygiene+“ für den bedarfsgerechten Wasseraustausch sorgen.

Beispiel 5

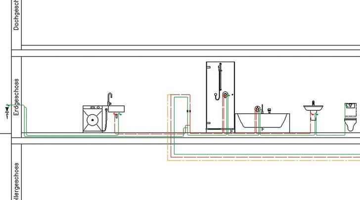
Die Kombination zweier Nutzereinheiten, z.B. in einem Einfamilienhaus mit Dusche und Badewanne, Waschtisch und WC auf der rechten und einer Küche mit zusätzlichem Außenwasseranschluss auf der linken Seite (Bild 8): Hier treffen in Bezug auf Komfort, Hygiene und Installationsaufwand unter Berücksichtigung des Nutzerverhaltens viele unterschiedliche Anforderungen aufeinander. Entsprechend breit ist die Installation aufgestellt: In das Badezimmer führt eine durchgeschleifte Reihenleitung für Kaltwasser. Von dieser Rohrleitung geht ebenfalls eine über die Außenzapfstelle durchgeschleifte Stichleitung für Kaltwasser in die Küche ab. Mit dem WC als Hauptverbraucher im Bad bzw. der Spüle und dem Geschirrspüler in der Küche sind Hauptverbraucher am Ende platziert, der für den Hygieneerhalt notwendige Wasseraustausch ist damit gewährleistet. Ähnlich stellt sich die Situation bei der Warmwasserversorgung mit den Hauptverbrauchern Waschbecken und Küchenspüle dar.

Bild 8 Aus dem vollen Installationsprogramm mit Einzel-, Reihen- und Ringleitung kann bei dieser für Einfamilienhäuser typischen Konfiguration geschöpft werden. - Viega
Bild 8 Aus dem vollen Installationsprogramm mit Einzel-, Reihen- und Ringleitung kann bei dieser für Einfamilienhäuser typischen Konfiguration geschöpft werden.

Frank Kasperkowiak

Dipl.-Ing., ist Produktmanager bei Viega, 57439 Attendorn, Telefon (0 27 22) 6 10, https://www.viega.de/de/homepage.html

Jetzt weiterlesen und profitieren.

+ TGA+E-ePaper-Ausgabe – jeden Monat neu
+ Kostenfreien Zugang zu unserem Online-Archiv
+ Fokus TGA: Sonderhefte (PDF)
+ Webinare und Veranstaltungen mit Rabatten
uvm.

Premium Mitgliedschaft

2 Monate kostenlos testen