Springe auf Hauptinhalt Springe auf Hauptmenü Springe auf SiteSearch
Absorptionskältemaschinen Biene und Hummel

Kälte aus Wärme mit niedriger Temperatur

Kompakt informieren

  • Kann für die thermische Kälteerzeugung mit einer Absorptionskältemaschine (AKM) überschüssige Wärme mittlerer Temperatur – die besonders im Sommer anfällt – verwendet werden, können solarthermische Erträge genutzt und die Wirtschaftlichkeit von KWK-Anlagen verbessert werden.
  • Die AKM Biene und Hummel können schon mit niedrigen Temperaturen ab 55 °C angetrieben werden. Durch ihren geringen Leistungsbereich und ihre geringen Abmessungen können sie in bestehende Gebäude integriert werden. Zudem können sie auch als Wärmepumpe genutzt werden.

Deutschland steht im Vergleich zu vielen anderen Ländern bei der Kühlung vor einem großen Nachholbedarf, weil hierzulande lange Zeit im Sommer die natürliche Lüftung mit kühler (nächtlicher) Außenluft für akzeptable Temperaturen ausgereicht hat. Wärmere Sommertage und häufigere Hitzewellen durch den Klimawandel, die Erkenntnis, dass Klimatisierung die Produktivität steigert, höhere interne Lasten durch die technische Gebäudeausstattung, die lichtdurchlässige Bauweise mit sehr viel Glas und die Belegungsdichte in modernen Gebäuden führen jedoch dazu, dass eine zusätzliche Kühlung immer häufiger erforderlich ist.

In einer Studie im Auftrag des Umweltbundesamtes wird eine Steigerung des Kühlungsbedarfs von 25 % bei Wohngebäuden und 50 % bei Nichtwohngebäuden in den nächsten 20 Jahren abgeschätzt, wobei der Kühlungsbedarf bei Nichtwohngebäuden aktuell etwa 100-mal größer als für Wohngebäude ist. Demnach müsste mit einer deutlichen Zunahme der CO 2 -Emissionen durch die Kühlung von Gebäuden gerechnet werden, wenn der Bedarf über Kälteanlagen gedeckt wird, die man bisher einbaut.

Kühlen muss energiesparender werden

Um die angestrebte Senkung des CO 2 -Ausstoßes zu erreichen (Klimaziele), muss insbesondere bei Anwendungen mit steigender Nachfrage sehr genau auf den Energieaufwand und die CO 2 -Emissionen für die Bereitstellung der Nutzenergie geachtet werden. Den mit deutlichem Abstand größten Anteil an Kühlungsapparaten haben aktuell elektrisch betriebene Kompressionskältemaschinen – im Bestand und bei den Verkaufszahlen. Im Kollektiv benötigen sie große Mengen an Strom und erhöhen die Lastspitzen. Hinzu kommt, dass sie bei steigenden Außentemperaturen mit sinkendem Wirkungsgrad arbeiten, also bei höheren Außentemperaturen der Strombedarf für den Anlagenbestand überproportional steigt.

Eine sehr gute Alternative zu Kompressionskältemaschinen sind Absorptionskältemaschinen (AKM). Sie haben nur eine vernachlässigbare Stromaufnahme, können mit dem klimaneutralen Kältemittel Wasser betrieben werden und produzieren die Kälte aus Wärme. Geräte, die mit sonst nicht zu nutzender überschüssiger Wärme betrieben werden können, sind die Favoriten. Findet durch ihren Einsatz im Sommer die Wärme aus Müllverbrennungsanlagen und Blockheizwerken Abnahme, können vorhandene KWK-Kapazitäten besser genutzt werden und rentabler betrieben werden.

Ganzjährig vorhandene Überschusswärme, wie die Abwärme von Industrieanlagen (Prozessabwärme) liegt meistens auf einem Temperaturniveau vor, mit dem eine direkte Nutzung vor Ort nicht möglich ist. Auch hier können Kältemaschinen, die Wärme auf niedrigem Temperaturniveau nutzen, zu erheblichen Energieeinsparungen im Gesamtsystem beitragen.

Ein solches Gerät ist die neue Absorptionskältemaschine von Baelz. Sie verwendet für die Kälteerzeugung das umweltfreundliche, ungiftige Stoffpaar Lithiumbromid / Wasser. Die bei Kompressionskältemaschinen auftretende Problematik umwelt- und / oder gesundheitsschädlicher gasförmiger und teilweise brennbarer Kältemittel fällt weg. Ein weiterer Pluspunkt der Absorptionskältemaschinen ist, dass sie im Gegensatz zu Kompressionskältemaschinen praktisch lautlos laufen.

Entwicklungsziele der Baelz-AKM

Die Herstellung und Weiterentwicklung der Absorptionskältemaschine bei BS Nova (Vertrieb durch Baelz) in enger Zusammenarbeit mit der TU Berlin, die gemeinsam mit der AGFW, (Energieeffizienzverband für Wärme, Kälte und KWK), dem BTGA (Bundesindustrieverband Technische Gebäudeausrüstung) und der TU Dresden sowie dem ZAE Bayern (Bayerisches Zentrum für angewandte Energieforschung) die Anlagen in einem Demonstrationsprojekt bundesweit in 15 Installationen einsetzt, begann mit der Konzeption einer Maschine für den mittleren Leistungsbedarf von ca. 50 kW und einer etwas größeren Maschine mit einer Kältebereitstellung von ca. 160 kW.

Die Abmessungen der Anlage sollten möglichst gering sein, damit sie auch für nachträglichen Einbau in bestehende Gebäude geeignet ist. Gewicht und Türgängigkeit der Anlage waren ebenfalls zu berücksichtigen. Diese anvisierten Leistungsbereiche waren auf dem Markt bis dahin praktisch nicht vorhanden.

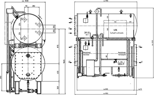
Entstanden ist eine kompakte Anlage mit vergleichsweise geringem Gewicht Abb. 2, die keine Schwierigkeiten beim Transport macht. Die wesentlich geringere Menge an Kälte- und Lösungsmittel im Vergleich zu anderen Geräten spart außer Gewicht auch Kosten. Angeboten wird die Anlage in zwei Größen, genannt Biene und Hummel. Die Namen beziehen sich zum einen auf die Farbgebung und zum anderen auf die unterschiedliche Größe. Die teilmodulare Bauweise der Absorptionskältemaschinen mit 50 bzw. 160 kW Kälteleistung deckt einen Leistungsbedarf von ca. 50 bis 320 kW ab. Das Konzept von Biene und Hummel auf eine 500-kW-Anlage (Hornisse) zu erweitern, wird zurzeit geprüft.

Resultate der Forschungsphase

Während mehrjähriger Feldtests kommen 25 Anlagen zum Einsatz. Sie werden genau beobachtet und die Ergebnisse erfasst. Es zeigt sich, dass besonders beim Einsatz der AKM in Fernwärmenetzen stark variierende Volumenströme im Temperaturbereich von 55 bis 100 °C zu berücksichtigen sind. Diese sehr unterschiedlichen Voraussetzungen können von den modernen AKM genutzt werden.

Als eine sehr günstige Eigenschaft haben die AKM bereits bewiesen, dass sie in der lastabhängigen Fahrweise sowohl mit unterschiedlichsten Temperaturen als auch unterschiedlichsten Volumenströmen umgehen können.

Eine Volumenstromverringerung kann bei Teillast für die Rücklauftemperatur ins Fernwärmenetz günstig sein. Auch die Temperaturspreizung im Antriebskreis von Biene und Hummel kann groß gewählt werden, und es können Kaltwassertemperaturen bis 5 °C erreicht werden. Bei der nutzbaren Kälteleistung im Verhältnis zur aufgewendeten Wärmeleistung (COP) ergaben sich bei den Anlagen im Feldtest sehr gute Werte von bis zu 0,8.

Bei einer Integration von Biene und Hummel in vorhandene Nutzungsstrukturen, aber vor allem bei der energetischen Modernisierung und im Neubau, können die Geräte nicht nur als Kälteanlage, sondern auch als Wärmepumpe verwenden werden, wobei sie Nutzwärme mit bis zu 60 °C zur Verfügung stellen können.

Die Rückkühlungstemperatur, die bei Absorptionskältemaschinen bisher bei maximal 35 bis 40 °C lag, konnte durch die Reduzierung von Wärmebrücken und die Optimierung der Wärmeübertrager bis auf ca. 50 °C erhöht werden. Das wiederum ermöglicht den Einsatz trockener Rückkühlwerke, was ein deutlicher Vorteil im Vergleich zu bisherigen Absorptionskältemaschinen ist.

Zusammengefasst sind die Vorteile von Biene und Hummel gegenüber marktüblichen Absorptionskältemaschinen:

  • vergleichsweise niedriger Leistungsbereich von 50 bzw. 160 kW
  • hohe thermische Prozesseffizienz, COP von bis zu 0,8, ESEER> 0,72
  • hohe Spreizungen der Antriebstemperatur> 40 K oder
  • niedrige Antriebstemperaturen ab 55 °C möglich (bei 25 % Kälteleistung)
  • Prozessdesign für trockene Rückkühlung
  • Einsatz als Wärmepumpe für Heizsysteme bis 60 °C
  • reaktionsschnell: von 25 % auf 100 % Leistung in weniger als 10 min
  • Türgängigkeit (BHL) 0,68 × 1,59 × 1,75 m (Biene)
  • Systemregelung für minimale Betriebs-/ Energiekosten

Einbau einer Hummel in der Praxis

Ein aktuelles Beispiel für die Anwendung einer Baelz-AKM ist ihr Einsatz bei den Stadtwerken Gießen. Es wurde hier eine Anlage im mittleren Leistungsbereich benötigt, während die marktüblichen meist im Bereich von 300 bis 500 kW lagen und entsprechend groß und schwer waren. Sie wären nicht in die bestehenden Gebäude zu integrieren gewesen, hatten hohe Anforderungen an die Rückkühlung und waren auch zu teuer. Auf dem Markt waren bisher keine geeigneten Kältemaschinen, lediglich bei ausländischen Anbietern, mit denen die Stadtwerke Gießen allerdings keine guten Erfahrungen gemacht hatten.

Die Entscheidung der Stadtwerke Gießen zugunsten der Baelz-AKM fiel aufgrund ihrer relativ geringen Größe Abb. 3 und verschiedener technischer Vorzüge dieser Maschine Abb. 4 Abb. 5. So kann sie durch besonders niedrige Heißwassertemperaturen angetrieben werden.

Die Stadtwerke benötigten eine neue Kühlanlage für ein Bürogebäude, zwei Rechen-zentren und eine Telefonanlage. Die bisherige Kühlung mit Trinkwasser über Plattenwärmeübertrager reichte nicht mehr aus. Abzuführen war eine Kühllast von insgesamt 68 kW. Um auch für Spitzenlast ausreichend Kapazität zu haben, fiel die Wahl auf eine Hummel, die bei der zur Verfügung stehenden Antriebstemperatur auch 75 bis 100 kW leisten kann. Es ist also noch mehr als ein Viertel der Leistungsfähigkeit als Reserve für Spitzenlasten vorhanden.

Interessant war außer dem niedrigen Leistungsbereich der sehr gute COP von 0,73, den keine der anderen Anlagen erreicht (Teillast bei ca. 30 %). Die Wärme, die aus dem Betrieb von Blockheizkraftwerken zur Verfügung steht, kommt aus dem Fernwärmenetz. Die Heißwasserein- bzw. -austrittstemperatur liegt normalerweise bei 80/60 °C. Ein trockener Rückkühler kühlt im Sommer die Restwärme der AKM und im Winter nach Abschaltung der AKM über einen Plattenwärmeübertrager die Räume mit ganzjährigem Kühlbedarf.

Ein weiterer wichtiger Punkt, der für die Baelz-AKM sprach, ist ihre schnelle Reaktionszeit. Bei plötzlich steigendem Leistungsbedarf ist die Anlage innerhalb von weniger als 10 min von 25 auf 100 % Leistung.

Dr. Renate Kilpper

ist seit mehreren Jahren als Fachjournalistin bei der Firma W. Bälz & Sohn, Heilbronn, tätig, www.baelz.de

Prof. Dr. Uwe Bälz

ist nach langjähriger Tätigkeit als Geschäftsführer der Firma W. Bälz & Sohn, Heilbronn, heute in dem Unternehmen technischer Berater für Forschung und Vertrieb. Gleichzeitig ist Bälz Dozent für Heizungstechnik an der Beuth Hochschule für Technik Berlin.