Springe auf Hauptinhalt Springe auf Hauptmenü Springe auf SiteSearch
Dezentrale Lüftungstechnik

Kapselung gewährleistetBrandschutz in WDVS

Kompakt informieren

  • Die brandschutztechnische Abschottung von dezentralen Wohnungslüftungssystemen mit Außenwanddurchlass in WDVS ist trotz der latent vorhandenen Brandrisiken bisher normativ nicht geregelt.
  • Es stehen aber mineralisch gekapselte Fassadenelemente für WDVS zur Verfügung. Mit allgemeiner bauaufsichtlicher Zulassung bieten sie DIBt-geprüft einen Brandschutz auf demselben Niveau wie Brandriegel, die zum Schutz vor Feuerüberschlag in mehrgeschossigen Gebäuden über Fenstern vorgeschrieben sind.
  • Durch die integrierte Luftumlenkung in die Fensterlaibung bleibt das harmonische Fassadenbild dabei aber dennoch erhalten.
  • Durchdringen Außenluftdurchlässe oder Einzelraumlüftungsgeräte ohne besondere Maßnahmen die Fassadendämmung, kann dadurch die allgemeine bauaufsichtliche Zulassung schwer entflammbarer WDVS erlöschen.

Die Dämmung der Gebäudehülle gilt als probater erster Schritt, den Wärmebedarf eines Objektes massiv zu verringern. Je nach Ausführung und Rechenweise liegen die berechneten (oder zumindest erwarteten) Einsparungen zwischen 40 und 70 %. Vor allem in Geschosswohnungsbauten aus den 1960er- und 1970er-Jahren zieht das dicke „Einpacken mit Polystyrol“ jedoch die nächste Maßnahme nach sich: den Einbau von Lüftungstechnik.

Denn bei diesen Gebäuden bewirkt bereits die nachträgliche Dämmung auch eine Abdichtung der Gebäudehülle und damit eine Verringerung des natürlichen Luftaustauschs in den Räumen. Passen die Nutzer ihr Lüftungsverhalten nicht an, besteht ein hohes Risiko für das Entstehen von Schimmel. Realitätsfern ist allerdings das unabhängig von Berufstätigkeit und Schlafenszeiten in Gerichtsurteilen auf der Basis von Sachverständigengutachten geforderte „3- bis 4-malige Stoßlüften pro Tag“ (zum Beispiel LG Frankfurt, Urteil vom 7. Februar 2012, „Zumutbarkeit mehrfachen täglichen Stoßlüftens zur Verhinderung von Feuchtigkeitsbildung“ Az. 2-17 S 89/11). So ist der Einbau von Lüftungssystemen zum Schutz der Bausubstanz bei einer energetischen Verbesserung der Gebäudehülle eigentlich unumgänglich.

Inwieweit dafür zentrale, wohnungs- oder raumweise Lüftungsanlagen zu bevorzugen sind, hängt immer vom Einzelfall ab, sagt Prof. Dr.-Ing. Thomas Hartmann Abb. 4 vom Institut für Technische Gebäudeausrüstung (ITG) in Dresden. Er hat als einer der geistigen Väter von DIN 1946-6 „Raumlufttechnik – Lüftung von Wohnungen“, also auch die Forderung nach dem Aufstellen von Lüftungskonzepten, entscheidend mitentwickelt und mitverfasst: „Patentrezepte gibt es nicht, es muss immer objektspezifisch im Gesamtkontext entschieden werden.“

Also geht es in die Deklination, was in der und für die Wohnungswirtschaft im Bestand möglich ist:

  • Wenn eine zentrale Zu- und Abluftanlage baulich machbar ist, ist sie in der Regel technisch sehr aufwendig und damit fast nur in Modellversuchen oder Pilotprojekten zu finden. Aber: Diese Variante funktioniert nutzerunabhängig, deckt die vier Lüftungsstufen (siehe Info-Kasten) uneingeschränkt ab und ist energetisch wie brandschutztechnisch vorbildlich.
  • Außenluftdurchlässe in den nicht innen liegenden Räumen und Überströmöffnungen zwischen den Räumen einer Wohnung sowie ein Abluftventilator im innen liegenden Bad nach DIN 18 017-3 – das geht eigentlich immer und ist vergleichsweise kostengünstig zu realisieren. Aber: Hier erfüllt man nur den Feuchteschutz, und die Küche wird ungewünscht zum Zuluftraum. Dafür gibt es beim Brandschutz über den (Installations-)Schacht keine Probleme, weil der in aller Regel ohnehin den F30-/F90-Anforderungen entspricht.
  • Die Querlüftung mit Außenluftdurchlässen (ALD) ist ebenfalls kostengünstig zu realisieren, da sie wohnungsweise leicht nachzurüsten ist, also beispielsweise je nach Sanierungsfortschritt und Bedarf. Sie ist als Lüftung zum Feuchteschutz anerkannt.
  • Bei Einzelraumlüftungsgeräten muss grundsätzlich zwischen reinen Außenluftdurchlässen, also passiven Elementen ohne Ventilator, und „dynamischen“ Einzelraumlüftungsgeräten mit aktiver Lüftung über einen Ventilator unterschieden werden Abb. 1. Bei der Planung sind allerdings Kurzschlüsse, also sich gegenseitig beeinflussende Lüftungsgeräte beispielsweise von übereinanderliegenden Geschossen, zu verhindern, rät Hartmann. Ansonsten erfüllen die Einzelraumlüftungsgeräte alle Leistungsanforderungen, die an kontrollierte Lüftungsanlagen zum Feuchteschutz und zum Erhalt der Raumluftqualität gestellt werden Abb. 2.

Regelungsbedarf besteht allerdings bei dezentralen Lüftungslösungen über Einzelraumlüftungsgeräte aktuell noch in Sachen „Brandschutz“. Während die brandschutztechnische Absicherung von Raumentlüftungssystemen nach DIN 18 017-3, in Verbindung mit Installationsschächten innerhalb eines Gebäudes über die Landesbauordnungen explizit beschrieben und geregelt ist, fehlen für Einzelraumlüftungsgeräte bislang vergleichbare Vorgaben.

Grundlagenarbeit notwendig

Das Regelungsdefizit hängt zwar eng damit zusammen, dass ALD und Einzelraumlüftungsgeräte keine Durchführungen durch feuerbeständige Wände oder Decken (mit F-Klassifizierung) im Sinne ursprünglicher Definition sind. Davon losgelöst zeigt aber die anhaltende Diskussion um die mögliche Brandlast von Wärmedämmverbundsystemen (WDVS) auf der Basis von Polystyrol die enge Wechselbeziehung zwischen Fassadenbränden und Außenwanddurchführungen zum Zwecke der Wohnraumlüftung auf.

„In der Vergangenheit“, erinnert sich Hartmann, „gab es zwar gewisse Vorgaben zur Verschließbarkeit von ALD, beispielsweise in der EnEV 2002. Aber die waren eben im Hinblick auf Wärmeverluste verfasst, nicht unter dem Aspekt des Brandschutzes.“ Auch die etwa zehn Jahre alten Merkblätter des Bundesverband des Schornsteinfegerhandwerks Zentralinnungsverband (ZIV) zielten auf Risiken der Rückströmung von Abgasen ab, hatten das Thema Brand- oder Rauchüberschlag vom WDVS in den ALD auch nicht zum Gegenstand.

Ob und inwieweit künftig für ALD ein ähnlicher Regelungskatalog wie bei klassischen Wanddurchführungen durch Brandschutzabschnitte aufgestellt wird (oder werden sollte), mag Hartmann derzeit ebenso wenig beurteilen wie die Frage, ob an ALD und Einzelraumlüftungsgeräte ähnliche Prüfanforderungen wie an Brandschutzklappen oder Deckenschotts zu stellen wären: „Es gibt technische Tendenzen bis hin zu Sensoren für die Raumluftqualität, die bei den dezentralen Wohnungslüftungssystemen durchaus auch als Notfallschalter im Brandfalle fungieren könnten. Bis das aber in entsprechenden Regelwerken abgebildet ist, muss zuvor noch wesentliche Grundlagenarbeit geleistet werden.“

Schutzeffekt wie Brandriegel

Bis solche Regelwerke erstellt und anerkannt sind, ist also bei der nachträglichen Ausstattung von Geschossbauten mit einem Wärmedämmverbundsystem in Kombination mit einer raumweisen, dezentralen Wohnungslüftung der Brandschutz durch die Bauverantwortlichen sicherzustellen. Als anerkannter Stand der Technik gelten dafür DIBt-geprüfte Fassadenelemente mit allgemeiner bauaufsichtlicher Zulassung, die in schwer entflammbaren WDVS nach DIN 4102-1/B1 bis 300 mm Dämmstärke eingesetzt werden dürfen.

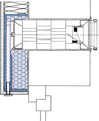
Diese Fassadenelemente in der Dämmstärke des WDVS bestehen in der Regel aus einer inneren und äußeren mineralischen Kapselung des Dämmkerns Abb. 3. Er kompensiert mit einem Durchgangskoeffizienten von 0,030 W/(m 2  K) einerseits die Verringerung der Wärmedämmschicht im Bereich des Lüftungsspaltes. Andererseits aber wirken die Elemente durch die mineralische Kapselung ähnlich wie Brandriegel (hier von außen nach innen), die für Gebäude mittlerer Höhe beziehungsweise für die Gebäudeklassen 4 bis 5 in jedem zweiten Geschoss oberhalb der Fenster als Schutz gegen eine Brandausbreitung oder Brandweiterleitung auf Außenwänden mit WDVS vorgeschrieben sind.

Außenluftdurchlässe oder Einzelraumlüftungsgeräte ohne entsprechende Elemente stellen nicht nur ein höheres Brandrisiko an sich dar: Wenn sie die als System geprüfte Konstruktion des WDVS durchbrechen, erlischt sofort dessen allgemeine bauaufsichtliche Zulassung. Die gedämmte Fassade entspricht also nicht mehr den aktuellen Brandschutzvorgaben für Geschossbauten – mit allen daraus möglicherweise resultierenden Haftungsrisiken für die Betreiber und auch für die Bauverantwortlichen.

Zusätzlicher Vorteil der DIBt-geprüften Fassadenelemente mit allgemeiner bauaufsichtlicher Zulassung für den Einsatz in schwer entflammbaren WDVS ist eine Umlenkung der Luftführung in den gekapselten Elementen: Neben dem Fenster montiert befindet sich das nur wenige Zentimeter breite Zu-/Abluftgitter dadurch nahezu unsichtbar in der Fensterlaibung Abb. 5. Dieser gestalterische Effekt wird vor allem von Architekten geschätzt, die Wert auf eine nicht durch häufig wiederkehrende Lüftungsöffnungen unterbrochene Fassadengestaltung legen.

Lüftungsstufen nach DIN 1946-6

Als Maßstab für den Lüftungsumfang und damit natürlich auch für die Luftqualität im Raum sind in der DIN 1946-6 vier Lüftungsstufen definiert:

  • Lüftung zum Feuchteschutz: Diese Stufe ist nutzerunabhängig sicherzustellen und dient dem Bautenschutz. Sie erfüllt das Ziel, Feuchtigkeitseinträge bei üblicher Nutzung, aber zum Teil reduzierten Lasten (zum Beispiel durch zeitweise Abwesenheit und kein Wäschetrocknen in den Wohnräumen), abzuführen, um Schimmel und ähnliche Schäden zu verhindern. Bei der Auslegung ist das Wärmeschutzniveau des Gebäudes zu berücksichtigen.
  • Reduzierte Lüftung: Diese Stufe ist weitestgehend nutzerunabhängig sicherzustellen. Außer dem Bautenschutz gewährleistet sie darüber hinaus den hygienischen Mindeststandard für die Raumluftqualität, beispielsweise in puncto Stoffbelastung.
  • Nennlüftung: Bei der Berechnung diese Stufe kann die aktive Fensterlüftung durch den Nutzer mit einbezogen werden. Sie erfüllt sowohl die hygienischen und gesundheitlichen Anforderungen an die Raumluft bei normaler Nutzung als auch den notwendigen Luftaustausch für den Bautenschutz.
  • Intensivlüftung: Dabei kann die aktive Fensterlüftung durch den Nutzer miteinbezogen werden. Diese Stufe dient dem zeitlich beschränkten Abbau von Lastspitzen (zum Beispiel durch Kochen und Wäschetrocknen) und weist einen erhöhten Luftvolumenstrom auf.

Weitere Informationen: www.wohnungslueftung-ev.de

Kontakt zum Anbieter

LUNOS Lüftungstechnik GmbH für Raumluftsysteme

13593 Berlin

Telefon (0 30) 3 62 00 10

info@lunos.de

www.lunos.de

Jetzt weiterlesen und profitieren.

+ TGA+E-ePaper-Ausgabe – jeden Monat neu
+ Kostenfreien Zugang zu unserem Online-Archiv
+ Fokus TGA: Sonderhefte (PDF)
+ Webinare und Veranstaltungen mit Rabatten
uvm.

Premium Mitgliedschaft

2 Monate kostenlos testen