Kompakt informieren
- Für den Kühlbedarf von Rechenzentren kann in den meisten Jahresstunden Außenluft als Wärmesenke genutzt werden.
- Bisherige Konzepte mit direkter und indirekter Freier Kühlung haben aber bezüglich der erforderlichen Be- und Entfeuchtung Nachteile und kommen nicht ohne zusätzliche mechanische Kälteerzeugung aus.
- Um auf eine Kältemaschine verzichten zu können, ist eine grundlegende Optimierung der Leistungsdaten des Rückkühlwerks und der Verdunstungskühlung zwingend erforderlich.
- Ein neues Konzept auf der Basis eines Wärmeübertragers als Hybridsystem mit stufenlos regelbarem Befeuchtungsgrad zwischen 80 und 160 % ermöglicht den vollständigen Verzicht auf mechanisch erzeugte Kälte und verringerte Zuluftvolumenströme im Sommerfall.
Rechenzentren benötigen trotz abnehmender spezifischer Verlustleistung der Informationstechnik weiterhin große Rückkühlleistungen, da auf geringerem Raum eine immer höhere Rechnerleistung mit aktuell bis zu 2 kW/m 2 Kühllast installiert wird. Moderne und große Rechenzentren benötigen daher Kühlleistungen von über 1 MW. Dabei ist der kostenbestimmende Faktor die vornehmlich elektrisch erzeugte Kälteleistung, die 24 h pro Tag benötigt wird.
Freie Kühlung durch Außenluft
Grundsätzlich kann für den Bedarf von Rechenzentren jedoch die Außenluft als Wärmesenke zur Kühlung herangezogen werden, da die Außenluft im Jahresverlauf meistens kälter als beispielsweise 23 °C ist und nur in ca. 600 h/a eine Kühlung bei Außenlufttemperaturen über 23 °C erforderlich wird.
Damit besteht die Möglichkeit, die Außenluft entweder ohne Umwege zu verwenden, also das Rechenzentrum direkt mit Außenluft zu belüften und damit zu kühlen, oder aber die Außenluft über einen Wärmeübertrager zu entkoppeln, also indirekt zur Kühlung zu nutzen.
Die direkte Kühlung eines Rechenzentrums mit Außenluft ist von verschiedenen Bedingungen abhängig. Gelangt Außenluft direkt in das Rechenzentrum, ist ihre Qualität für die Rechnertechnik von großer Bedeutung. Liegt standortbedingt belastete Außenluft vor, wird grundsätzlich von einer direkten Nutzung abgeraten. Dies trifft nahezu in allen Fällen bei zu hoher oder zu niedriger Feuchte der Außenluft zu, da die Feuchte im Jahres- und im Tagesverlauf stark schwankt.
Die direkte freie Kühlung hat den großen Vorteil, dass der Wärmewiderstand und der Druckabfall eines sonst notwendigen Wärmeübertragers nicht berücksichtigt werden muss. Sie hat aber auch den Nachteil, dass die Zuluft im Winter befeuchtet und im Sommer entfeuchtet werden muss.
Die Zuluft darf nicht zu trocken werden, da sonst elektrostatische Ladungseffekte zum Problem für die IT-Systeme werden können, sie darf aber auch nicht zu feucht werden, da dann ebenfalls Probleme, beispielsweise durch lokale Kondensation an den IT-Systemen, entstehen können. Gemäß ASHRAE TC 9.9 1) werden als Grenzwerte für die relative Feuchte ca. 30 bis 60 % bei einer Umgebungstemperatur von 18 bis 27 °C empfohlen (zulässig sind 20 bis 80 % bei 15 bis 32 °C für die Klasse A1). In der Praxis werden häufig Grenzwerte für die absolute Feuchte der Zuluft von 4 bis 6 g/kg im Winter als unterer Grenzwert und 10 bis 12 g/kg im Sommer als oberer Grenzwert akzeptiert.
In Abhängigkeit der Außenluftfeuchte ist eine Kombination aus der direkten und der indirekten freien Kühlung anzustreben. Bei zu hoher und bei zu niedriger Feuchte oder bei belasteter Außenluft könnte die indirekte freie Kühlung genutzt werden, während bei zulässigen Feuchten und unbelasteter Außenluft die direkte freie Kühlung verwendet werden kann. Damit entfällt sowohl die Zuluftbefeuchtung im Winter als auch eine Entfeuchtung der Zuluft im Sommer.
Freie Kühlung, unterstützt durch indirekte Verdunstungskühlung
Im Folgenden wird die Freie Kühlung betrachtet, die durch eine indirekte Verdunstungskühlung unterstützt wird, um die benötigte Kühlleistung mittels Rückkühlwerk zur Verfügung zu stellen Abb. 3.
Die benötigte Kühlleistung hängt bei der Verwendung der Außenluft als Wärmesenke vom Standort des Rechenzentrums ab. Mit seinen Temperatur- und Feuchtehäufigkeiten hat er eine große Auswirkung auf den Nutzen der Freien Kälte. In den meisten Gebieten in Deutschland kann im Bereich zwischen 19 und 26 °C sowie zwischen 4,5 und 10,5 g/kg die Außenluft ohne eine Luftbehandlungsfunktion in ca. 1111 h/a direkt verwendet werden (Abb. 4 und weißer Bereich in Abb. 2).
Abb. 2 veranschaulicht am Beispiel von Mannheim die spezifischen Außenluftkonditionen während eines Jahres und deren Summenhäufigkeiten (in der Grafik in 1/10 h 2) . Unterhalb einer Außenlufttemperatur von 18,5 °C und einer absoluten Feuchte unter 4,5 g/kg wird in rund 1990 h/a durch Nutzung der indirekten freien Kühlung und ohne zusätzliche thermodynamische Luftaufbereitung die geforderte Zulufttemperatur erreicht (Abb. 4 und türkisfarbener Bereich in Abb. 2).
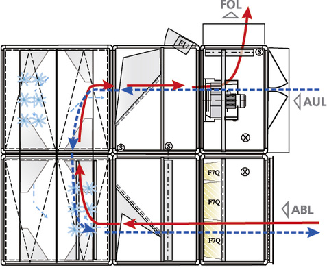
Unterhalb von 18,5 °C und über 4,5 g/kg (bis 10,5 g/kg) kann in 4851 h/a die minimale Zulufttemperatur durch Mischen von Außenluft mit Abluft energetisch effizient gewährleistet werden, da keine Luftbehandlungsfunktionen erforderlich sind (Abb. 5 und beiger Bereich in Abb. 2). Alternativ kann auch mittels Wärmerückgewinnung die Zulufttemperatur erreicht werden (ähnlich Abb. 6, jedoch ohne Befeuchtung). Dann ist eine Be- oder Entfeuchtung der Zuluft ebenfalls unnötig.
Im Bereich über 26,5 °C Außenluft und bis zu einer Außenluftfeuchte von 10,5 g/kg kann durch trockene, sensible Kühlung die geforderte Zulufttemperatur in ca. 250 h/a sichergestellt werden (Abb. 3 und ockerfarbener, blauer und hellblauer Bereich in Abb. 2). Die notwendige Kühlung wird dann durch ein Rückkühlwerk (RKW) auf Basis eines Wärmeübertragers mit indirekter Verdunstungskühlung Abb. 3 bereitgestellt.
Durch die Verwendung eines Rückkühlwerkes, das mit Außenluft betrieben wird, wird die Temperatur nach dem Rückkühlwerk je nach Außen- und Abluftluftkondition auf ca. 18 bis 24 °C gesenkt, ohne dass eine zusätzliche Kältemaschine benötigt wird.
Liegt der Energieinhalt der Abluft unter dem Energieinhalt der Außenluft, kann auch das Verfahren der Wärmerückgewinnung (WRG) gemäß Abb. 6 zum Einsatz kommen. Dies setzt allerdings voraus, dass die Außen-luft direkt dem Rechenzentrum zugeführt werden kann.
Wenn die Summenhäufigkeiten der einzelnen Betriebszustände in Abb. 2 addiert werden, so ergibt sich für die direkte freie Kühlung (weißer und beiger Bereich) eine Summenhäufigkeit von rund 5962 h, also 68 % der Jahresnutzungszeit, während 2798 h (32 % der Jahresnutzungszeit) auf die indirekte Nutzung der Außenluft fallen (beispielsweise 4,5 g und 10,5 g als Feuchtegrenzwerte). Bei anderen Feuchtegrenzwerten verschieben sich Laufzeiten für die einzelnen Betriebszustände entsprechend.
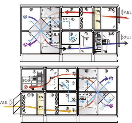
Aber auch bei der indirekten Freien Kühlung kann Außenluft zur indirekten Verdunstungskühlung (RKW) verwendet werden, wenn beide Stränge mit Außenluft betrieben werden Abb. 7. Dies setzt jedoch voraus, dass der Fortluftventilator für diesen Betriebsfall ausgelegt ist und mit doppelter Luftmenge betrieben werden kann.
Im Bereich über 10,5 g/kg Außenluftfeuchte wird Umluft mit einer indirekten Verdunstungskühlung durch Außenluft genutzt, da die absolute Feuchte der Außenluft für eine direkte Nutzung zu hoch ausfällt (Abb. 3 und z. B. rosafarbener Bereich in Abb. 2).
Leistungssteigerung der indirekten Verdunstungskühlung
Um auf eine Kältemaschine verzichten zu können, ist eine Optimierung der Leistungsdaten (RKW und Verdunstungskühlung) zwingend erforderlich. Hierzu sind Wärmeübertrager notwendig, die trockene Temperaturübertragungsgrade von mehr als 75 % aufweisen. Gleichzeitig ist der Platzbedarf der benötigten und entsprechend dimensionierten Wärmeübertrager enorm und daher schwer zu realisieren.
Abb. 8 und Abb. 9 zeigen eine neuartige und platzsparende Lösung auf, bei der ein Plattenwärmeübertrager im Kreuz-Gegenstrom am Ende des RLT-Gerätes eingesetzt wird. In diesem Fall wird der Wärmeübertrager gleich-zeitig als Umlenkkammer für die beiden Luftströme verwendet.
Mittels der vor dem Wärmeübertrager integrierten Umlenk- und Mischkammer (System CrossXflow by Howatherm) können die Luftströme innerhalb des RLT-Gerätes effizient umgeschaltet werden Abb. 1 und Abb. 1. Hierdurch wird die Abluft mit der Zuluft zu einem Umluftsystem verbunden. Die Außenluft dient nun zum Betrieb des RKW, das mit oder ohne Verdunstungskühlung betrieben werden kann. Wird der Wärmeübertrager nicht benötigt, kann der Plattenwärmeübertrager durch integrierte Bypassklappen umgangen werden Abb. 12. Durch die Umschalt- und Mischbox kann im Mischbetrieb warme Abluft der kalten Außenluft beigemischt werden, um die geforderte Zulufttemperatur zu erreichen Copy_Abbildung_Zahl_c4141313.
Neben dem trockenen Temperaturübertragungsgrad des Wärmeübertragers spielt die Verdunstungskühlung eine weitere und entscheidende Rolle. Neben der bekannten einstufigen Befeuchtung wurde zur Steigerung des Befeuchtungsgrades eine zweite Befeuchterstufe eingesetzt, womit ein Befeuchtungsgrad von 1 erreicht wird. Der Wärmeübertrager wird dann als Hybridsystem verwendet. Dabei wird der Wärmeübertrager als Wärme- und als Stoffübertrager eingesetzt 14
Eine weitere Leistungssteigerung kann nur durch die Steigerung des Befeuchtungsgrads erfolgen. Hierzu wurde der Wärmeübertrager so weiterentwickelt, dass eine besonders große Hydrophilie der Oberfläche erreicht wurde. Durch den damit verbundenen größeren Nachverdunstungseffekt des Befeuchtungswassers wird ein Befeuchtungsgrad erreicht, der bei üblichen Betriebsbedingungen einem Befeuchtungsgrad von 1,6 äquivalent ist. Durch das besondere Verfahren kann der Befeuchtungsgrad sogar zwischen 80 bis 160 % stufenlos geregelt werden.
Mit dieser Entwicklung wird selbst bei 32 °C und 40 % Außenluftkondition und 35 °C und 30 % Abluftkondition eine Zulufttemperatur von 19 °C erreicht. Dies wurde durch Validierungsmessungen von DEKRA bestätigt. Letztlich wird erst damit eine zusätzliche Kälteerzeugung obsolet.
Weiterhin kann durch die sehr niedrige Zulufttemperatur die Luftmenge des Kühlsystems gesenkt werden, da die Kühlleistung proportional dem Produkt aus Temperaturdifferenz der Kühlung mit der Luftmenge steigt. Ein konventionelles System, das von 32 auf 24 °C kühlt, hat mit einer Temperaturdifferenz von 8 K ein um 38 % niedrigeres Potenzial als eine leistungsgesteigerte Verdunstungskühlung mit einer Temperaturdifferenz von 13 K (+ 62 %). Mit der Leistungssteigerung kann daher die Luftmenge in diesen Betriebsfällen analog um 38 % reduziert werden.
Freie Kühlung mit zusätzlicher Kühlung bei Betrieb mit Mindestaußenluftanteil
Rechenzentren sind üblicherweise Maschinenräume, in denen sich bestimmungsgemäß Personen nicht mehr als 30 Tage pro Jahr oder regelmäßig länger als zwei Stunden je Tag aufhalten. Daher gilt in ihnen beispielsweise nicht die VDI-Richtlinie 6022 3) .
Falls ein Rechenzentrum trotzdem mit einem Mindestaußenluftanteil betrieben werden soll, kann das aufgezeigte Verfahren nicht unverändert verwendet werden, da bei in-direkter Kühlung zwingend eine vollständige Umschaltung zwischen Außen- und Umluftbetrieb erfolgt. Außenluft wird im beschriebenen Verfahren nur bei direkter Nutzung der Freien Kälte dem Raum zugeführt. In den Zeiten mit zu hoher Außenluftfeuchte wird bei der Nutzung eines Mindestaußenluftanteils eine Entfeuchtung der Zuluft im Sommer zwingend erforderlich, da ansonsten im Raum sukzessive die Feuchte ansteigt. Eine Möglichkeit zur Nutzung der Außenluftbeimischung bei indirekter Verdunstungskühlung zeigt15
Man erkennt sofort, dass in diesem Fall ein wesentlich höherer apparativer Aufwand notwendig wird. Insbesondere ist nun eine mechanische Kälteerzeugung unumgänglich. Es ergeben sich folgende Prozessschritte im h, x-Diagramm 16
Nach der Entfeuchtungskühlung wird dann durch weiteres Mischen der Abluft mit dem entfeuchteten Luftstrom die benötigte Zulufttemperatur erreicht (16
Die Entfeuchtungskälteleistung wird in ca. 460 h/a, also in rund 5,3 % der Laufzeit der Anlage, benötigt. Als problematisch ist dabei der hohe Anteil der benötigten Entfeuchtungsleistung zu bewerten, der gegenüber der sonst rein sensiblen Kühlung nur in rund 5 % der Jahresnutzungsdauer vorgehalten werden muss. Dies ist zwar nicht unbedingt energetisch kritisch, aber im Hinblick auf die höheren Investitionskosten und den größeren Platzbedarf der Anlagen einschließlich der Kälteerzeugung nachteilig zu bewerten.
Gleichzeitig wird bei Nutzung eines Mindestaußenluftanteils im Winter eine Befeuchtung der Zuluft unumgänglich, was ebenfalls die Kosten deutlich erhöht. Aus diesem Grund ist von der Nutzung eines Mindestaußenluftanteils abzuraten, oder sie wird durch ein eigens dafür optimiertes RLT-Gerät vorgehalten, welches lediglich den Außenluftanteil aufbereitet und fördert.
Wirtschaftlichkeitsbetrachtungen
Gegenüber einer rein mechanischen Kühlung im Umluftverfahren kann durch die Freie Kühlung ohne mechanische Ergänzungskühlung ein erheblicher Anteil an Energie eingespart werden. In 17 3 /h.
Aus 18
Da auf die mechanische Kühlung vollständig verzichtet werden kann, reduzieren sich die Betriebskosten der Freien Kühlung, kombiniert mit der indirekten Verdunstungskühlung erheblich auf rund 11 % der ursprünglichen Kosten bei reiner Umluft-Kühlung 21
Fazit
Die Nutzung der Außenluft als Temperatursenke ist eine zu bevorzugende Technologie. Gegenüber der traditionellen Kühlung im Umluftverfahren mittels einer Kompressionskälteanlage sind die Betriebskosten und der Energieeinsatz bedeutend geringer. Zudem kann bei der Verwendung der kombinierten direkten und indirekten freien Kühlung der Bedarf an Befeuchtungs- und Entfeuchtungsleistungen eliminiert werden.
Im Zusammenhang mit der Nutzung der leistungsgesteigerten indirekten Verdunstungskühlung und einer neu entwickelten Wärmeübertrager-Anordnung kann auf eine mechanische Kühlung vollständig verzichtet werden. Überdies kann durch die Leistungssteigerung in den meisten Betriebsfällen die Luftmenge aufgrund der niedrigen Zulufttemperatur verringert werden.
Die Wirtschaftlichkeit der Rechenzentrumskühlung wird dadurch deutlich erhöht und die etwas höheren Investitionskosten des raumlufttechnischen Gerätes werden damit mehr als kompensiert.
Fußnoten
1) Thermal Guidelines for Data Processing Environments – Expanded Data Center Classes and Usage Guidance; 2011
2) Freie Kühlung von Rechenzentren mit zentralen Raumlufttechnischen Geräten, HLH 10-2015
3) VDI 6022 Raumlufttechnik, Raumluftqualität-Hygieneanforderungen an Raumlufttechnische Anlagen und Geräte (VDI-Lüftungsregeln), Juli 2011
Maria Swiderek B. Eng.
Masterstudierende Umweltorientierte Energietechnik an der Hochschule Trier, Umwelt-Campus Birkenfeld.
Boris Wollscheid B. Eng.
ist Entwicklungsingenieur bei der Howatherm Klimatechnik GmbH.
Prof. Dr.-Ing. Christoph Kaup
ist Honorarprofessor der Hochschule Trier, Umwelt-Campus Birkenfeld, für Energieeffizienz und Wärmerückgewinnung und geschäftsführender Gesellschafter der Howatherm Klimatechnik GmbH. Kaup ist Mitglied in verschiedenen Normungsgremien, z. B. EN 16 798, EN 13 779, EN 13 053, EN 308 und EN 1886 sowie Richtlinienausschüssen, z. B. VDI 6022 und VDI 3803.
 
     
     
     
     
     
     
     
     
     
     
     
     
     
     
     
     
     
     
     
     
    