„Die überschlägige Berechnung ergab ein erforderliches Nutzvolumen von 50 m 3 . Doch unser Bauherr bestellte das doppelte Volumen!“, berichtet Dipl.-Ing. Frank Hennig, Fachplaner der Haustechnik für die neue Sporthalle der privaten Berlin Brandenburg International School in der Gemeinde Kleinmachnow nahe Potsdamm. Dass diese Entscheidung vor dem Hintergrund eines sich verändernden Klimas richtig war, hat sich schon kurz nach der Inbetriebnahme im Frühjahr 2008 bestätigt. „Nach sieben Wochen Trockenheit war das Nutzvolumen von 100 m 3 aufgebraucht und in den darauffolgenden drei Tagen im Juni 2008 bereits die Hälfte davon wieder aufgefüllt“, stellt Hennig fest. Nehmen künftig die Wetterextreme zu – Klimaexperten prophezeien dies sowohl für die Intensität der Niederschläge, als auch die Dauer der Trockenperioden – sind große Regenspeicher eine sinnvolle Investition.
Löschwasserversorgung vor Ort
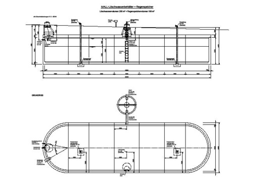
Zu den wichtigsten Maßnahmen des vorbeugenden Brandschutzes gehört die Bereitstellung von Löschmitteln in ausreichendem Umfang. Bei Neuerschließungen ermöglicht ein zentraler Löschwasserbehälter reduzierte Querschnitte der Trinkwasserversorgung mit positiven Auswirkungen insbesondere auf die Trinkwasserhygiene. Die Lieferung und Montage unterirdischer Löschwasserbehälter inklusive aller Zubehörteile (Saugrohre mit Feuerwehrkupplung, Pumpensumpf, Hinweisschild, Abdeckung und Lüftungsrohre etc.) erfolgt nach DIN 14230 1 . Werden sie mit Regenwasser statt mit Trinkwasser befüllt, sollte dem Behälter ein mechanischer Filter vorgeschaltet werden.
Entsprechend entwässert das Sporthallendach mit knapp 2000 m 2 Auffangfläche in einen Filterschacht und von dort in die 300-m 3 -Zisterne. Das obere Drittel des Volumens wird vollautomatisch bewirtschaftet. Im Gebäude steht die Regenwasserzentrale mit elektronischer Steuerung, Doppelpumpendruckerhöhung und integriertem Vorlagebehälter. Unter Wasser in der großen unterirdischen Zisterne steht die Zubringerpumpe und fördert nach Bedarf, von der Regenwasserzentrale gesteuert. Dass das Löschwasser ohne Trennung im selben Speicher mit dem Nutzwasser lagert, spart Kosten. Hennig: „Wasserstandssonden mit Drucksensoren in der Zisterne stellen sicher, dass der Feuerlöschvorrat nicht genutzt wird und schalten das Regencenter in Trockenperioden rechtzeitig auf Trinkwasserbetrieb um.“
Die Druckerhöhungsanlage ist zweistufig, sitzt im kompakten Regencenter unter dem Zwischenbehälter und erhält so das Wasser im Zulaufbetrieb mit leichtem Vordruck. Bei Spitzenbedarf laufen beide Pumpen gleichzeitig, ansonsten alternieren sie im Einzelbetrieb. Sie verfügen über einen integrierten Trockenlaufschutz.
Mit einem optischen und akustischen Signal weist die Steuerung auf Fehlfunktionen hin und reagiert darauf. Der potenzialfreie Störmelder ermöglicht eine Fernanzeige der Störung. Zudem verfügt die Steuerung über eine Anschlussmöglichkeit für RS-232-Schnittstellen zur externen Datenübermittlung.
Versorgt werden von der Regenwasserzentrale 15 WCs und 2 Urinale, im Stadion können die Außenanlagen beregnet werden. Das Spielfeld selbst, aus Kunstrasen, braucht keine Bewässerung. Randbereiche hinter der Tribüne und entlang der Kurven der Laufbahn werden mit Unterflurhydranten versorgt.
Rationelle Bauweise durch Fertigteile
Die Betonfertigteile für den Regenwasserspeicher wurden im Werk produziert und vom Hersteller vor Ort auf einem Sandbett (15 cm) versetzt und verschraubt. Innerhalb eines Tages konnten so die U-förmigen Segmente mit den halbzylindrischen Endstücken verschraubt werden, einschließlich der Abdeckplatten und Einstiegsöffnungen. Mit entsprechender Erdüberdeckung sind solche Behälter auch befahrbar. Damit konnte der Standort bei diesem Projekt flexibel gewählt werden. Laut Hennig waren Feuerwehrzufahrt, Überlauf in einen Versickerungsteich sowie kurze Leitungswege für Zulauf und Entnahme die Kriterien bei der Wahl des Speicherstandorts.
In den Zulauf des Speichers wurde der Filterschacht montiert. Schwebstoffe, die die Filterkassetten aus Edelstahlgewebe mit einer Maschenweite von 0,4 mm nicht passieren können, sinken als Feinteile zu Boden oder schwimmen auf an die Wasseroberfläche, beispielsweise Blütenpollen. Das mit dem Filter verbundene Ablaufrohr gewährleistet, dass weder Sediment noch Schwimmschicht in den Speicher gelangt. Entlüftung und Überlauf werden bei dieser Bauweise im Speicher oder im Filterschacht nach örtlichem Bedarf angeordnet.
Um die Planung zu erleichtern, trägt der Filterschacht von Mall als Produktbezeichnung die Zahl der maximal anschließbaren Dachfläche. In diesem Fall wurde an den Regenwasserspeicher ein Filterschacht mit der Typenbezeichnung FS 2500 angeschlossen. Sie zeigt an, dass der Filter den Abfluss einer Dachfläche bis zu 2500 m 2 rückstaufrei bei dem zugrunde gelegten Bemessungsregen von 300 l/(s ha) verkraftet.
Ist der Regenwasservorrat im unterirdischen Speicher ganz aufgefüllt und fällt weiterhin Niederschlagswasser an, wird der Speicherüberlauf in einen Regenwasserteich abgeleitet. Dort verdunstet ein Teil, ein Teil versickert. Der Teich wurde bei der Privatschule in Kleinmachnow biotopartig als Bestandteil der Landschaft angelegt. Oft kommen aber auch rein technische Versickerungsbecken zur Ausführung. In jedem Fall wird so noch auf demselben Grundstück der natürliche Wasserkreislauf kleinräumig geschlossen – neben der Regenwassernutzung eine weitere Vorsorge gegen die möglichen Folgen der erwarteten Klimaveränderungen.
Inspektion, Wartung, Services
Anlagen zur Regenwassernutzung sind preisgünstig und im Betrieb unkompliziert. Sie funktionieren zuverlässig, wenn Inspektion und Wartung regelmäßig durchgeführt werden. Bei neuerer Bauart entsprechend DIN 1989 2) genügt ein jährlicher Check. Stefan Gehring aus der Mall-Niederlassung Berlin: „Als Lieferant aller Regenwasserkomponenten dieses Projekts übernehmen wir das oder beauftragen dazu einen von uns autorisierten Fachbetrieb, der die durchgeführte Prüfung mit Protokoll bestätigt. Falls erforderlich, werden Mängel gegen Berechnung sofort behoben.“ Entspricht die Bautechnik nicht der DIN 1989, sind die Angaben des Herstellers für die Wartungsintervalle verbindlich. Dann kann es unter Umständen notwendig sein, Filter öfter zu reinigen. Nur bei DIN-gemäßen Filtern genügt die Wartung einmal jährlich.
Wenngleich bei der beschriebenen Referenzanlage der Bauherr das Behältervolumen verdoppelt hat, können die Behältergröße sowie Behälter- und Haustechnik sehr genau auf ein Projekt abgestimmt werden. „Mall hilft Planern bei der Berechnung zur Speichergröße, zur Pumpen- und Steuerungstechnik und stellt Ausschreibungstexte zur Verfügung“, sagt Gehrings Kollege Frank Hinz. „Individuelle Bauhöhen für die unterschiedlichen Behältertypen sind kein Problem. Zu- und Abläufe in Form von Kernbohrungen und Dichtungen lassen sich schon bei der Produktion integrieren.“ Eine überschlägige Berechnung kleiner Anlagen kann selbst vornehmen, wer auf der Website https://www.mall.info/ über „Regenwassernutzung“ auf „Regenspeicherdimensionierung“ klickt. Bei größeren Projekten kann man Planungsrisiken durch die umfangreiche Erfahrung von Herstellern sehr einfach minimieren.
1) DIN 14230 Unterirdische Löschwasserbehälter, Juli 2003. Berlin: Beuth Verlag, https://www.dinmedia.de/de
2) DIN 1989 Regenwassernutzungsanlagen – Teil 1: Planung, Ausführung, Betrieb und Wartung, April 2002; Teil 3: Regenwasserspeicher, August 2003. Berlin: Beuth Verlag, https://www.dinmedia.de/de
Literatur
[1] König, Klaus W.: Ratgeber Regenwasser. Für Kommunen und Planungsbüros. Rückhalten, Nutzen und Versickern von Regenwasser im Siedlungsgebiet. Herausgeber: Mall GmbH, Donaueschingen, 2. Auflage, 2008. 36 Seiten, DIN A4, 12,00 Euro zzgl. Versand, ISBN 3-9803502-2-3.
Bautafel
Sporthalle und Stadion für die Berlin Brandenburg International School in Kleinmachnow
Regenwassernutzung: Bewässerung über Unterflur-Hydranten, 15 WCs, 2 Urinale, Löschwasservorrat
Regenwassertechnik: Beton-Fertigteilspeicher 300 m 3 mit Filterschacht FS 2500 und Druckerhöhungsanlage Monsun XL 14-60 mit Füllstandssensor, Fabrikat Mall
Sammelfläche: 1978 m 2 mit ca. 551 mm/a
Planung Haustechnik: Hennig Haustechnische Gesamtplanungen, Potsdam
Montage Regenwassertechnik: Hartmann & Felsmann, Fürstenwalde
Brandschutz
Planer von Brandschutz- und Löschwasserkonzepten können nicht mehr davon ausgehen, dass eine zum Schutz des Gebäudes ausreichende Wassermenge vom Wasserversorger zur Verfügung gestellt wird, da keine verpflichtende Trinkwasserbereitstellung durch die Wasserversorgungsunternehmen für die besondere Löschwasserversorgung aus dem öffentlichen Netz besteht. Das heißt, an der Hauptleitung ist zwar genügend Wasser vorhanden, aber bei einem angenommenen niedrigen Trinkwasserverbrauch ist es heute nicht mehr erlaubt, zu groß dimensionierte Leitungen in Gebäude hineinzuführen. Denn dies ist häufig die Ursache dafür, dass hygienische Probleme entstehen können. Unter Umständen müssen deswegen vorbeugende Maßnahmen zur Brandbekämpfung getroffen werden, die nicht allein durch die Trinkwasserversorgung sichergestellt werden können.
Quelle: HE Magazin 01/2008, Herausgeber Wilo Dortmund
Klaus W. König
Dipl.-Ing. Architekt, ö.b.u.v. Sachverständiger für Bewirtschaftung und Nutzung von Regenwasser, Fachjournalist und Vorstandsmitglied der Fachvereinigung für Betriebs- und Regenwassernutzung (fbr), Überlingen, Telefon (0 75 51) 6 13 05, mail@klauswkoenig.com , https://www.klauswkoenig.de/
 
     
     
     
     
     
     
     
    ![© Schell / i-Stock Bild 1 Wesentliche Eintragsquelle für Pseudomonas aeruginosa in die Trinkwasser-Installationen sind herstellerseitig kontaminierte Bauteile. Deswegen ist es wichtig, möglichst trocken geprüfte Bauteile einzusetzen [2].](/sites/default/files/styles/teaser_standard__s/public/aurora/2025/06/447149.jpeg?itok=WbzrNNSI) 
     
     
    