Springe auf Hauptinhalt Springe auf Hauptmenü Springe auf SiteSearch
Marktübersicht

TGA-CAD-Programme und Trends im Überblick

Der Artikel kompakt zusammengefasst
■ Diese aktualisierte Marktübersicht vergleicht 27 CAD- und BIM-Planungs- und Berechnungsprogramme für die Gewerke SHKL und Elektro tabellarisch.
■ Abgefragt wurden Programm-Konzepte, Einsatzbereiche und Funktionen für die Eingabe und Änderung, Berechnung, Ausgabe, Auswertung und den Datenaustausch sowie Preise, Schulungs- und Wartungskosten.
■ Bei der Kaufentscheidung sollten allerdings nicht nur diese Parameter eine Rolle spielen, sondern auch der Support, Schnittstellen zur vorhandenen Software, regelmäßige Updates, Anpassungen an Richtlinien-Änderungen und nicht zuletzt die Programmbedienung, die man am besten über eine Leihstellung testet.

Bild 1 Für Planungsbüros und Fachbetriebe ist TGA-Software bei der Konzeption und Berechnung der Gebäudetechnik inzwischen unverzichtbar.

Lindab Global

Bild 1 Für Planungsbüros und Fachbetriebe ist TGA-Software bei der Konzeption und Berechnung der Gebäudetechnik inzwischen unverzichtbar.

TGA-CAD ist für Fachingenieure ein zentrales Werkzeug für die Planung, Berechnung und Dokumentation gebäudetechnischer Anlagen. Doch jede Software hat andere Schwerpunkte und Stärken. Dieser tabellarische Software-Vergleich zeigt die Unterschiede und beleuchtet aktuelle Entwicklungen.

Mit der wachsenden Bedeutung der Gebäudetechnik werden auch Programme für deren Planung und Berechnung immer wichtiger. Sie unterstützen TGA-Planungsbüros oder Fachbetriebe bei der Optimierung ihrer Planung, Effizienz und Wettbewerbsfähigkeit. Doch ein großes Angebot deutschsprachiger Lösungen macht die Auswahl nicht einfach.

Viele Programme sind für alle TGA-Gewerke konzipiert, andere haben ihre Schwerpunkte in den Bereichen Heizung, Klima und Lüftung, Sanitär oder Elektro. Während sich einige auf die Auslegung und Berechnung konzentrieren, haben andere ihre Stärken in der Ausführungsplanung. 3D- und BIM-Lösungen richten sich vor allem an TGA-Fachingenieure, 2D-Programme eher an das Fachhandwerk. Dieser Produktvergleich bietet Ein- und Umsteigern eine erste Orientierung und Auswahlhilfe.

Bild 2 Die Bandbreite der TGA-Programme reicht von 2D-Programmen für die schnelle Planerstellung und Auswertung, …

Red CAD Solutions

Bild 2 Die Bandbreite der TGA-Programme reicht von 2D-Programmen für die schnelle Planerstellung und Auswertung, …

TGA-CAD ist vielseitig …

Im Fokus der Programme steht die Dimensionierung von Heizungs-, Trinkwasser- und Abflussrohren oder Lüftungskanälen, die Generierung von Schema-, Übersichts- und Leitungsplänen in Form von Grundrissen, Schnitten oder 3D-Darstellungen sowie die Ausgabe von Stücklisten, Längen, Flächen und Mengen für Ausschreibungen, Kostenermittlungen, die Bestellung, Fertigung und Montage.

Für die Übernahme der Gebäudestruktur vom Architekten stehen 2D-, 3D- oder BIM-Schnittstellen zur Verfügung. Mangelnde Absprachen, andere Schwerpunkte der Architekturplanung, aber auch Fehler im Modell machen in der Praxis häufig eine Neueingabe notwendig. Deshalb stellt TGA-CAD auch hochbauspezifische CAD-Funktionen für die Konstruktion von Räumen und Gebäuden bereit.

Für die Auswertung und Ausschreibung der Anlagentechnik relevante Daten werden automatisch ermittelt und prüffähig exportiert. 3D-Darstellungen von Lüftungskanälen, Heizungs-, Trinkwasser- oder Abwasserleitungen etc. ermöglichen eine visuelle Überprüfung und Optimierung der Leitungsführung. Einige Programme, beispielsweise Linear, MagiCAD, PitCAD oder Trimble Nova, ermöglichen auch Präsentationen per VR-Brille oder eine Überlagerung von Planungsinformationen mit der gebauten Realität per AR-Brille oder Tablet – und damit zum Beispiel interaktive Baufortschrittskontrollen.

Bild 3 … auf die Planung von Trink- und Abwassernetzen oder Sprinkleranlagen spezialisierten Programmen, …

Idat

Bild 3 … auf die Planung von Trink- und Abwassernetzen oder Sprinkleranlagen spezialisierten Programmen, …

… flexibel und anschlussfähig

TGA-CAD sollte auch Änderungen an der Bauwerksstruktur, der Leitungsführung oder -dimensionierung mit intelligenten Funktionen und Automatismen unterstützen, da sie in der Praxis einen großen Teil des Planungsaufwandes ausmachen. Werden Änderungen konsequent in das TGA-Modell eingepflegt, ist es später als As-Built-Dokumentation der Gebäudetechnik für die Gebäude-Bewirtschaftung oder für spätere Umbauten wertvoll.

Die Planung gebäudetechnischer Anlagen setzt zunehmend integrierte Berechnungs-, Simulations- und Analysefunktonen sowie Werkzeuge für die technische, energetische und wirtschaftliche Anlagenoptimierung voraus. Deshalb verfügt TGA-CAD beispielsweise nicht nur über eine automatische Berechnung der Heiz- und Kühllast, unter Berücksichtigung der Raum-/Gebäudegeometrie, individueller Wandaufbauten und Bauelemente oder Funktionen zur Rohrnetzberechnung.

Mehrere Lösungen, beispielsweise GBIS, Linear oder mh-Software BIM, können darüber hinaus mithilfe optionaler Module und Schnittstellen auch Trink-, Abwasser- oder RLT-Netze simulieren und optimieren, Lüftungskonzepte erstellen oder bauphysikalische Nachweise führen. Unter anderem AX3000, ETU-Planer, GBIS und Dendrit Studio verfügen auch über direkte Schnittstellen zu Programmen für die Energieberatung oder Energieausweis-Erstellung.

Bild 4 … bis hin zu umfassenden 3D- und BIM-fähigen Lösungen, die nahezu alle TGA-Gewerke berücksichtigen.

Linear

Bild 4 … bis hin zu umfassenden 3D- und BIM-fähigen Lösungen, die nahezu alle TGA-Gewerke berücksichtigen.

TGA-Planung mit BIM

Die BIM-Planungsmethode ist in der TGA‑Planung vor allem großer Bauvorhaben mittlerweile Standard, weil sie die Koordination komplexer technischer Systeme vereinfacht, die Kollisionskontrolle verbessert und die Basis für digitale Zwillinge und Simulationen bildet. Deshalb verfügen inzwischen etwa zwei Drittel aller hier vorgestellten Programme neben BIM-Schnittstellen auch über BIM-Funktionen. Einige verstehen sich explizit OpenBIM-Lösung, etwa DDScad, Edificius, Linear, MagiCAD, mh-Software BIM, Revit MEP oder Trimble Nova.

Zunehmend unterstützen sogenannte „IFC-Manager“ Anwender beim Austausch von BIM-Modellinhalten, um den Datenimport und -export zu optimieren und Informationsverluste weitgehend auszuschließen. Visuelle und automatisierte Prüfungen des BIM-Modells auf Datenkonformität, Konsistenz oder Kollisionen mit anderen Gewerken helfen, Planungsfehler zu vermeiden [1]. Die Koordination mit Kollegen und externen Planungsbeteiligten wird durch das BIM Collaboration Format (BCF) vereinfacht. Damit lassen sich Nachrichten modellbasiert austauschen, bei der Zusammenführung von BIM-Fachmodellen erkannte Kollisionen und Probleme einfacher lösen, Korrektur- und Koordinationsabläufe verkürzen [2].

Auch die Schlitz- und Durchbruchsplanung wird mit speziellen Funktionen unterstützt, etwa von DDScad, Linear, MagiCAD oder Revit [3]. Da viele berechnungsrelevante Bauteilinformationen im Raum-, bzw. Gebäudemodell bereits enthalten sind, reduziert sich der Aufwand für Heiz- und Kühllastberechnungen, Luftkanal- oder Rohrnetzberechnungen, bauphysikalische oder thermische Simulationen. Weitere BIM-Vorteile sind transparente Kostenkontrollen sowie gebäudetechnische, bauphysikalische oder energetische Optimierungen am digitalen Zwilling.

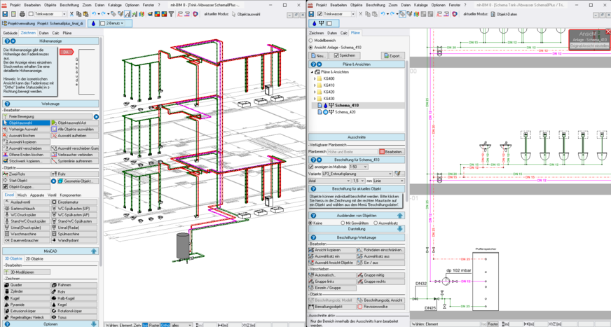
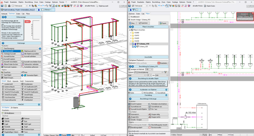
Bild 5 Parallele 2D- und 3D-Ansichten vereinfachen die Planung und Änderung der Leitungsführung.

mh-Software

Bild 5 Parallele 2D- und 3D-Ansichten vereinfachen die Planung und Änderung der Leitungsführung.

Wo es relevante Unterschiede gibt …

Rund die Hälfte der Programme basiert auf einem eigenen CAD-Kern, die übrigen Systeme sind sogenannte Programmaufsätze. Das sind fachspezifische Erweiterungen, die auf branchenneutrale CAD-Plattformen, AutoCAD, Revit oder BricsCAD, aufgesetzt werden. Das ermöglicht den Anbietern, ihre Entwicklungsressourcen gezielt auf TGA-Funktionen zu konzentrieren, ohne gleichzeitig einen kompletten CAD-Kern pflegen zu müssen. Neben dem Preis des TGA-Aufsatzes sollten Anwender dabei allerdings auch die Anschaffungskosten für das Basis-CAD-Programm sowie laufende Lizenz- und Wartungsgebühren im Blick behalten.

Wichtig bei der Programmauswahl sind auch Einsatzbereiche und Zielgruppen: Für Planungsbüros, die alle gebäudetechnischen Bereiche abdecken, eignen sich Komplettlösungen, weil diese besser alle Funktionsanforderungen, Abhängigkeiten und Kollisionen zwischen den einzelnen Gewerken berücksichtigen können. Neben den Gewerken Heizung, Lüftung und Sanitär können inzwischen mit der Hälfte der hier vorgestellten Programme auch Elektronetze und -anlagen geplant werden. Weitere Hersteller haben entsprechende Module angekündigt.

Bild 6 Insbesondere bei komplexen Projekten spielen umfassende Lösungen ihre Vorteile aus, beispielsweise bei der Kollisionsprüfung.

Linear

Bild 6 Insbesondere bei komplexen Projekten spielen umfassende Lösungen ihre Vorteile aus, beispielsweise bei der Kollisionsprüfung.

Der Großteil aller hier vorgestellten Programme richtet sich an TGA-laner. Diese sollte vor allem Berechnungsfunktionen unter die Lupe nehmen: Sind Berechnungen, etwa des U-Werts, des Wärmebedarfs, der Heizlast, der Heizkörper, des Rohrnetzes, der Verteiler etc. integriert oder laufen sie extern ab? Werden dabei alle relevanten Normen und Richtlinien umfänglich berücksichtigt und wie schnell reagiert der Anbieter auf Richtlinien-Änderungen? Lassen sich automatische oder halbautomatische Kollisionsprüfungen mit der Bauwerksstruktur und anderen TGA-Gewerken durchführen? Reine 2D-Programme wie Acado Haustechnik, HT 2000-CAE oder Red CAD richten sich eher an Fachhandwerker, die mit wenigen Eingaben und ohne den Mehraufwand für die 3D-Konstruktion schnell Installationspläne und Massen-/Mengenauswertungen erstellen wollen.

Bild 7 Programme mit integrierter Berechnung aktualisieren Änderungen automatisch auch im CAD.

Hottgenroth

Bild 7 Programme mit integrierter Berechnung aktualisieren Änderungen automatisch auch im CAD.

…und worauf sollte man noch achten?

Unterschiede gibt es auch bei der 3D-Visualisierung oder der Auswertung und Übergabe von Objekt- und Berechnungsdaten. Sie reichen von der ASCII-, über die Tabellenkalkulations- und Datenbankausgabe, die Übergabe von Ausschreibungsdaten per GAEB-Standard an AVA-Programme oder die Anbindung an kaufmännische Software – bis hin zum Abgleich und zur Verknüpfung von Daten mit Facility-Management-Lösungen (z. B. C.A.T.S. Software, Linear oder PitCAD).

Bei der (Vor)Auswahl sollte man nicht nur darauf achten, ob eine Software alle Funktionsanforderungen erfüllt, sondern auch, wie sie sich in die bestehende Software über eine direkte Datenanbindung oder über Schnittstellen einfügt. Wie einfach und intuitiv (oder umständlich) die Eingabe von TGA-Bauteilen und deren Änderung ist, lässt sich ebenfalls am besten mit einer Leihstellung oder Testversion und anhand eines kleinen Projekts ausprobieren. Nicht zuletzt sollten auch der Service und die fachliche Kompetenz der Support-Ansprechpartner bei der Softwareauswahl berücksichtigt werden.

Bild 8 Bei der Planung können Anwender auf übersichtlich strukturierte Bauteilkataloge zurückgreifen.

Solar Computer

Bild 8 Bei der Planung können Anwender auf übersichtlich strukturierte Bauteilkataloge zurückgreifen.

Ein Vergleich lohnt sich auch bei den Kosten für Schulungen und Wartungsverträge, die grundlegende Leistungen wie Software-Updates und -Upgrades, Telefon-Support oder Einarbeitungshilfen in neue Versionen enthalten sollten. Darüber hinaus sollten auch die individuellen Randbedingungen des jeweiligen Unternehmens, wie die Bürogröße, Planungsschwerpunkte, Projektgrößen, CAD-Vorkenntnisse der Mitarbeiter oder die Kompatibilität mit vorhandenen Simulations- oder GEG-Programmen etc. in die Kaufentscheidung einbezogen werden.

Aufschlussreich sind auch Recherchen bei einschlägigen Hersteller-, Anwender- oder TGA-Foren und dort genannte Programmschwächen und Probleme, wie lange Ladezeiten, IFC-Import und  Exportprobleme, eine unzureichende Normenunterstützung, mangelnder Support oder Abstürze bei großen und komplexen Projekten etc.

Bild 9 TGA-CAD liefert wichtige Unterlagen, wie etwa Installations-, Strang- und Schemapläne, Ausführungs- und Montagepläne, Berechnungen, Reports und Stücklisten.

Dendrit

Bild 9 TGA-CAD liefert wichtige Unterlagen, wie etwa Installations-, Strang- und Schemapläne, Ausführungs- und Montagepläne, Berechnungen, Reports und Stücklisten.

Marktentwicklungen und Trends

Rund 30 deutschsprachige TGA CAD-Programme gibt es derzeit. Viele haben ihre Schwerpunkte in den Bereichen Heizung, Klima und Lüftung oder Elektro. Einige Lösungen konzentrieren sich auf spezielle Bereiche – etwa CADvent auf die Lüftungsplanung, Geberit ProPlanner auf Trink- und Abwassernetz-Planung oder SpriCAD auf Sprinklernetze. Über eine integrierte oder externe Berechnung verfügen alle Programme, mit Ausnahme von Acado Haustechnik, CADprofi HVAC & Piping, EboCADpro und Red CAD.

Gegenüber der letzten TGA-CAD-Software-Marktübersicht in TGA+E 11-2021 enthält dieser Produktvergleich mit Edificius einen

Bild 10 Zu den Trends gehören neben der umfassenden BIM-Planung, Berechnung und Simulation …

Solar Computer

Bild 10 Zu den Trends gehören neben der umfassenden BIM-Planung, Berechnung und Simulation …

Neuzugang von Acca Software. Das ist ein italienischer Hersteller von BIM-Planungslösungen. Die neue, integrierte BIM-Lösung MEP Designer wird von Graphisoft in dieser Übersicht (noch) nicht vorgestellt. Stattdessen präsentiert der Hersteller von BIM-Planungssoftware für Architekten die 2021 von Data Design Systems erworbene Lösung DDScad. AutoCAD MEP und Revit Mep von Autodesk sind erneut nicht separat gelistet, weil sie hier mehrfach über Programmaufsätze von Drittanbietern vertreten sind.

Zu den Trends in der Branche gehören, neben der modellbasierten TGA-Planung unter Berücksichtigung aller TGA-Gewerke, zunehmend auch smarte Funktionen und Assistenten. Diese basieren teilweise auf der KI-Mustererkennung, maschinellem Lernen, Chatbots und Expertensystemen. Sie vereinfachen nicht nur die Bedienung und die Kommunikation mit der Software, sondern werden auch Bauteile identifizieren, repetitive Aufgaben übernehmen, Fehler und Kollisionen erkennen oder die Trassenführung optimieren etc. [4]. Marian Behaneck

Bild 11 … auch die KI – etwa in Form von Assistenten für eine komfortablere Bedienung und Kommunikation mit der Software.

Graphisoft

Bild 11 … auch die KI – etwa in Form von Assistenten für eine komfortablere Bedienung und Kommunikation mit der Software.

Fachberichte mit ähnlichen Themen bündelt das TGA+E-Dossier TGA+E-Software

Literatur

[1] Behaneck, Marian: BIM-Modelle regelbasiert prüfen. Stuttgart: Gentner Verlag, TGA+E 05-2022

[2] Behaneck, Marian: Gelbe Zettel für BIM-Modelle. Stuttgart: Gentner Verlag, TGA+E 02-2020

[3] Behaneck, Marian: Besser aussparen mit BIM. Stuttgart: Gentner Verlag, TGA+E 11-2020

[4] Behaneck, Marian: Smarte Planungshelfer. Stuttgart: Gentner Verlag, TGA+E 06-2025

Checkliste: Darauf sollte man achten

● Welche TGA+E-Gewerke werden von der Software wie umfassend unterstützt (SHKL, Elektro, Gas, Sprinkler etc.)?

● Ist die Software 2D-, 3D- oder BIM-fähig und werden TGA+E-Komponenten auch (intern oder extern) berechnet?

● Verfügt die Software über einen eigenen CAD-Kern oder ist sie auf einem CAD-Programm aufgesetzt (Abhängigkeit, Kosten)?

● Verfügt die Software über (parametrisierbare) Bauteilobjekte und über umfangreiche, gut strukturierte SHKLE-Bauteilbibliotheken?

● Ist die Bedienung des Programms bei der Eingabe/Änderung der Leitungsführung oder von TGA+E-Bauteilen intuitiv?

● Ist die Software BIM-fähig und verfügt sie über die entsprechenden Funktionen (IFC-Import/Export, BIM-Bauteile etc.)?

● Lässt sich die Software in die vorhandene (Simulations-)Software einbinden (Schnittstellen, Nachbearbeitungsaufwand etc.)?

● Wie gut ist die Software-Wartung (Update/Upgrade-Häufigkeit, Anpassung an Richtlinienänderungen, sonstige Leistungen)?

● Wie gut ist der Support (zentraler oder regionaler Ansprechpartner, Anwendermeinungen (online) recherchieren, Testanruf machen)?

● Welche Probleme, Fehler oder Unzulänglichkeiten werden von Anwendern in Hersteller-, Anwender- oder TGA-Foren genannt?

● Wie hoch sind die Investitions- und Folgekosten (Kaufpreis, Schulungs- und jährliche Wartungskosten, ggf. auch für Basis-CAD)?

Vergleichsübersicht: TGA-CAD-Software 2025, Tabelle 1 von 6

Gentner Verlag / Marian Behaneck

Vergleichsübersicht: TGA-CAD-Software 2025, Tabelle 1 von 6
Vergleichsübersicht: TGA-CAD-Software 2025, Tabelle 2 von 6

Gentner Verlag / Marian Behaneck

Vergleichsübersicht: TGA-CAD-Software 2025, Tabelle 2 von 6
Vergleichsübersicht: TGA-CAD-Software 2025, Tabelle 3 von 6

Gentner Verlag / Marian Behaneck

Vergleichsübersicht: TGA-CAD-Software 2025, Tabelle 3 von 6
Vergleichsübersicht: TGA-CAD-Software 2025, Tabelle 4 von 6

Gentner Verlag / Marian Behaneck

Vergleichsübersicht: TGA-CAD-Software 2025, Tabelle 4 von 6
Vergleichsübersicht: TGA-CAD-Software 2025, Tabelle 5 von 6

Gentner Verlag / Marian Behaneck

Vergleichsübersicht: TGA-CAD-Software 2025, Tabelle 5 von 6
Vergleichsübersicht: TGA-CAD-Software 2025, Tabelle 6 von 6.Für eine einheitliche Vergleichsmöglichkeit wurden hier die Programme Rukon-TGA, SpriCAD und Tricad MS aus Tabelle 5 übernommen.

Gentner Verlag / Marian Behaneck

Vergleichsübersicht: TGA-CAD-Software 2025, Tabelle 6 von 6.Für eine einheitliche Vergleichsmöglichkeit wurden hier die Programme Rukon-TGA, SpriCAD und Tricad MS aus Tabelle 5 übernommen.

Jetzt weiterlesen und profitieren.

+ TGA+E-ePaper-Ausgabe – jeden Monat neu
+ Kostenfreien Zugang zu unserem Online-Archiv
+ Fokus TGA: Sonderhefte (PDF)
+ Webinare und Veranstaltungen mit Rabatten
uvm.

Premium Mitgliedschaft

2 Monate kostenlos testen