Der Artikel kompakt zusammengefasst
■ Die Bandbreite der KI-Anwendungen im TGA+E-Planungsbüro reicht inzwischen von der Automatisierung von Schreib- und Büroarbeiten, der Bestandserfassung, der Optimierung von Raum- und Gebäudekonzepten, bis hin zur Unterstützung der Planung und Berechnung.
■ Die Anwendungen werden die Arbeitsweise und Arbeitsabläufe von Planern in den nächsten Jahren nachhaltig verändern. Eine wesentliche Hürde für qualitativ hochwertige KI-Planungslösungen sind aktuell mangelnde und mangelhafte Trainingsdaten und die Intransparenz der Verarbeitungs-, Bewertungs- und Entscheidungsprozesse von KI-Modellen.

Autodesk
Software mit Künstlicher Intelligenz unterstützt inzwischen auch die Konzeption, Planung und Berechnung von Bauwerken – und wird künftig auch die Arbeit von TGA+E-Planern beeinflussen. Welche KI-Lösungen für Planer gibt es schon und was kommt morgen?
KI-Planungslösungen zielen, ebenso wie KI-Anwendungen in der Bauausführung [1] auf eine Rationalisierung von Arbeitsabläufen und eine Verbesserung der Qualität von Planungs- und Bauleistungen. Welche aktuellen Anwendungen und Entwicklungen gibt es, welche Möglichkeiten, aber auch Herausforderungen entstehen dadurch? Ein Blick auf aktuelle Projekte, konkrete KI-Werkzeuge und Einsatzbeispiele im Planungsbüro.
KI für Recherche und Schreibarbeiten

Microsoft
ChatGPT, aber auch andere smarte Dialogsysteme, zurzeit insbesondere Google Gemini und Microsoft Copilot, sind zu einem Synonym für KI-Anwendungen geworden, weil sie sehr einfach und vielseitig in vielen Bereichen anwendbar sind. Diese auch als Chatbot bezeichneten Dialogsysteme können zum Beispiel in natürlicher Sprache formulierte Fragen beantworten oder Dialoge führen – so als würde man sich mit einem menschlichen Gegenüber per Chat unterhalten. Auch komplexe Anfragen kann man in ganzen Sätzen formulieren, die dann ebenso, teilweise inklusive Quellenangaben beantwortet werden.
Das vereinfacht Recherchen, weil man keine langen Trefferlisten durchsuchen muss. Auch zeitraubende Schreibarbeiten, wie Mitarbeiterinformationen, Kundenanschreiben, Stellenausschreibungen, Suchmaschinen-optimierte Webseiten-Texte, Social-Media-Posts oder Zusammenfassungen langer (PDF-)Texte können spezialisierte KI-Dialogsysteme wie Neuroflash, Notion, PDF.ai und andere erledigen. Textvorschläge für Marketing-Aktivitäten oder für die Pressearbeit lassen sich ebenso erstellen – man sollte sie allerdings anschließend individuell modifizieren.
Eine textliche, „Prompt“ genannt Anweisung, die kurz beschreibt, was konkret gewünscht wird, genügt. Ist das Ergebnis nicht zufriedenstellend, fordert man das System mit einem neuen Prompt zum Nachbessern auf. Je präziser die Anweisung formuliert ist, desto besser entspricht das Ergebnis den eigenen Erwartungen. Andernfalls erhält man allgemeine, oberflächliche Formulierungen und Floskeln ohne Substanz. Außerdem ist es ratsam, die Ergebnisse und Antworten zu prüfen, insbesondere auf inhaltliche Fehler, Plausibilität und Aktualität, denn der KI-Output ist stets nur so aktuell, wie es die zugrundeliegenden Trainingsdaten sind.

Sidoun
Rechtlich relevante Texte, etwa Behinderungsanzeigen oder Abmahnungen etc., sollte man weiterhin konventionell formulieren – oder mit KI-Hilfe erstellten Textbausteine entsprechend anpassen oder eine in diesem Kontext spezialisierte Lösung verwenden (siehe unten). Ein in eine Unternehmens-Webseite integrierter Chatbot kann, quasi als „virtueller Mitarbeiter“, auch Auskunft zu allgemeinen Anfragen geben. Ob die gesuchten Kunden solche Tools akzeptieren, hängt von vielen Parametern ab und wird sich auch im Laufe der Zeit verändern. Fachliche Fragen kann eine KI (bisher) nicht beantworten, da ihr zumeist kein Expertensystem mit entsprechender Wissensdatenbank zugrunde liegt.
KI-Codierungsassistenten, wie zum Beispiel der Github Copilot, können auch Programmcodes erstellen und dabei natürliche Sprache in Programmzeilen umwandeln oder Fehler im Programmcode suchen. Ein weiterer Anwendungsbereich ist die Webseitengestaltung mit speziellen KI-Webseitengestaltern wie Durable, GetResponse oder Wix, die in wenigen Schritten ein Webseiten-Grundgerüst erstellen können, das sich anschließend individuell anpassen lässt.

Weise Software
KI in Branchenprogrammen
Im Gegensatz zu verbreiteten Standardprogrammen, wie Microsoft 360, Google Docs, Deepl etc., verfügen derzeit erst wenige branchenspezifische Programme über KI-Funktionen. Programme für die Ausschreibung, Vergabe und Abrechnung, das Büro-, Projekt- oder Dokumenten-Management stehen noch am Anfang der Entwicklung hin zu einer Integration von KI-Werkzeugen. Aber es gibt schon erste Anwendungen, etwa KI-Assistenten bei AVA-Programmen, die Fragen zur Software, zur VOB oder zur Bautechnik detailliert und auch mehrsprachig beantwortet. Soll die Antwort spezifischer ausfallen oder die Frage in eine andere Richtung gehen, kann man ergänzende Fragen stellen.
Smarte Helfer in Büro- und Projektmanagement-, Bauzeitenplanungs- oder Baustellen-Dokumentationsprogrammen können inzwischen auch Texte formulieren, Bildunterschriften zu Dokumentationsfotos erstellen, Stichpunkte auflisten, Texte in andere Sprachen übersetzen, Ablaufpläne erstellen oder den Anwender (bau-)fachlich beraten. Es ist davon auszugehen, dass die Hersteller bereits an weiteren KI-Funktionen arbeiten – schließlich verspricht die KI nicht nur mehr Produktivität, Qualität und weniger Fehler. Sie ist inzwischen auch ein Marketing-Zugpferd.
KI-Funktionen in Branchenlösungen werden künftig eingehende Dokumente, beispielsweise Auftragsbestätigungen, Lieferscheine oder Rechnungen per KI-gestützter Texterkennung digitalisieren, analysieren, Daten extrahieren, Projekten zuordnen und im System automatisiert verarbeiten. So entfallen zeitaufwendige manuelle Prüf- und Sortierarbeiten. Das System lernt kontinuierlich dazu und verbessert seine Fähigkeiten, indem es bereits verarbeitete Daten auf neue Anwendungen überträgt, was die Prozessautomatisierung weiter optimiert. Branchenprogramme werden Sprachbefehle, verstehen, Arbeitsabläufe automatisieren, Fehler identifizieren, Rechnungen erstellen oder prüfen, aus aktuellen Auftragsdaten die Unternehmens-Liquidität analysieren und prognostizieren und so Geschäftsentscheidungen vereinfachen.

Microsoft Designer, Prompt: Behaneck
KI für Konzepte und Entwürfe
Ebenso wie Chatbots sorgen aktuell auch KI-Bildgeneratoren, etwa Bing Create, Dall-E, Microsoft Designer, Midjourney oder Prodia, für Aufsehen. Sie analysieren Bilddaten im Internet, erkennen mithilfe neuronaler Netze und maschinellem Lernen Bildinhalte oder Muster und erzeugen daraus neue, nicht reproduzierbare Abbildungen. Text-zu-Bild-Generatoren werden wie Chatbots auch durch Prompts gesteuert, in denen möglichst präzise beschrieben wird, was abgebildet werden soll (Objekt), über welche Details das Bild verfügen soll (Form, Material, Umgebung) und welche Form der Abbildung gewünscht ist (Skizze, fotorealistisches Rendering etc.).
l zeigt, welche Ergebnisse bereits mit einfachen (häufig in Englisch zu formulierendem) Prompts in wenigen Sekunden generiert werden können. Je genauer auch hier die Anweisungen sind, desto besser entspricht der KI-Output den Erwartungen. Durch präziser formulierte Prompts können die Ergebnisse weiter optimiert und zum Beispiel für die Kundenberatung oder als Inspiration für den weiteren Planungsprozess genutzt werden – ganz ohne Grafik- oder Modellieraufwand.
Allerdings gibt es viele Einschränkungen. So ist jede generierte Abbildung ein nicht reproduzierbares Unikat, man kann keine Abmessungen von im Bild dargestellten Objekten angeben und die KI scheitert meist (noch) an der korrekten Darstellung technischer Objekte. Es gibt auch Bild-zu-Bild-Generatoren, die neue Abbildungen anhand eines hochgeladenen Fotos oder eine Skizze erzeugen können. Diese werden als Vorlage verwendet und mit den gewünschten neuen Inhalten (z. B. neue Objekte, Farben, Materialien, Hintergründe etc.) zu einer neuen Abbildung zusammengesetzt.
Damit lassen sich auch Fotomontagen realisieren, etwa ein Bestandsgebäude mit einer geplanten PV-Anlage auf dem Dach oder einer Luft/Wasser-Wärmepumpe vor dem Haus. Teilweise nutzen auch schon CAD-Programme für Architekten KI-Bildgeneratoren, mit denen man anhand eines beschreibenden Textes erste Konzeptmodelle für ein Gebäude generieren, variieren und anschließend dreidimensional im CAD-Programm „nachmodellieren“ kann.

Microsoft Designer, Prompt: Behaneck
Bestandserfassung und Bauplanung
KI-Werkzeuge für die Erfassung von Räumen oder Gebäuden können auch im Bestand Entwurfs- und Planungsprozesse beschleunigen. Aurivus, Canvas, Luma AI, NavVis, Voxelgrid und andere Lösungen erfassen Innenräume, Gebäude oder Objekte und wandeln sie automatisch oder halbautomatisch in digitale 3D- oder BIM-Modelle um [6].
KI-Clouddienste können aus einem gescannten Grundrissplan auch ein BIM-Basismodell erstellen, um es für die weitere Planung im Bestand zu nutzen. Die KI erkennt Außenwände, Innenwände, Fenster oder Türen. Nicht oder nicht korrekt erkannte Objekte lassen sich manuell in der CAD-Anwendung editieren, verbessern, mit Attributinformationen anreichern und anschließend für die nachfolgende Planung und Berechnung verwenden.
Das Forschungsprojekt BIMKIT geht noch weiter. Es untersucht Möglichkeiten, über Cloud- und KI-Anwendungen, Informationen zu bestehenden Gebäuden in Form von Plänen, Bildern, Punktwolken oder Textdokumenten auszuwerten, daraus Bauteile und schließlich ein BIM-Bestandsmodell zu generieren. Zugleich sollen vorhandene BIM-Bestandsmodelle automatisch aktualisiert werden.
Es gibt inzwischen auch KI-Grundrissgeneratoren, zum Beispiel Arkdesign, Architectures oder Finch3D, die auf spezifische Projektanforderungen zugeschnittene und im Hinblick auf bestimmte Entwurfsparameter – etwa die Raumnutzung, Rentabilität, Energieeffizienz usw. – optimierte schematische Grundriss- und Gebäudeentwürfe erstellen können. Die Ergebnisse werden teilweise in Echtzeit als BIM-Modell generiert, das im IFC-, XLSX- und DXF-Format heruntergeladen werden kann.

Hottgenroth
Skema.ai ist ein in das BIM-Autorenprogramm Revit integrierbares Online-Designwerkzeug, mit dem Schemapläne auf der Grundlage von Anwendervorgaben und früherer Entwürfe generiert und daraus automatisiert BIM-Modelle bis zum Detaillierungsgrad LOD 350 erstellt werden können.
Swapp.ai beschleunigt das Entwerfen, Modellieren und Planen individueller Gebäude. Auf der Grundlage einfacher Raumlayouts können entsprechend den konstruktiven Vorgaben des Anwenders komplette Revit-Modelle erstellt werden. Mit der cloudbasierten KI-Software Forma von Autodesk lassen sich ferner städtebauliche Entwurfsvarianten in früher Projektphase in Echtzeit unter verschiedenen Aspekten, wie Sonnenexposition, Tageslichtpotenzial, Wind und Mikroklima oder CO2-Emissionen generieren, analysieren, vergleichen und optimieren.

Swapp
KI für die Planung und Berechnung
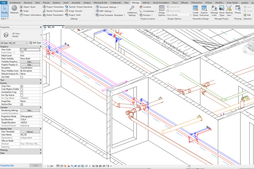
Auch für die TGA-Planung und -Berechnung gibt es erste smarte Lösungen. So kann in TGA-CAD-Programmen KI das Zeichnen und Konstruieren gebäudetechnischer Anlagen unterstützen oder Konstruktionen optimieren. Zu den Einsatzmöglichkeiten gehören die Automatisierung der Trassenführung und die Vermeidung von Leitungskollisionen.
Die auf die BIM-basierte Projektierung spezialisierte Eneca Group of Companies bietet zum Beispiel eine KI-gestützte Lösung zur automatisierten Verlegung von HKLS- und Elektroleitungsführungen. Dazu gibt der Planer im jeweiligen Geschoss den Start- und Endpunkt einer Leitungsstrecke an. Das System berechnet automatisch die optimale Route, unter Berücksichtigung von Hindernissen im BIM-Modell. Es gibt die Möglichkeit, zwischen dem kürzesten Weg oder einer Route entlang der Wände zu wählen. Vom Planer vorgegebene Fixpunkte werden ebenso unterstützt, wie manuelle Anpassungen der Leitungsführung. Damit wird die Planungsdauer verkürzt und mit der Minimierung von Leitungskonflikten auch die Planungsqualität verbessert.

Eneca Group of Companies
KI beschleunigt auch die Elektroplanung: So kombiniert beispielsweise Electrix AI von WSCAD eine smarte Fehlererkennung mit einer intuitiven sprach- oder textgesteuerten Benutzerführung. Im Zentrum der neuen Anwendung steht ein digitaler Assistent, der die Elektroplanung unterstützt. Damit lassen sich repetitive Arbeitsabläufe rationalisieren und komplexe Funktionsabläufe für die Erstellung von Materiallisten, Makros und Bauteilen gegenüber der herkömmlichen Arbeitsweise verkürzen. Die Software prüft auch Konstruktionen, identifiziert Fehler und passt sich Nutzerbedürfnissen an.
Trace 3D Plus von Trane ist eine cloudbasierte KI-Software für die Gebäudeplanung, CO2- und Nachhaltigkeits-Analyse. Sie unterstützt die Modellierung auch sehr komplexer HKL-Systeme, Energiesimulationen und Wirtschaftlichkeitsanalysen unter Berücksichtigung amerikanischer LEED- und ASHRAE-Standards. Durch die Nutzung von Rechnerkapazitäten in der Cloud ermöglicht sie simultane Berechnungen, Echtzeit-Vergleiche und -Simulationen.
Zenesis ist eine digitale, KI-gestützte Planungsplattform, die Planungsprozesse strukturiert und automatisiert. Im Zentrum steht eine individuell anpassbare Wissensdatenbank, die unternehmensspezifische Standards und Erfahrungswerte integriert, zentral und qualitätsgesichert verfügbar macht, was Fehlerquellen minimieren und die Teamarbeit vereinfachen soll. CAD-Plugins sollen einen verlustfreien, bidirektionalen Datenaustausch zwischen Architekten, Fachplanern und Projektentwicklern ermöglichen. Intelligente Vorlagen, parametrisierte Algorithmen und automatisierte Abläufe ersetzen repetitive Aufgaben wie manuelle Datenübertragungen oder Copy-Paste-Prozesse. Das soll Planungszeiten verkürzen und Planungsqualitäten steigern.

WSCAD
Möglichkeiten und Herausforderungen
Die KI wird aufgrund der Vielzahl an Anwendungen auch für den Bau- und TGA-Bereich die Arbeitsweise und Arbeitsabläufe von Planern in den nächsten Jahren erheblich verändern. Welche weiteren Einsatzmöglichkeiten sich künftig ergeben werden und welche Auswirkungen dies haben wird, lässt sich derzeit nicht absehen, denn die Entwicklung ist sehr dynamisch und steht erst am Anfang.
Eine wesentliche Hürde für qualitativ hochwertige KI-Planungslösungen sind mangelnde und mangelhafte Trainingsdaten. Häufig liegen veraltete digitale Projektdaten vor, relevante Daten sind in den Unternehmen auf verschiedene Abteilungen verteilt, einer Verwendung stehen Datenschutzgründe entgegen oder es sind keine As-Built-Daten, die auch alle „baubegleitenden“ Änderungen im Projektverlauf berücksichtigen.
Hinzu kommen „systemische“ Schwächen der KI: Sie kann schon bei einfachen mathematischen Operationen Fehler machen, insbesondere bei der Interpretation von Dezimalzahlen. Falsche oder unvollständige Trainingsdaten können ferner zu fehlerhaften Berechnungs- oder Simulationsergebnissen führen und die meisten Verarbeitungs-, Bewertungs- und Entscheidungsprozesse der KI-Modelle sind nicht transparent, was die Nachvollziehbarkeit und Fehleranalyse erschwert.
Viele der hier vorgestellten Lösungen berücksichtigen zudem europäische Standards oder Richtlinien nicht und stammen häufig von US-amerikanischen Startup-Unternehmen, die sich am hiesigen Markt erst behaupten und etablieren müssen. Marian Behaneck
Fachberichte mit ähnlichen Themen bündelt das TGA+E-Dossier TGA+E-Software

Zenesis
Literatur, Infos, KI-Anwendungen (Auswahl)
[1] Behaneck, Marian: Smarte Baustelle: KI in der Bauausführung: Stuttgart: Gentner Verlag, TGA+E 02-2025
[2] Giannakidis, A., Weber-Lewerenz, B., Stolze, D.: KI in der Bauwirtschaft. Einsatzmöglichkeiten für Planung, Realisierung und Betrieb von Bauwerken. Stuttgart: Fraunhofer IAO, Eigenverlag, 2021
[3] Haghsheno, S., Satzger, G., Lauble, S., Vössing, M.: Künstliche Intelligenz im Bauwesen. Grundlagen und Anwendungsfälle. Heidelberg: Springer-Verlag, 2024
[4] BSP Business School Berlin Hochschule für Management GmbH (Hrsg.): KI-Kochbuch. Berlin: 2021
[5] Begleitforschung Mittelstand-Digital, WIK-Consult (Hrsg.): Künstliche Intelligenz im Mittelstand. Bad Honnef: 2023
[6] Behaneck, Marian: Punktwolken-Daten rationell bearbeiten und auswerten. Stuttgart: Gentner Verlag, TGA+E 05-2025
[7] Links (Auswahl)
www.aecmag.com/ai KI-News vom AECMagazine
www.dfki.de Deutsches KI-Forschungszentrum
www.handwerkdigital.de Themen, Künstliche Intelligenz
www.z-lab.com Digitale Lösungen für die Baustelle
[8] KI-Dialogsysteme
openai.com/index/chatgpt
www.chat-sonic.ai
www.claude.ai
www.frase.io
gemini.google.com
www.x.ai
copilot.microsoft.com
www.neuroflash.com
www.notion.com
www.perplexity.ai
www.pdf.ai
[9] KI-Bildgeneratoren
www.openai.com/dall-e-3
www.lookx.ai
www.midjourney.com
designer.microsoft.com/image-creator
www.promeai.pro
www.roomgpt.io
www.spacely.ai
stablediffusionweb.com/de
www.evolvelab.io/veras

Microsoft, Prompt: Behaneck
[10] KI im Bestand
www.alpha3d.io
www.aurivus.com
www.bimkit.eu
www.canvas.io
www.hottgenroth.de
www.lumalabs.ai
www.magiscan.app
www.navvis.com
www.voxelgrid.com
[11] KI in der Planung
www.arkdesign.ai
www.architectures.com
www.autobimroute.com
www.enecagroup.de
www.finch3d.com
www.modpacksystem.com
www.naviate.com
www.skema.ai
www.slz.kr
www.swapp.ai
www.trane.com
www.wscad.com
www.zenesis-planung.de