Springe auf Hauptinhalt Springe auf Hauptmenü Springe auf SiteSearch
Vorgefertigte Haustechniksysteme

Im Werk montiert spart Zeit am Bau

Kompakt informieren

  • Die Bayerische Hausbau nutzt die Vorteile indus­triell vorgefertigter Haustechniksysteme seit über 18 Jahren.
  • Vormontierte Systeme sind immer dann zweck­mäßig, wenn von etwa 100 Wohnungen rund 80 typgleich sind.
  • Industriell vormontierte Systeme bieten Termin- und Kostensicherheit, einen hohe Qualitätsstandard, einen schnellen Bauablauf und eine optimale Materiallogistik.

„Vielfalt in ihrer nachhaltigsten Form“ ist das Motto des Wohn- und Gewerbebauprojekts WelfenHöfe in München Abb. 1 . Nachhaltigkeit zeigt sich einerseits in den energetischen Eigenschaften der Gebäude, die die Vorgaben der EnEV 2009 weit übertreffen, nachhaltig ist der Komplex jedoch auch durch seine Vielfalt, die auf ein sozial funktionierendes Lebensumfeld zielt.

Von Vielfalt zeugt sowohl die architektonische Gestaltung der Gebäude als auch der Funktionsmix aus Wohnen, Leben und Arbeiten. Mit unterschiedlichsten Wohnungstypen – vom Zweizimmerappartement bis zur Penthousewohnung mit Alpenblick – bieten die WelfenHöfe Raum für verschiedenste Lebensentwürfe und Budgets.

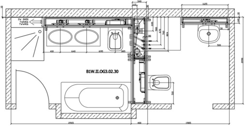
Trotz dieser komplexen Ansprüche an das neue Stadtquartier gelang es der Bayerischen Hausbau Bauweise und Bauablauf so zu optimieren, dass alle Gebäude im Herbst 2012 bezugsfertig sein werden. Eine der Optimierungsmaßnahmen betrifft die haustechnische Ausstattung der Wohnungen: In einem Großteil der rund 500 Wohneinheiten wurden vorgefertigte Installationsschächte und -wände eingebaut.

Vorfertigung seit 18 Jahren im Einsatz

Die Installationssysteme des Haustechnikanbieters Tece werden industriell im Tece-Werk in Emsdetten montiert und anschlussfertig auf die Baustelle geliefert. Die Wände aus stabilem Tragwerk enthalten dann die komplette Sanitärtechnik sowie alle Rohrleitungen für Trink- und Abwasser, Heizung und Lüftung. Ihre Abmessungen werden an die jeweilige Einbausituation genau angepasst.

Die Bayerische Hausbau nutzt dieses Verfahren im mehrgeschossigen Wohnungsneubau bereits seit über 18 Jahren – aus gutem Grund: Mit diesen Systemen dauert der Einbau der Haustechnik in den Wohnungen höchstens halb so lang, wie die sonst übliche Montage von Einzelkomponenten. Die vormontierten Systeme sind immer dann zweckmäßig, wenn von etwa 100 Wohnungen rund 80 gleichen Typs sind. Bei den WelfenHöfen, die aus der Gewerbeimmobilie RegerHof und den beiden Wohnkomplexen TassiloHof und LöwenHof bestehen, lohnt sich der Einbau der Systeme in 235 Wohnungen des LöwenHofs. Im TassiloHof, wo die Badgrundrisse zu verschieden sind, werden die Haustechnik-Produkte von Tece konventionell vor Ort verarbeitet.

Just-in-time direkt auf die Baustelle

Ob eine Vorfertigung sinnvoll ist, wird in der Regel mit dem Planer des jeweiligen Bauprojekts erörtert. Fällt die Entscheidung zugunsten der Vorfertigung, bestimmt der Planer in Zusammenarbeit mit Tece die technische Ausstattung der Systemwände. Erfahrene Anwendungstechniker des Anbieters helfen dabei, den bestmöglichen Grad der Vorfertigung zu bestimmen. Anschließend werden im Werk detaillierte Auf- und Grundrisse der Installationswände auf Basis von Rohrnetzplänen erstellt.

Sind die Pläne freigegeben, läuft die industrielle Vorfertigung an. Just-in-time werden dann die Systemwände direkt auf die Baustelle geliefert und hier sofort verarbeitet Abb. 2 . Im Gegensatz zur konventionellen Montage muss das Material nicht zwischengelagert werden. Die Monteure verankern die Systeme an der Gebäudewand und verbinden die Steigleitungen der übereinander liegenden Geschosse miteinander. All das geschieht innerhalb eines Tages. Danach werden auf dem Tragwerk Verbundplatten montiert und später verfliest Abb. 3 .

Zeitersparnis und bessere Qualität

Für die Bayerische Hausbau bedeutet die Vormontage nicht nur Zeitersparnis auf der Baustelle, sondern auch eine Qualitätsverbesserung. Alle im Werk verwendeten Komponenten sind 100%ig aufeinander abgestimmt und jedes einzelne System wird mit industrieller Präzision gefertigt. Auf der Baustelle hingegen sind die Montagebedingungen meist schwie­riger als im Werk.

Die Projektentwickler schätzten auch die Planungssicherheit, die ihnen die Industriemontage bietet Abb. 4 . Selbst erhöhte Anforderung an den Schall- und Brandschutz werden bereits in der Vorfertigung umgesetzt. Beim Projekt WelfenHöfe ließ die Bayerische Hausbau eine Musterins­tallation der Tece-Wände auf Einhaltung dieser Kriterien im LöwenHof vom TÜV-Süd überprüfen und nahm zusätzlich Stichproben, um die Qualität der haustechnischen Installationen zu kontrollieren. Im Vergleich zur Vorortmontage auf der Baustelle, bei der jede einzelne Steigleitung geprüft werden muss, sinkt damit der Prüfungsaufwand durch die Vormontage deutlich.

Termin- und Kostensicherheit, der hohe Qualitätsstandard sowie ein schneller Bauablauf sind Vorteile, von denen nicht nur der Bauträger profitiert. In der Oberen Au in München trägt das Verfahren der Vorfertigung letztlich auch dazu bei, dass die ersten Eigentümer und Mieter im LöwenHof ihre neuen Wohnungen im April 2012 beziehen konnten. •

https://www.tece.com/de

https://www.hausbau.de/

Bayerische Hausbau

Die Bayerische Hausbau ist eines der größten integrierten Immobilienunternehmen in Deutschland. Mit einem Immobilienportfolio im Wert von rund 2,1 Mrd. Euro nimmt sie nicht nur in ihrem Stammmarkt München eine Spitzenposition ein. Rund 600 Mitarbeiter tragen zu diesem Erfolg bei. Die Bayerische Hausbau bündelt die Bau- und Immobilienaktivitäten der Schörghuber Unternehmensgruppe, die neben dem Bau- und Immobiliengeschäft auch in den Bereichen Getränke, Hotel und Seafood ­unternehmerisch tätig ist. https://www.hausbau.de/

Grit Wehling

id pool GmbH, 70376 Stuttgart, https://storybasedmarketing.de

Jetzt weiterlesen und profitieren.

+ TGA+E-ePaper-Ausgabe – jeden Monat neu
+ Kostenfreien Zugang zu unserem Online-Archiv
+ Fokus TGA: Sonderhefte (PDF)
+ Webinare und Veranstaltungen mit Rabatten
uvm.

Premium Mitgliedschaft

2 Monate kostenlos testen