Springe auf Hauptinhalt Springe auf Hauptmenü Springe auf SiteSearch
Trinkwasserhygiene

Trinkwasser: Wasseraustausch alle 72 Stunden sicherstellen! 

Trinkwasser-Installationen müssen in der Entwurfsphase durch den Bauherrn / Betreiber und den Fachplaner in Abhängigkeit von der späteren Nutzung des Gebäudes für den „bestimmungsgemäßen Betrieb“ und damit für einen regelmäßigen Wasseraustausch ausgelegt werden (Bild 1). Dazu gehört unter anderem, für jede Entnahmestelle die zu erwartenden Nutzungsmengen und -intervalle im Raumbuch schriftlich festzuhalten. Denn die Länge und Dimensionierung der Rohrleitungen sind so zu wählen, dass gleichzeitig die Versorgungssicherheit gegeben ist und das Volumen der Einzelzuleitung bei den vorgesehenen Nutzungsmengen und -intervallen regelmäßig vollständig ausgetauscht wird.

Ist das Volumen der Entnahmeleitung für die zu erwartende Nutzung zu groß, muss auf die Entnahmestelle verzichtet werden oder es sind Lösungen zu finden, die für einen vollständigen Wasserwechsel sorgen. Problematisch ist allerdings, dass die Intervalle für den Wasseraustausch in den Regelwerken nicht einheitlich festgelegt sind:

  • DIN 1988-100 [1] sieht für Leitungen zu selten genutzten Verbrauchern, beispielsweise Stichleitungen zu Außenentnahmestellen, erst eine 4-wöchige Nutzungsunterbrechung als kritisch an.
  • In DIN EN 806-5 [2] wird das Intervall für einen Wasserwechsel für solche Rohrleitungen hingegen auf „vorzugsweise einmal je Woche“ festgelegt.
  • DIN 1988-200 [3] beurteilt den Sachverhalt ähnlich, empfiehlt aber – wörtlich genauer – einen vollständigen Austausch des Inhalts der Rohrleitungen „spätestens nach 7 Tagen“ Nutzungsunterbrechung.
  • Die kleinste Spanne für tolerierbare Nutzungsunterbrechungen bietet VDI/DVGW 6023 [4] an:

  • Die VDI-Richtlinie geht von einem regelmäßigen Wasseraustausch alle 72 h oder maximal alle 7 Tage aus,
  • wenn in der Trinkwasser-Installation hygienisch einwandfreie Verhältnisse herrschen. Um die hygienischen Verhältnisse einer Trinkwasser-Installation bewerten zu können, müss(t)en parallel zum Betrieb laufend mikrobiologische Beprobungen erfolgen. Maßstab für hygienisch einwandfreie Verhältnisse ist dabei die Europäische Trinkwasserdirektive.

    Ausgehend von den genannten Regelwerken und den darin beschriebenen, unterschiedlichen Intervallen für den hygieneerhaltenden Wasseraustausch gemäß „bestimmungsgemäßem Betrieb“ könnten also prinzipiell insbesondere große Trinkwasseranlagen differenziert betrachtet und – je nach Strangabschnitt – aus wirtschaftlichen Gründen in unterschiedlichen Zeitabständen gespült werden: In selten genutzten Strängen (beispielsweise zu Außenzapfstellen) also nur alle vier Wochen, in hygienisch kritischen Zuleitungen hingegen alle 72 h, und die längeren Stichleitungen zu Waschmaschinenanschlüssen oder ähnlichem möglicherweise jede Woche.

    Zudem gibt es Einflussfaktoren wie die Umgebungstemperatur, die über die rein funktionale Betrachtung der Strangabschnitte hinaus die Trinkwassergüte ebenfalls negativ beeinflussen können. Aus hygienischen Gründen ist deshalb grundsätzlich von einer dreitägigen Nutzungsunterbrechung als Grenzwert und damit von einem 72-stündigen Spülintervall auszugehen.

    Bild 2: Die Entnahmedauer zum vollständigen Wasseraustausch steht in unmittelbarem Zusammenhang zum spülrelevanten Verbraucher, zur Rohrdimensionierung und zur Rohrlänge.

    Viega

    Bild 2: Die Entnahmedauer zum vollständigen Wasseraustausch steht in unmittelbarem Zusammenhang zum spülrelevanten Verbraucher, zur Rohrdimensionierung und zur Rohrlänge.

    Nutzungsunterbrechungen: Wenn regelmäßiger Wasseraustausch nicht gegeben ist

    Nutzungsunterbrechungen, also Abweichungen vom „bestimmungsgemäßen Betrieb“, kommen während des Lebenszyklus einer Trinkwasser-Installation immer wieder aus unterschiedlichsten Gründen vor, beispielsweise durch die Umnutzung des Gebäudes oder durch saisonbedingte Betriebsunterbrechungen. Typisch dafür sind jahreszeitenabhängige Urlaubshotels oder Schulen durch die Ferien. In Wohngebäuden sind es Urlaube und arbeits- oder krankheitsbedingte Abwesenheiten in Single-Haushalten.

    Bei diesen Nutzungsunterbrechungen ist der regelmäßige Wasseraustausch nicht gegeben; das stagnierende Wasser verkeimt möglicherweise. Gemäß Trinkwasserverordnung (TrinkwV) § 4 muss dies verhindert werden: „Der Unternehmer und der sonstige Inhaber einer Wasserversorgungsanlage dürfen Wasser, das den [mikrobiologischen und chemischen] Anforderungen […] nicht entspricht, nicht als Trinkwasser abgeben oder anderen zur Verfügung stellen.“

    Bild 3: Wenn zum Schutz vor Verkeimung durchgeschliffene Reiheninstallationen händisch gespült werden müssen, ist zuvor der Rohrinhalt zu bestimmen, um daraus die notwendige Spüldauer abzuleiten.

    Viega

    Bild 3: Wenn zum Schutz vor Verkeimung durchgeschliffene Reiheninstallationen händisch gespült werden müssen, ist zuvor der Rohrinhalt zu bestimmen, um daraus die notwendige Spüldauer abzuleiten.

    Da der Betreiber einer Trinkwasser-Installation nach TrinkwV und VDI/DVGW 6023 (siehe Info-Kasten 2) für den Hygieneerhalt des Trinkwassers und damit den bestimmungsgemäßen Betrieb verantwortlich ist, muss er für einen ausreichenden Wasseraustausch sorgen. Dies gilt auch für Bauträger oder Fachhandwerker, wenn das Objekt nach Fertigstellung einer Installation nicht direkt an den künftigen Nutzer oder Betreiber übergeben wird.

    Treten Nutzungsunterbrechungen auf, wie sie beispielsweise zwischen der Fertigstellung einer Trinkwasser-Installation und ihrer Übergabe an den künftigen Betreiber oder Nutzer üblich sind, muss die Spülung der Trinkwasser-Installation zum Erhalt der Trinkwassergüte in der Regel händisch nach einem Spülplan erfolgen.

    Je nach Länge und Dimensionierung des betreffenden Rohrleitungsnetzes ist dabei neben dem Spülort eine zuvor zu errechnende Spüldauer zwingend einzuhalten (Bild 2). Diese richtet sich nach der nicht bestimmungsgemäß genutzten Rohrleitungsstrecke und ihrer Dimensionierung, denn erst daraus ergibt sich das zum Hygieneerhalt mindestens auszutauschende Wasservolumen (Bild 3). Die Hersteller stellen für solche Berechnungen entsprechende Tabellen zur Verfügung (Bild 4). Werden die Richtwerte nicht eingehalten, besteht weiterhin ein Verkeimungsrisiko oder es wird durch zu langes Spülen Wasser verschwendet und das Spülen wäre unwirtschaftlich. Beides ist zu vermeiden.

    Bild 4: Technische Daten für das Rohrleitungssystem Raxofix – Viega stellt für seine Rohrleitungssysteme unter www.viega.de Tabellen zur Verfügung, mit denen sich das Wasservolumen in der Installation einfach bestimmen lässt.

    Viega

    Bild 4: Technische Daten für das Rohrleitungssystem Raxofix – Viega stellt für seine Rohrleitungssysteme unter www.viega.de Tabellen zur Verfügung, mit denen sich das Wasservolumen in der Installation einfach bestimmen lässt.

    Qualifizierte Übergabe der Trinkwasserinstallation mit Spülplan

    Idealerweise wird durch den Fachhandwerker ein Spülplan aufgestellt, der gleichzeitig als Nachweis für die vorgenommenen Wasserwechsel dient. Neben den Planungsgrundlagen für die Trinkwasseranlage und dem Übergabeprotokoll sollte diese Dokumentation dann im Rahmen der Einweisung des Bauherrn in seine Betreiberpflichten übergeben werden. Der Bauherr / Betreiber bekommt damit konkrete Handlungsempfehlungen, mit welchen Maßnahmen auch er bis zum bestimmungsgemäßen Betrieb der Anlage sowie in der Folgezeit die Trinkwasserhygiene zuverlässig erhalten kann.

    Bild 5: Die Einpressdüse nach dem Venturi-Prinzip ist eine kostengünstige Möglichkeit, um in Ring-leitungen zu selten genutzten Zapfstellen einen kontinuierlichen Wasseraustausch zu gewährleisten.

    Viega

    Bild 5: Die Einpressdüse nach dem Venturi-Prinzip ist eine kostengünstige Möglichkeit, um in Ring-leitungen zu selten genutzten Zapfstellen einen kontinuierlichen Wasseraustausch zu gewährleisten.

    Stillgelegte Trinkwasser-Leitungen sind abzutrennen

    Unter anderem DIN 1988-100 zielt auf das Hygienerisiko durch Stagnation in Trinkwasser-Installationen ab und empfiehlt: „Ein bestimmungsgemäßer Betrieb bedeutet die Durchströmung (d. h. Nutzung) aller Installationsbereiche. Dies kann Folgendes einschließen:

  • Zur Sicherstellung einer jederzeit einwandfreien Beschaffenheit des Trinkwassers sollte an allen Entnahmestellen regelmäßig Trinkwasser entnommen werden;
  • Trinkwasseranlagen, die länger als sechs Monate nicht benutzt werden, sind in befülltem Zustand zu belassen und am Hausanschluss abzusperren. Vor der Inbetriebnahme sind die Leitungen erneut gründlich nach DIN EN 806-4 [5] zu spülen;
  • stillgelegte, nicht mehr benötigte Leitungsabschnitte sind von der übrigen Installation direkt am Abzweig zu trennen.“
  • Sichere technische Lösungen für den automatisierten Wasseraustausch

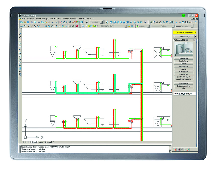
    Bild 6: Das Positionieren einer häufig benutzten Entnahmestelle (hier: WC) am Ende einer durchgeschliffenen Reihenleitung führt zu einem deutlich häufigeren und damit hygieneerhaltenden Austausch des Wasservolumens. Das lässt sich mit der Software „Viptool Engineering“ schon in der Planungsphase verifizieren.

    Viega

    Bild 6: Das Positionieren einer häufig benutzten Entnahmestelle (hier: WC) am Ende einer durchgeschliffenen Reihenleitung führt zu einem deutlich häufigeren und damit hygieneerhaltenden Austausch des Wasservolumens. Das lässt sich mit der Software „Viptool Engineering“ schon in der Planungsphase verifizieren.
    Bild 7: Schnell installiert, einfach programmiert – das sind die Vorteile von Betätigungsplatten mit „Hygiene+“-Funktion, wenn eine Reiheninstallation, beispielsweise die Toilettenanlage in einer Sporthalle, gegen Nutzungsunterbrechungen abgesichert werden muss.

    Viega

    Bild 7: Schnell installiert, einfach programmiert – das sind die Vorteile von Betätigungsplatten mit „Hygiene+“-Funktion, wenn eine Reiheninstallation, beispielsweise die Toilettenanlage in einer Sporthalle, gegen Nutzungsunterbrechungen abgesichert werden muss.

    Häufig verhindern bauliche Gegebenheiten jedoch, sämtliche trinkwasserhygienischen Grundsätze anzuwenden, sodass der not-wendige Wasseraustausch durch Spülung sichergestellt werden muss. Selbst bei genauer Analyse des Rohrleitungsnetzes und der Aufstellung eines präzise ausgearbeiteten Spülplans ist die händische Spülung der Installation in der Praxis jedoch kaum zuverlässig beziehungsweise wirtschaftlich umsetzbar.

    In solchen Anlagen kann es sinnvoller sein, die betroffenen Strangabschnitte schon installationsseitig mit „intelligenten Verbrauchern“ auszustatten, die eine Nutzungsunterbrechung erkennen und einen bedarfsgerechten Wasserwechsel automatisiert herbeiführen. Bei Zuleitungen zu einzelnen Entnahme-stellen, wie einem Außenwasserhahn, ist das mit geringem Aufwand über eine Ringleitung möglich, die vor einer Einpressdüse nach dem Venturi-Prinzip von der Hauptverteilung abgeht (Bild 5). Auch das (nachträgliche) Einschleifen von Entnahmestellen in eine Reihenleitung und das Positionieren einer häufig benutzten Entnahmestelle am Ende der Reihenleitung, beispielsweise eines WCs, kann zu einem deutlich häufigeren und damit hygieneerhaltenden Austausch des Wasservolumens führen (Bild 6).

    Zur einfachen und zuverlässigen Vermeidung von Nutzungsunterbrechungen kann alternativ auch eine Betätigungsplatte mit „Hygiene+“-Funktion für WCs oder Urinale am Ende einer Reiheninstallation installiert werden (Bild 7). Bei diesen Betätigungsplatten lassen sich Spülintervalle und -volumina so programmieren, dass auf die jeweilige Installation und das entsprechende Stagnationsrisiko abgestimmt bedarfsgerecht gespült wird.

    Steht kein Spülkasten zur Installation einer Betätigungsplatte mit „Hygiene+“-Funktion zur Verfügung oder ist eine Dokumentation der Maßnahmen erwünscht, ist alter-nativ der Einsatz einer entsprechenden Spülstation möglich (Bild 8). Die Spülstation erkennt über entsprechende Sensorik, wenn ein Wasseraustausch ausbleibt und welche Menge ausgetauscht werden muss. Dabei wird durch die Spülstation der Zeitpunkt, die Spülmenge, die Temperatur vor und die Temperatur nach dem Wasserwechsel als Nachweis protokolliert.

    Bild 8: Steht am Ende einer abzusichernden Stichleitung kein Spülkasten zur Verfügung, kann alternativ eine Spülstation mit „Hygiene+“-Funktion für den hygienegerechten Wasseraustausch sorgen.

    Viega

    Bild 8: Steht am Ende einer abzusichernden Stichleitung kein Spülkasten zur Verfügung, kann alternativ eine Spülstation mit „Hygiene+“-Funktion für den hygienegerechten Wasseraustausch sorgen.

    Wichtig für TGA-Planer, Anlagenbauer und Bauherren

    TGA-Planer: Der bestimmungsgemäße Betrieb ist die grundlegende Voraussetzung für den Hygieneerhalt einer Trinkwasser-Installation. Trotzdem ist der regelmäßige Wasserwechsel nicht einheitlich geregelt. Als Grenzwert für die Planung sollte ein 72-stündiges Spülintervall gemäß VDI/DVGW 6023 mit dem Bauherren vereinbart werden.

    Anlagenbauer: Nach VDI/DVGW 6023 hat der Errichter einer Trinkwasser-Installation bis zum Nachweis der einwandfreien Trinkwasserbeschaffenheit beziehungsweise bis zur werkvertraglichen Abnahme den bestimmungsgemäßen Betrieb sicherzustellen und zu dokumentieren. Zudem muss er den Betreiber auf seine bestehenden Pflichten hinweisen.

    Bauherren: Der Betreiber einer Trinkwasser-Installation ist für ihren Hygieneerhalt verantwortlich. Bereits die zeitweise Sicherstellung des regelmäßigen Wasserwechsels in allen Leitungsabschnitten durch einen manuellen Spülplan ist aufwendig und teuer. Wirtschaftlicher ist es, den Wasserwechsel durch „intelligente Verbraucher“ zu gewährleisten.

    Planung und Praxis für die hygieneerhaltende Trinkwasser-Installation

    Oft können aufgrund baulicher Gegebenheiten wichtige hygieneerhaltende Voraussetzungen für Trinkwasser-Installationen aus der Planung wie

  • kurze Leitungswege,
  • durchgeschliffene Zapfstellen,
  • Hauptnutzer am Ende von Stichleitungen oder
  • Einhaltung der Temperaturführung
  • bei der Ausführung nicht in der gewünschten Konsequenz erfüllt werden. Das kann dazu führen, dass der ursprünglich festgelegte bestimmungsgemäße Betrieb für den Wasseraustausch nicht ausreichend ist. In diesem Fall ist der bestimmungsgemäße Betrieb den Gegebenheiten anzupassen.

    Errichter und Betreiber für den Erhalt der Trinkwassergüte verantwortlich

    Nach VDI/DVGW 6023 ist der Betreiber einer Trinkwasser-Installation für den Erhalt der Trinkwassergüte verantwortlich: „Mit dem dokumentierten Nachweis der einwandfreien Trinkwasserbeschaffenheit nach der Befüllung geht die Verantwortung für den bestimmungsgemäßen Betrieb der Trinkwasser-Installation auf den Unternehmer und sonstigen Inhaber über. Bis zum Vorliegen des Nachweises, längstens jedoch bis zum Zeitpunkt der werkvertraglichen Abnahme, hat der Errichter den bestimmungsgemäßen Betrieb sicherzustellen und zu dokumentieren. Der Unternehmer und sonstige Inhaber (Betreiber) ist spätestens zu diesem Zeitpunkt auf seine bestehenden Pflichten zum bestimmungsgemäßen Betrieb der Anlage hinzuweisen. Hierüber ist ein Protokoll anzufertigen.“

    Literatur

    [1] DIN 1988-100 Technische Regeln für Trinkwasser-Installationen – Teil 100: Schutz des Trinkwassers, Erhaltung der Trinkwassergüte; Technische Regel des DVGW. Berlin: Beuth Verlag, August 2011

    [2] DIN EN 806-5 Technische Regeln für Trinkwasser-Installationen – Teil 5: Betrieb und Wartung; Deutsche Fassung EN 806-5:2012. Berlin: Beuth Verlag, April 2012

    [3] DIN 1988-200 Installationen – Teil 200: Installation Typ A (geschlossenes System) – Planung, Bauteile, Apparate, Werkstoffe; Technische Regel des DVGW. Berlin: Beuth Verlag, Mai 2012

    [4] VDI/DVGW 6023 Hygiene in Trinkwasser-Installationen – Anforderungen an Planung, Ausführung, Betrieb und Instandhaltung. Berlin: Beuth Verlag, April 2013

    [5] DIN EN 806-4 Technische Regeln für Trinkwasser-Installationen – Teil 4: Installation; Deutsche Fassung EN 806-4:2010. Berlin: Beuth Verlag, Juni 2010

    Dieser Artikel ist eine Überarbeitung des Artikels „Wasseraustausch alle 72 h sicherstellen!“, erschienen in TGA 07-2014.

    Lesen Sie auch:

    Ein wenig Gefälle reicht zur Gebäudeentwässerung nicht aus!

    Mit Gelenkverbindern Rohrleitungen stabil montieren

    …mehr zum Thema Trinkwasserhygiene