Springe auf Hauptinhalt Springe auf Hauptmenü Springe auf SiteSearch
TGA-Software

Planungssoftware für Trinkwassernetze: Hygiene im Programm

Bild 1 Auf DIN 1988-300 basierende Software unterstützt den Planer bei der regelkonformen Trinkwassernetz-Auslegung und -Optimierung.

Viega

Bild 1 Auf DIN 1988-300 basierende Software unterstützt den Planer bei der regelkonformen Trinkwassernetz-Auslegung und -Optimierung.

Software für Trinkwassernetze ermöglicht eine hydraulisch und hygienisch optimierte, normenkonforme Planung. Welche Lösungen es gibt und was sie können, zeigt dieser aktuelle Produktvergleich.

Kompakt zusammengefasst
Trinkwassernetze müssen insbesondere aus hygienischen Gründen präzise und richtlinienkonform geplant werden.
■ Auf DIN 1988-300 basierende Auslegungsprogramme ermöglichen eine wirtschaftliche Trinkwassernetz-Planung nach dem aktuellen Stand der Technik.
■ Neben der Auslegung und Berechnung werden auch eine Optimierung der Leitungsführung und einzelner Komponenten sowie die hydraulische Einregulierung, Inbetriebnahme und ein hygienischer Betrieb unterstützt.
■ Die Programme setzen aber Fachwissen voraus, um beispielsweise strömungstechnische Probleme erkennen und Ergebnisse auf Plausibilität prüfen zu können.
 

Bei der Auslegung von Trinkwasserrohrnetzen spielt die Trinkwasserqualität an den Entnahmestellen eine zentrale Rolle. Sie wird neben den Rohrwerkstoffen und der Ausführung maßgeblich auch von der Leitungsnetz-Konstruktion und -Berechnung beeinflusst.

Die Rohrdurchmesser von Verbrauchs- und Zirkulationsleitungen müssen deshalb sorgfältig und auf der Grundlage aktueller Technischer Regeln berechnet werden. Prinzipiell können Trinkwassernetze auch manuell mit Taschenrechner oder Excel-Tabellen ausgelegt werden. Einfacher und wirtschaftlicher ist die Planung und Berechnung vor allem großer und komplexer Anlagen allerdings mit den hier vorgestellten Programmen.

Bild 2 Gegenüber der manuellen Berechnung ist die softwaregestützte Planung wirtschaftlicher, rationeller und sicherer, …

Solar-Computer

Bild 2 Gegenüber der manuellen Berechnung ist die softwaregestützte Planung wirtschaftlicher, rationeller und sicherer, …
Bild 3 … insbesondere bei großen und weit verzweigten Anlagen.

ConSoft

Bild 3 … insbesondere bei großen und weit verzweigten Anlagen.
Bild 4 Geplant werden Trinkwassernetze ausgehend vom Systemschnitt oder auf der Basis von Grundrissplänen.

Uponor

Bild 4 Geplant werden Trinkwassernetze ausgehend vom Systemschnitt oder auf der Basis von Grundrissplänen.

Richtlinienkonform planen

Die normative Grundlage für die Auslegung von Trinkwasserrohrnetzen in Gebäuden ist DIN 1988-300 [3]. Sie zielt darauf ab, die Mindestdurchflüsse an allen Entnahmestellen mit den kleinstmöglichen Innendurchmessern sicherzustellen, um Hygieneproblemen durch zu geringen Wasseraustausch und zu geringe Strömungsgeschwindigkeiten vorzubeugen. Zugleich werden Mehrkosten durch Überdimensionierungen bei der Installation und im Betrieb vermieden.

Gegenüber der vereinfachten Bemessung nach DIN EN 806-3 [4], die nur für Objekte mit maximal sechs Wohneinheiten und nur unter bestimmten Voraussetzungen zulässig ist, erfasst die nationale Ergänzungsnorm DIN 1988-300 alle Einflussfaktoren präziser und detaillierter. Nahezu alle in der nachfolgenden Vergleichstabelle vorgestellten Programme offerieren eine Trinkwassernetz-Berechnung gemäß DIN 1988-300. Zusätzlich werden die DVGW-Arbeitsblätter W 551 [6], W 553 [7], W 557 [8] und W 575 [9] sowie weitere Richtlinien berücksichtigt.

Automatismen für einfache Planung

Geplant werden Trinkwassernetze als Strangschemapläne ausgehend vom Systemschnitt des Gebäudes oder als Installationspläne auf der Basis von Grundrissplänen, die im Programm erstellt oder per DXF- oder DWG-Schnittstelle eingelesen werden. Ein IFC-Import ermöglicht die Teilnahme an BIM-Projekten, einige Programme verfügen auch über einen (optionalen) 3D-Modelleditor.

Die gewünschten Verbrauchersymbole werden anschließend in die Grundrisse oder Gebäudeschnitte eingefügt. Dazu werden die Installationsobjekte aus herstellerspezifischen oder -neutralen Bibliotheken ausgewählt und platziert. Deren Berechnungs- und Anschlusswerte können individuell verändert werden.

Die Trassenführung der Kalt- und Warmwasserleitung wird mit einer Polylinie vorgegeben, die Installationsobjekte werden danach manuell oder automatisch an die Leitungen angeschlossen, deren Rohrmaterial und -dämmung zuvor ausgewählt wurde. Werden neue Verbrauchersymbole eingefügt, entfernt oder verändert, passt sich die Leitungsführung in der Regel selbständig an.

Vorteilhaft ist es, wenn sich einzelne Leitungsstränge und Anlagenteile auch geschossweise kopieren und an der neuen Position an das Hauptleitungsnetz anbinden lassen. Solche und weitere Funktionen minimieren den Aufwand beim Erstellen und vor allem beim Ändern von Trinkwassernetz-Plänen.

Berechnen und optimieren

Berechnen lassen sich Trinkwasseranlagen meist entweder aus dem Grundriss, aus dem Leitungsschema oder aus der Tabelle. Bei der hydraulischen Berechnung werden aus den Sanitäreinrichtungen die jeweiligen Durchflusswerte und der minimalen Fließdruck übernommen und unter Berücksichtigung von Gleichzeitigkeits-Faktoren der Berechnungs-, Dauer- und Spitzendurchfluss nach DIN 1988-300 ermittelt.

Die Trinkwasserleitungen werden nach vorgegebener maximaler Geschwindigkeit und maximalem R-Wert dimensioniert. Herstellerspezifische Rohr-, Formteil- und Ventildatensätze sind in der Regel vorhanden und können individuell oder über Online-Datenbanken ergänzt werden.

Bild 6 Berechnungsergebnisse werden tabellarisch angezeigt, in der Tabelle selektierte Objekte werden in der Grafik farbig hervorgehoben – und umgekehrt.

liNear

Bild 6 Berechnungsergebnisse werden tabellarisch angezeigt, in der Tabelle selektierte Objekte werden in der Grafik farbig hervorgehoben – und umgekehrt.
Bild 5 Eingefügt werden die Bauteile aus logisch strukturierten und erweiterbaren herstellerspezifischen oder -neutralen Bauteildatenbanken.

Solar-Computer

Bild 5 Eingefügt werden die Bauteile aus logisch strukturierten und erweiterbaren herstellerspezifischen oder -neutralen Bauteildatenbanken.
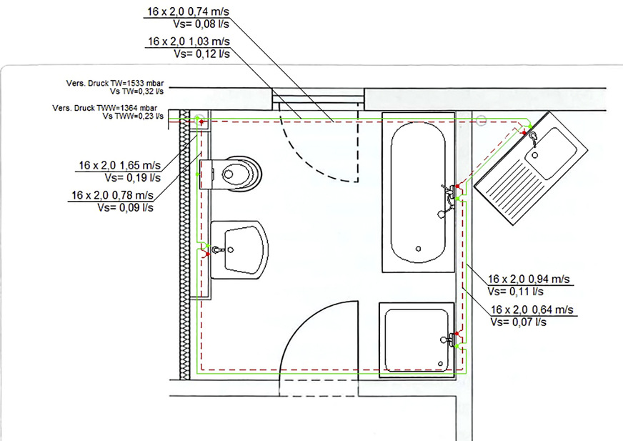
Bild 7 In den Schemaplänen ausgewiesene Fließrichtungen, Rohrdurchmesser und Anschlusswerte geben ebenfalls einen guten Überblick.

Hottgenroth Software

Bild 7 In den Schemaplänen ausgewiesene Fließrichtungen, Rohrdurchmesser und Anschlusswerte geben ebenfalls einen guten Überblick.
Bild 8 Druckverlust- und Druckbilanzübersichten vereinfachen die Optimierung des Trinkwassernetzes.

Solar-Computer

Bild 8 Druckverlust- und Druckbilanzübersichten vereinfachen die Optimierung des Trinkwassernetzes.

Für eine produktneutrale Planung und Ausschreibung können Referenzrohrreihen der DIN 1988-300 mit den dort angegebenen Werten verwendet werden. Ermittelt werden der Gesamtdruckverlust, der maximale Einzeldruckverlust, Daten für Druckminderer und Druckerhöhungsanlagen, die ungünstigsten Stränge für Kalt- und Warmwasser etc. Ferner werden alle notwendigen Durchflüsse der Zirkulationsleitungen, der Temperaturverlauf und die Einstellung der Zirkulationsventile berechnet.

Die Berechnung erfolgt etagenweise oder für das gesamte Gebäude. Stränge und Etagen können beliebig ausgewählt bzw. kombiniert werden. Neben der Leitungsplanung und -berechnung ist auch eine Optimierung von Rohrleitungsführungen, Regelkomponenten und Pumpen möglich.

Bild 9 Mit Simulationen des zeitlichen Temperaturverlaufs lassen sich Kalt- und Warmwasserleitungen hygienisch optimieren.

Viega

Bild 9 Mit Simulationen des zeitlichen Temperaturverlaufs lassen sich Kalt- und Warmwasserleitungen hygienisch optimieren.
Bild 10 Ein 3D-Modelleditor samt IFC-Schnittstelle ermöglicht die Teilnahme an BIM-Projekten.

Hottgenroth Software

Bild 10 Ein 3D-Modelleditor samt IFC-Schnittstelle ermöglicht die Teilnahme an BIM-Projekten.

Unterstützt werden auch die hydraulische Einregulierung, Inbetriebnahme und ein hygienischer Betrieb des Leitungssystems, beispielsweise über eine Hygienespülungs-Berechnung, welche die erforderliche Durchflussmenge und Dauer für jede Teilleitung ermittelt.

Ausgeben und dokumentieren

Als Ergebnis erhält man ein qualifiziertes Strangschema mit allen Angaben – vom eingesetzten Rohrmaterial mit entsprechender Nennweite – bis hin zum Mindestfließdruck an jeder Entnahmestelle. Damit lässt sich sowohl die Wirtschaftlichkeit und Betriebssicherheit der Trinkwasser-Installation dokumentieren, als auch die Versorgungssicherheit an den Zapfstellen.

Eine grafische Anzeige von Eingabewerten und Berechnungsergebnissen wie Leitungsdimensionen und -materialien, Geschwindigkeiten, Druckverlusten oder ungünstigsten Fließwegen vereinfacht die Planung, Fehlersuche und Bewertung. Ob das Trinkwassernetz auch tatsächlich funktioniert, ob beispielsweise für das Zirkulationssystem passende Regelventile und Pumpen ausgewählt wurden, lässt sich bei einigen Programmen mit einer Zirkulationssimulation für Neuanlagen oder Bestandsnetze überprüfen, um Schwachstellen im Vorfeld zu analysieren.

Aus dem Schemaplan generierte Stücklisten inklusive aller Leitungsarten, Formteile und Artikelnummern vereinfachen Fachhandwerkern die Angebotskalkulation und Bestellung. Einige Programme geben auch Montagepläne aus oder unterstützen die Schlitz- und Durchbruchsplanung. Die Berechnungsergebnisse werden in Form von Tabellen oder Grafiken dokumentiert und können ausgedruckt oder als PDF-Datei ausgegeben werden.

Bild 11 Erfolgt die Trinkwassernetz-Planung parallel mit anderen gebäudetechnischen Gewerken, lassen sich eventuelle Kollisionen schnell erkennen.

Graphisoft Building Systems

Bild 11 Erfolgt die Trinkwassernetz-Planung parallel mit anderen gebäudetechnischen Gewerken, lassen sich eventuelle Kollisionen schnell erkennen.

Welche Programme gibt es?

Etwa 25 deutschsprachige Planungsprogramme für Trinkwassernetze gibt es derzeit (siehe Tabelle und [14]), davon sind 19 Programme in diesem Produktvergleich enthalten. Neben produktunabhängigen Programmen von Softwareherstellern werden auch produktspezifische Berechnungsprogramme von Trinkwassersystem-Herstellern offeriert. Diese beinhalten Rohr-, Formteil- und Ventildatensätze eines Herstellers und unterstützen vor allem Fachhandwerker bei der rationellen Planung, Kalkulation und Bestellung.

Bild 12 Aus dem Schemaplan generierte Stücklisten vereinfachen die Angebotskalkulation und Bestellung.

Viega

Bild 12 Aus dem Schemaplan generierte Stücklisten vereinfachen die Angebotskalkulation und Bestellung.

Zu den produktunabhängigen Lösungen gehören numerische Berechnungsprogramme mit grafischer 2D-Darstellung sowie CAD-Programme mit angeschlossenen Berechnungsmodulen oder integrierten Berechnungsfunktionen. Letztere ermöglichen eine Berechnung unmittelbar im Modell, ohne zeitraubende und fehleranfällige Datenübergabe. Änderungen im Modell werden automatisch in der Berechnung übernommen und umgekehrt.

Die meisten Programme eignen sich sowohl für einfache als auch für große und komplexe Trinkwasseranlagen im Neubau und Bestand. Integrierte Lösungen ermöglichen auch die parallele Planung von Abwasser- oder Dachentwässerungsanlagen und anderen gebäudetechnischen Gewerken.

Unterschiede zeigen sich in Details, beispielsweise in den Bauteilkatalogen, deren Umfang, Strukturierung oder Erweiterbarkeit oder bei der Berechnung und Ausgabe, wo teilweise elementare Funktionen fehlen. Nicht alle Programme berücksichtigen hierzulande relevante Trinkwasser-Normen, manchmal fehlen auch wichtige Schnittstellen oder die Programme setzen eine Basis-Software voraus.  Marian Behaneck

Fachberichte mit ähnlichen Themen bündelt das TGAdossier TGA-Software

Literatur

[1] DIN 1988-100 Technische Regeln für Trinkwasser-Installationen – Teil 100: Schutz des Trinkwassers, Erhaltung der Trinkwassergüte; Technische Regel des DVGW. Berlin: Beuth Verlag, August 2011

[2] DIN 1988-200 Technische Regeln für Trinkwasser-Installationen – Teil 200: Installation Typ A (geschlossenes System) – Planung, Bauteile, Apparate, Werkstoffe; Technische Regel des DVGW. Berlin: Beuth Verlag, Mai 2012

[3] DIN 1988-300 Technische Regeln für Trinkwasser-Installationen – Teil 300: Ermittlung der Rohrdurchmesser; Technische Regel des DVGW. Berlin: Beuth Verlag, Mai 2012

[4] DIN EN 806-3 Technische Regeln für Trinkwasser-Installationen, Teil 3: Berechnung der Rohrinnendurchmesser – Vereinfachtes Verfahren. Berlin: Beuth Verlag, Juli 2006

[5] DIN EN 1717 Schutz des Trinkwassers vor Verunreinigungen in Trinkwasser-Installationen und allgemeine Anforderungen an Sicherungseinrichtungen zur Verhütung von Trinkwasserverunreinigungen durch Rückfließen. Berlin: Beuth Verlag, August 2011

[6] DVGW W 551 Trinkwassererwärmungs- und Trinkwasserleitungsanlagen; Technische Maßnahmen zur Verminderung des Legionellenwachstums; Planung, Errichtung, Betrieb und Sanierung von Trinkwasser-Installationen. Berlin: Beuth Verlag, April 2004

[7] DVGW W 553: Bemessung von Zirkulationssystemen in zentralen Trinkwassererwärmungsanlagen, Beuth, Berlin, Dezember 1998

[8] DVGW W 557 Reinigung und Desinfektion von Trinkwasser-Installationen. Berlin: Beuth Verlag, Juni 2020

[9] DVGW W 575 Ermittlung von Widerstandsbeiwerten für Form- und Verbindungsstücke in der Trinkwasser-Installation. Berlin: Beuth Verlag, Januar 2012

[10] VDI 6003 Trinkwassererwärmungsanlagen – Komfortkriterien und Anforderungsstufen für Planung, Bewertung und Einsatz. Berlin: Beuth Verlag, August 2018

[11] VDI 6023-1 (Entwurf) Hygiene in Trinkwasser-Installationen, Blatt 1: Anforderungen an Planung, Ausführung, Betrieb und Instandhaltung. Berlin: Beuth Verlag, Mai 2020

[12] Kistemann, T.; Schulte, W.; Rudat, K.; Hentschel, W.; Häußermann, D.: Gebäudetechnik für Trinkwasser. Fachgerecht planen – Rechtssicher ausschreiben – Nachhaltig sanieren. Berlin: VDI-Buch, Springer, 2012

[13] Bäcker, C.: Bemessung von Trinkwasser-Installationen nach DIN 1988-300. Pfullendorf: Geberit Kompetenzbroschüre, Eigenverlag, 2019

[14] Weitere Produkte und Anbieter (Auswahl): Acado Haustechnik (www.acado.ch), EboCAD Sanitär (www.eboplan.ch), Geberit ProPlanner (www.geberit.com), pit-CAD Heizung-Sanitär (www.pit.de), SpriCAD (Sprinklernetze, www.idat.de), Trimble Nova (mep.trimble.com), Trinkwasserinstallation DIN 1988-300 (www.sss2000.de)