Springe auf Hauptinhalt Springe auf Hauptmenü Springe auf SiteSearch
Software für die Gebäudeentwässerung

Ab- und Regenwasserrohrnetze: Mit Software läuft es besser ab

Bild 1 Entwässerungsnetze spielen bei der Koordination mit anderen TGA+E-Gewerken eine wichtige Rolle, deshalb sind gewerkeübergreifende Programme im Vorteil.

Graphisoft Building Systems

Bild 1 Entwässerungsnetze spielen bei der Koordination mit anderen TGA+E-Gewerken eine wichtige Rolle, deshalb sind gewerkeübergreifende Programme im Vorteil.

Für die Auslegung und Optimierung der Gebäudeentwässerung nach DIN EN 12056, DIN EN 752 und DIN 1986-100 bietet der Markt zahlreiche Planungsprogramme. Wie sie sich unterscheiden, zeigt dieser Produktvergleich.

Der Artikel kompakt zusammengefasst
■ Programme oder Programmmodule für die Berechnung, Auslegung und Optimierung von Entwässerungsanlagen für Gebäude und Grundstücke steigern die Planungsqualität und ermöglichen Optimierungen.
■ So lassen sich durch eine überlegte Trassenführung nicht nur Konflikte vermeiden, sondern auch Material, Aussparungen und Brandschutzmaßnahmen einsparen.
■ Da sich die angebotenen Programme im Funktionsumfang, aber auch in den Arbeitsabläufen und dem Zusammenspiel mit anderen Programm-Modulen unterscheiden, sollte man auch auf den Workflow bei der Auslegung, Berechnung, Änderung, Massen- oder Kostenkalkulation achten.
 

Werden die Leitungsführung und die Rohrquerschnitte mit Programmen zur Planung von Rohrnetzen für die Entwässerung im Vorfeld berechnet und optimiert, lassen sich hydraulische Eigenschaften von Abwasserinstallationen verbessern, Material, Durchbrüche, Aussparungen und Schlitze in Wänden und Geschossdecken sowie Brandschutzmaßnahmen einsparen.

Ferner können aus ungünstigen Trassenführungen resultierende Probleme und Kollisionen mit anderen TGA-Gewerken oder der Gebäudestruktur rechtzeitig erkannt und vermieden werden. Denn aufgrund des erforderlichen Gefälles bei der Freispiegelentwässerung lassen sich zu spät erkannte Konflikte oft nur mit großem Aufwand korrigieren.

Bild 2 Alle relevanten Parameter von Sanitärobjekten oder Abwasserleitungen können jederzeit angezeigt und modifiziert werden.

Solar-Computer

Bild 2 Alle relevanten Parameter von Sanitärobjekten oder Abwasserleitungen können jederzeit angezeigt und modifiziert werden.

Einsatzbereiche und Leistungsumfang

Planungssoftware für die Gebäudeentwässerung berechnet alle Nennweiten, Mindestgefälle, Füllungsgrade oder Fließgeschwindigkeiten von Abwasser- und Lüftungsleitungen sowie Regenwasserleitungen. Als Berechnungsgrundlage dienen bei den meisten Programmen die europäische Normen DIN EN 12056 [1, 2] und DIN EN 752 [3] sowie das ergänzende deutsche Regelwerk DIN 1986-100 [4].

Neben der Neuberechnung können bei Sanierungen oder Anlagenerweiterungen auch Nennweiten bestehender Gesamt- und Teilnetze rechnerisch überprüft werden. Parameter, wie etwa Mindestgefälle oder Nennweiten können als fixe Werte vorgegeben werden. Berücksichtigt werden Anschlusswerte (DU) der Sanitärgegenstände, Volumen- (Qc) und Pumpenströme (Qp). Auch Sonderbauteile, wie Rückstausicherungen, Hebeanlagen, Abscheideranlagen oder Anlagen zur Regenwasser-/Grauwassernutzung können mit einigen Programmen berechnet werden.

Anlagenbelüftungen werden als Hauptlüftung, direkte oder indirekte Nebenlüftung, Umlüftung, Sekundärlüftung berücksichtigt, ebenso wie Belüftungsventile oder Lüftungshauben. Die Berechnungsergebnisse werden auf der Grundlage hydrodynamischer Fließformeln auf die Einhaltung von Mindestgefälle, Mindestgeschwindigkeiten und Füllungsgrade, abhängig vom Fließgefälle und den Fließwiderständen überprüft. Leitungsarten und -dimensionen, Füllungsgrade oder Gefälle können anschließend visualisiert und gegebenenfalls geändert werden.

Bild 3 Auch komplexe Entwässerungsanlagen lassen sich im Schema übersichtlich darstellen.

liNear

Bild 3 Auch komplexe Entwässerungsanlagen lassen sich im Schema übersichtlich darstellen.

Ausgabe und Kollisionskontrollen

Ausgabefenster informieren über kritische Parameter oder Abbruchkriterien für die Berechnung. Individuell erweiterbare Datenbanken mit allen relevanten Parametern für Rohre, Formstücke, Entwässerungsgegenstände, Regenwasserabflüsse, Belüftungsventile, Lüftungshauben, Dämmung etc. beschleunigen die Planung. Alle Ein- und Ausgaben werden tabellarisch oder grafisch dokumentiert und können ausgedruckt, als PDF-Datei ausgegeben oder über Schnittstellen exportiert werden.

Massenauszüge bilden die Grundlage für Leistungsverzeichnisse, die raum- oder gruppenweise unterteilt und für Dachabläufe, Entwässerungsgegenstände, Rohrleitungen, Formstücke, Zubehör etc. nach Nennweiten geordnet werden können. Der Materialauszug kann anschließend für Kalkulationen und Bestellungen als Excel-Liste ausgegeben oder zum Import in eine Ausschreibungssoftware zur Verügung gestellt werden.

Lassen sich mit derselben Software parallel auch Trinkwasseranlagen oder weitere gebäudetechnische Gewerke planen, können visuelle oder automatisierte Kollisionskontrollen durchgeführt werden. BIM-fähige Planungsprogramme ermöglichen den digitalen Austausch von Kollisionsberichten über das IFC- oder BCF-Datenformat. Einige Programme überprüfen die Planung auch auf mögliche Fehler oder eine Überschreitung von Grenzbedingungen, etwa die maximale Länge und Anzahl von Bögen, die Absturzhöhe gemäß Tabellen 5 und 8 der DIN EN 12056-2 und der Tabelle 5 der DIN 1986-100. Eventuelle Problemstellen werden grafisch hervorgehoben.

Bild 4 Die Planung am BIM-Gebäudemodell ermöglicht einen schnellen Überblick über die räumlichen Zusammenhänge.

Hottgenroth

Bild 4 Die Planung am BIM-Gebäudemodell ermöglicht einen schnellen Überblick über die räumlichen Zusammenhänge.

Dachentwässerung sicher auslegen

Angesichts zunehmender Extrem-Wetterereignisse wird die Auslegung von Dachentwässerungsanlagen immer wichtiger. Deshalb ist gemäß DIN EN 12056-3 und DIN 1986-100 ein hydraulischer Leistungsnachweis zwingend. Software für die Dachentwässerung ermittelt alle erforderlichen Nennweiten für Dachabläufe und Notüberläufe und berücksichtigt dabei alle relevanten Parameter wie Regenspenden (r), Regenwasserabflüsse (Q), abflusswirksame Dachflächen (A), Abflussbeiwerte (C), Fließweglängen (L) sowie durch Rinnenwinkel, Lötstutzen oder Laubfangkörbe bedingte Strömungswiderstände.

Die Berechnung unterscheidet zwischen vorgehängten und innenliegenden Rinnen, die nach unterschiedlichen Regenszenarien ausgelegt werden (Berechnungsregen r(5,5) bzw. Jahrhundertregen r(5,100)). Zu den Berechnungsergebnissen gehören auch ein Überflutungsnachweis nach DIN 1986-100 oder der erforderliche Rückhalteraum bei Einleitungsbeschränkung.

Bei der Entwässerungsplanung von Flachdächern wird zwischen der konventionellen Freispiegel- und der Druckströmungsentwässerung unterschieden. Letztere saugt durch die Schwerkraft das Regenwasser von der Dachfläche, sobald sich Wasser mit einer bestimmten Höhe auf dem Dach anstaut und eine vollständige Füllung der Rohrleitung erreicht wird. Voraussetzung ist allerdings eine Mindest-Dachflächengröße (ab ca. 150 m2), eine Fallhöhe von mindestens 4 m, spezielle Dachabläufe sowie weitere Randbedingungen. Allerdings berechnet diese Art der Entwässerung nur knapp die Hälfte der hier vorgestellten Programme.

Bild 5 Online abrufbare produktspezifische Objektdatenbanken vereinfachen die BIM-Planung.

Magicad Group

Bild 5 Online abrufbare produktspezifische Objektdatenbanken vereinfachen die BIM-Planung.

Entwässerung Schritt für Schritt planen

Geplant wird auf der Grundlage von importierten DXF- oder DWG-Architektenplänen oder per IFC-Schnittstelle eingelesenen BIM-Gebäudemodellen. Einige Programme verfügen auch über einen Editor für Gebäudebauteile, mit dem komplette Gebäude frei oder auf der Grundlage gescannter Papierpläne erstellt werden können.

Zumeist erfolgt die Entwässerungsplanung zusammen mit der Planung der Sanitärausstattung und der Trinkwasseranlage. Dabei werden die Positionen aller Sanitärgegenstände definiert und stehen damit inklusive aller Anschlusswerte auch für die Planung der Entwässerungsanlage zur Verfügung.

Die Trassenführung der Abflussleitungen wird mit einer Polylinie im Grundriss, Schnitt (Strangschema) oder in der Isometrie vorgegeben. Auf Grundlage dieses Ein-Strich-Modells werden die Abflussleitungen automatisch generiert. Parallel werden die Leitungslängen ermittelt und die Leitungsart definiert. Die Art der Leitung (Schmutzwasser-, Regenwasser-, Grauwasser- und Lüftungsleitungen) erkennt das Programm aus der jeweiligen Anschlusssituationen und der Leitungsführung ebenso auf Wunsch automatisch, wie Lüftungsarten oder Bauteile wie Haupt-, Sekundär-, Neben- und Umlüftungen, Belüftungsventile, Lüftungshauben etc.

Bild 6 Leitungsanschlüsse erfolgen weitgehend automatisch und über zuvor definierte Parameter.

Magicad Group

Bild 6 Leitungsanschlüsse erfolgen weitgehend automatisch und über zuvor definierte Parameter.

Algorithmen überwachen im Hintergrund die Plausibilität der Netzstruktur und die Normkonformität der Auslegung und Berechnung. Werden neue Sanitärgegenstände eingefügt, entfernt oder verändert, passt sich die Leitungsführung selbstständig an. Anlagenteile lassen sich kopieren und werden an der neuen Position automatisch an das Hauptleitungsnetz angebunden, was Änderungen vereinfacht.

Entwässerungsobjekte lassen sich beliebig kombinieren und global oder für ausgewählte Bereiche des Entwässerungsnetzes austauschen, beispielsweise um aus einer produktneutralen Vorplanung eine herstellerspezifische Ausführungs- oder Montageplanung abzuleiten. Änderungen innerhalb der Berechnung werden automatisch in alle Darstellungen und Stücklisten übernommen.

Bereits definierte Teilstränge lassen sich inklusive aller Parameter mehrfach kopieren. Wird in einem Bestandsgebäude ein vorhandenes Abwassernetz erweitert und sollen Rohrleitungsabschnitte weiter genutzt werden, ist auch eine Eingabe feststehender Nennweiten und Gefälle von Teilstrecken möglich.

Wie sich die Programme unterscheiden

Bild 7 Auch Sonderbauteile, wie Hebeanlagen werden berechnet.

Dendrit

Bild 7 Auch Sonderbauteile, wie Hebeanlagen werden berechnet.

Programme für die Auslegung von Entwässerungsnetzen haben unterschiedliche Zielgruppen: Produktspezifische Programme wie Geberit ProPlanner sind vor allem auf Fachhandwerker zugeschnitten.

Mit kostenpflichtigen Lösungen lassen sich Entwässerungsnetze mithilfe entsprechend umfangreicher Bauteildatenbanken durchweg auch produktneutral planen. Zu diesen Lösungen gehören numerische Berechnungsprogramme mit grafischer Darstellung, CAD-Programme mit aufgesetzten Berechnungsmodulen sowie CAE-Lösungen mit integrierter Kalkulation.

Sanitär-Komplettlösungen ermöglichen die parallele Planung von Trinkwasser- und Entwässerungsanlagen, mit den oben genannten Vorteilen. Nur ein Teil der Programme bietet sowohl eine Abwasser- als auch eine Regenwasser-Ablaufplanung.

Bild 8 Die Berechnungsergebnisse werden in tabellarischer und grafischer Form übersichtlich angezeigt.

Solar Computer

Bild 8 Die Berechnungsergebnisse werden in tabellarischer und grafischer Form übersichtlich angezeigt.

Unterschiede gibt es neben dem Funktionsumfang auch bei den Arbeits- und Bedienungsabläufen. Deshalb sollte man auch darauf achten, wie einfach und intuitiv oder kompliziert und umständlich Bedienungsabläufe sind. Das gilt für die Planung ebenso wie für Änderungen.

Im Gesamtkontext der Gebäudeplanung und der Koordination mit anderen Gewerken spielen Entwässerungsnetze eine wichtige Rolle. Deshalb ist BIM-modellorientierte, gewerkeübergreifende TGA-Software mit entsprechendem Entwässerungsmodul im Vorteil.  Marian Behaneck

Fachberichte mit ähnlichen Themen bündelt das TGA+E-Dossier TGA+E-Software

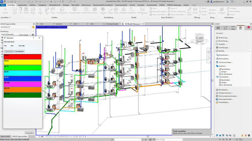
Bild 9 Leitungsarten und -dimensionen, …

liNear

Bild 9 Leitungsarten und -dimensionen, …

Literatur

[1] DIN EN 12056-2 Schwerkraftentwässerungsanlagen innerhalb von Gebäuden – Teil 2: Schmutzwasseranlagen, Planung und Berechnung. Berlin: Beuth Verlag, Januar 2001

[2] DIN EN 12056-3 Schwerkraftentwässerungsanlagen innerhalb von Gebäuden – Teil 3: Dachentwässerung, Planung und Bemessung. Berlin: Beuth Verlag, Januar 2001

[3] DIN EN 752 Entwässerungssysteme außerhalb von Gebäuden – Kanalmanagement. Berlin: Beuth Verlag, Juli 2017

[4] DIN 1986-100 Entwässerungsanlagen für Gebäude und Grundstücke – Teil 100: Bestimmungen in Verbindung mit DIN EN 752 und DIN EN 12056. Berlin: Beuth Verlag, Dezember 2016

[5] Geberit (Hrsg.): Abwasserhydraulik. Leitfaden für Planung, Dimensionierung, Ausführung und den Betrieb von Abwasseranlagen. Pfullendorf: Eigenverlag, 2022, zum Download:

[6] IZEG Informationszentrum Entwässerungstechnik Guss e.V. (Hrsg.): Planung und Ausführung von Entwässerungsanlagen für Gebäude und Grundstücke, Eigenverlag, Bonn, 3. Auflage 2015, E-Book: www.roschack.de/E-Book-IZEG

[7] Ishorst, B.: Hausentwässerung: Die Kunst des Leerlaufs. Stuttgart: Gentner Verlag, SBZ Monteur 6-2016

[8] Weitere Produkte und Anbieter (Auswahl)
    Acado Haustechnik  www.acado.ch
    Autodesk Revit MEP  www.autodesk.de
    EboCAD Sanitär  www.eboplan.ch
    Haustech-CAD Sanitär  www.bausoft.ch
    MF-Drain  www.friedrich-datentechnik.de
    Plancal nova Sanitär Abwasser  www.trimble.com
    SSS2000 Abwasserinstallation DIN EN 12056-2  www.sss2000.de

Jetzt weiterlesen und profitieren.

+ TGA+E-ePaper-Ausgabe – jeden Monat neu
+ Kostenfreien Zugang zu unserem Online-Archiv
+ Fokus TGA: Sonderhefte (PDF)
+ Webinare und Veranstaltungen mit Rabatten
uvm.

Premium Mitgliedschaft

2 Monate kostenlos testen