Springe auf Hauptinhalt Springe auf Hauptmenü Springe auf SiteSearch
Geberit

BIM-Angebot als Revit-Plug-in

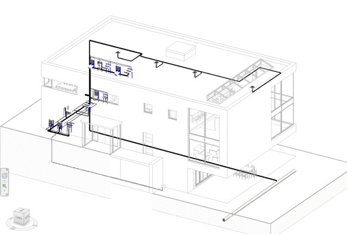
Geberit hat sein BIM-Angebot mit aktuellen Produktdaten für die digitale Planung von Sanitärinstallationen erweitert und bietet eine integrierte Lösung für Autodesk Revit an. Damit wird die Planung und Berechnung von Geberit-Produkten in einer einzigen Anwendung ermöglicht. Das 2019 in der BIM-Software eigenführte Plug-in „Geberit BIM Catalogue“ wurde in das Revit-Plug-in „Geberit BIM“ überführt.

Das gesamte Rohrleitungssortiment ist so in parametrischen und leicht handhabbaren Geometrien verfügbar. Integriert wurden auch die Duofix-, Kombifix- und GIS-Montageelemente.

Das Revit-Plug-in Geberit BIM verfügt über lizenzierbare Module: den BIM-Katalog, das Pluvia-Modul und das Installationssysteme-Modul sowie diverse Assistenten, die das digitale Planen erleichtern.

Mit einer frei konfigurierbaren Nomenklatur haben die Planer die volle Kontrolle über die Nummernvergabe für einzelne Fittings oder Rohrstücke. So kann bereits im Modell definiert werden, welche Teilstrecken als Komponenten vorgefertigt werden sollen. Neu ist auch, dass Rohrstrecken in die lieferbaren Rohrlängen unterteilt werden können. An den Verbindungsstellen werden die richtigen Fittings automatisch eingefügt. www.geberit.de

Ähnliche Fachartikel bündelt das TGAdossier TGA-Software