Springe auf Hauptinhalt Springe auf Hauptmenü Springe auf SiteSearch
Elektroplanung

Marktübersicht mit 17 Elektro-CAD-Programmen: Digitale Strippenzieher

Bild 1 Elektro-CAD unterstützt die Planung und Dokumentation von Nieder-, Mittel- und Hochspannungsanlagen, EDV- und IT-Netzwerken oder Sicherheitsanlagen.

Ziemer

Bild 1 Elektro-CAD unterstützt die Planung und Dokumentation von Nieder-, Mittel- und Hochspannungsanlagen, EDV- und IT-Netzwerken oder Sicherheitsanlagen.

Vom Angebot über die Planung, Berechnung, Ausschreibung und Ausführung bis zur Projektdokumentation unterstützt Elektro-CAD Planer und Fachbetriebe. Was können die Programme und wie unterscheiden sie sich?

Kompakt zusammengefasst
■ Nieder-, Mittel- und Hochspannungsanlagen, Telekommunikations- und EDV-Netzwerke, Antennen-, Licht-, Sicherheits- und PV-Anlagen, Bus- oder Gebäudeautomationssysteme lassen sich mit Elektro-CAD rationeller planen.
■ Automatische Berechnungen und Auswertungen, Protokolle, Prüfberichte und Dokumentationen geben mehr Planungssicherheit – sowohl bei der Installation als auch bei späteren Erweiterungen oder der Instandhaltung und Wartung.
■ Im Vergleich zu anderen TGA-Gewerken besteht teilweise noch Nachholbedarf, beispielsweise hinsichtlich der BIM-Unterstützung oder der Standardisierung des digitalen Produktdatenaustauschs.
 

CAD-Lösungen für Elektroplaner und das Elektro-Handwerk machen Arbeitsabläufe in der Akquisition und Planung, in der Arbeitsvorbereitung und Ausführung – bis zur Bestands- und Revisionsplanung sowie Dokumentation effizienter.

Funktionen zur Spannungsfallüberwachung, Leerrohr- und Leitungsberechnung, Kurzschlussstromüberprüfung oder Lichtberechnung ermöglichen eine sichere Anlagenprojektierung.

Elektrosymbole werden automatisch ausgerichtet und beschriftet, Leitungen angeschlossen, sobald ein Symbol eingefügt wird, Stromkreise dimensioniert, Stromlaufpläne, Installations-, Übersichtsschaltpläne, Aussparungs- und Schaltschrankpläne, Verteiler-, Kabeltrassen- und Aufbaupläne, Material- und Stücklisten automatisch erzeugt und anderes mehr.

Welche Bereiche unterstützt Elektro-CAD?

Bild 2 CAD-Lösungen für Elektroplaner und Installateure machen Arbeitsabläufe in der Planung, Ausführung und Dokumentation effizienter.

RED CAD Solutions

Bild 2 CAD-Lösungen für Elektroplaner und Installateure machen Arbeitsabläufe in der Planung, Ausführung und Dokumentation effizienter.
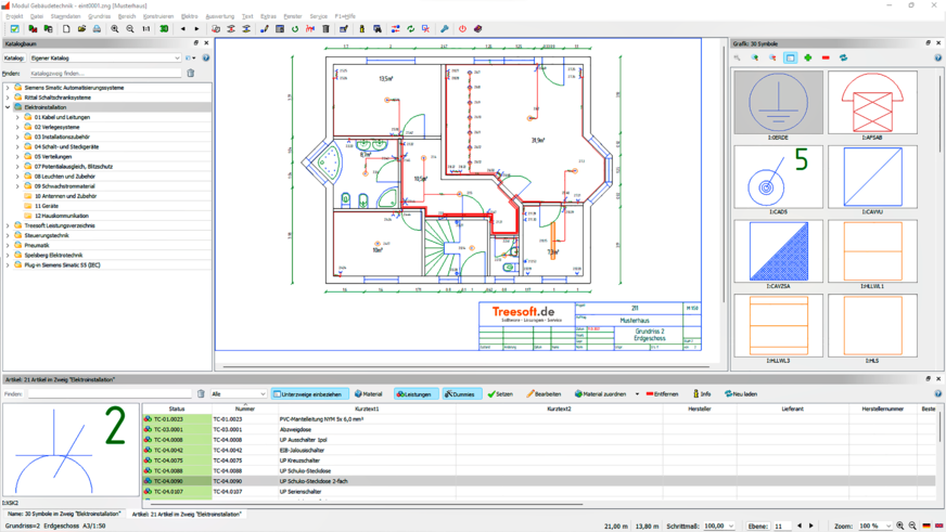
Bild 3 Basis von Elektro-Installationsplänen sind entweder importierte oder mit dem integrierten Editor erzeugte Grundrisse.

Treesoft

Bild 3 Basis von Elektro-Installationsplänen sind entweder importierte oder mit dem integrierten Editor erzeugte Grundrisse.
Bild 4 3D-fähige Programme ermöglichen eine dreidimensionale Trassenplanung oder räumliche Visualisierungen.

Graphisoft Building Systems

Bild 4 3D-fähige Programme ermöglichen eine dreidimensionale Trassenplanung oder räumliche Visualisierungen.
Bild 5 Individuell erweiterbare Bauteilkataloge, automatische Plan- oder Legendengenerierungen vereinfachen die Elektroplanung.

C.A.T.S. Software

Bild 5 Individuell erweiterbare Bauteilkataloge, automatische Plan- oder Legendengenerierungen vereinfachen die Elektroplanung.
Bild 6 Automatismen beschleunigen die Erstellung von Installations- und Verteilerplänen, Stromkreis- und Verteilerlisten, Übersichts-, Schalt-, Steigleitungs- oder Stromlaufplänen.

IGE+XAO Software+Vertrieb

Bild 6 Automatismen beschleunigen die Erstellung von Installations- und Verteilerplänen, Stromkreis- und Verteilerlisten, Übersichts-, Schalt-, Steigleitungs- oder Stromlaufplänen.
Bild 7 Aus herstellerneutralen oder -spezifischen Bibliotheken abrufbare Elektrosymbole enthalten alle elektrischen und installationstechnischen Werte.  

Ziemer

Bild 7 Aus herstellerneutralen oder -spezifischen Bibliotheken abrufbare Elektrosymbole enthalten alle elektrischen und installationstechnischen Werte.
 

Elektro-CAD fügt Elektrosymbole in Grundrisspläne ein, verkabelt diese, berechnet Stromkreise und gibt alle für die Planung und Ausführung erforderlichen Pläne und Listen aus. Die aus herstellerneutralen oder -spezifischen Bibliotheken abrufbaren, parametrisierbaren Elektrosymbole enthalten elektrische Eigenschaften (Leistung, IP-Schutzklasse, Spannung etc.) sowie Installationsangaben (Einbauhöhe, Schaltkreisart etc.), die individuell angepasst, ergänzt, in der Zeichnung dargestellt und ausgewertet werden können.

Die eingefügten Symbole dienen als Grundlage für Material- und Stücklisten, die Materialbeschaffung und Preisermittlung. Planlegenden werden automatisch erstellt und können individuell konfiguriert werden. Elektro-CAD kann darüber hinaus auch Leistungsverzeichnisse oder Angebote erstellen, Projekte dokumentieren oder Daten an Gebäudemanagement-Systeme übergeben.

Neben Nieder-, Mittel- und Hochspannungsanlagen, Telekommunikations- oder EDV-Netzwerken, Einbruch- oder Brandmeldeanlagen unterstützt Elektro-CAD teilweise auch die Planung der Beleuchtung, von Bus- und Gebäudeautomationssystemen oder die Schlitz- und Durchbruchsplanung.

Auch den Aufwand für Projektdokumentationen und die Abnahme elektrischer Anlagen wird durch Stromlaufpläne, Installationspläne, Übersichtsschaltpläne oder Prüfprotokolle zur Erfassung von Messwerten vereinfacht. Sind die Elektroobjekte nach Ordnungszahl (Los, Titel, Position), Gebäudeteil (Gebäude, Stock, Raum), Verteiler und Stromkreis nachvollziehbar zugeordnet, lassen sich die Daten strukturiert an Gebäudemanagement-Systeme (CAFM) übergeben und liefern in der Nutzungsphase wichtige Informationen für Wartungs- und Instandhaltungsmaßnahmen.

Wie und was wird berechnet?

Elektro-CAD macht aufwendige Berechnungen nach DIN-VDE-, EN- und IEC-Regelwerken sicherer und wirtschaftlicher. Berechnungsfunktionen für Bauteile und Stromkreise, für den Spannungsfall zur Kontrolle der zulässigen Leitungslängen, für die Kabel- und Trassendimensionierung oder Kurzschluss-Nachweise vereinfachen die Planung, berücksichtigen den Verschnitt und weisen auf die Überschreitung maximaler Leitungslängen hin.

Stromkreise werden auf korrekte Kabel- und Bauteilanschlüsse geprüft und unter Beachtung der Verlegeart oder Kabelhäufung geschossübergreifend dimensioniert. Werden Installationsrohre verwendet, ermittelt das Programm alle Nennweiten und Typen.

Da Elektro-CAD aus den Projektdaten Mengen ermittelt, die mit Preisen hinterlegt sind, sind auch präzise Materialkosten-Vorhersagen möglich. Berechnungsergebnisse oder Änderungen werden im Plan sofort angezeigt und in Reportform ausgegeben.

Für die Beleuchtungsplanung kann die erforderliche Anzahl von Leuchten für eine bestimmte Beleuchtungsstärke berechnet und platziert werden. Über Schnittstellen zu externen Lichtberechnungsprogrammen, wie Dialux oder Relux, können Raumleuchten dimensioniert, passende Leuchten ausgewählt und deren Lichtwirkung im Raum visualisiert werden.

Anhand dreidimensionaler Ansichten der Kabeltrassenführung lassen sich Kollisionen auch mit anderen technischen Gewerken oder dem Tragwerk frühzeitig erkennen.

Planung der Elektro-Installationen

Ist der Gebäudegrundriss als Grundlage des Installationsplans lediglich in Papierform verfügbar, kann er gescannt und auf dieser Arbeitsgrundlage Wand für Wand mit dem integrierten Editor eingegeben werden. Liegt der Grundriss oder das Gebäude als DXF-, DWG- oder IFC-Datei vor, kann sie importiert und die Installationsplanung auf dieser Basis erfolgen.

Dabei werden die gewünschten Elektrosymbole aus der (Online-)Symboldatenbank mit einer genauen Spezifikation technischer oder kaufmännischer Daten, der Montagehöhe, der Belastungswerte, der Artikelnummer etc. ausgewählt und im Grundriss positioniert. Die Objekte werden automatisch dem zugehörigen Raum, Verteiler und Stromkreis, sowie der zugehörigen Zeichnungsfolie oder -ebene zugeordnet.

Mit der Positionierung der Schalter-, Steckdosen-, Verteiler-, Leuchtenobjekte etc. stehen gleichzeitig auch alle produktspezifischen Eigenschaften der Artikel für Berechnungen oder die Stücklistengenerierung zur Verfügung.

Für die Planung des Verlegungssystems und der Kabeltrassen muss die Trassenführung der Kabelbahnen, Kanäle und Rohre vorgegeben werden. Abstände zu Wänden oder beliebigen Konturen können ebenso angegeben werden, wie Veränderungen des Querschnittes oder der Einsatz von Formteilen. Das Programm berechnet die erforderlichen Maße und Mengen und ermittelt die erforderlichen Bauteile aus der individuell erweiterbaren Bauteildatenbank.

Informationen über Stromkreis, Verteilung und Leitungstyp lassen sich an jeder Stelle eines Kabelstrangs oder einer Leitung abrufen und in die Zeichnung einfügen. Übersichts-, Schalt-, Steigleitungs- und Stromlaufpläne werden nach Bedarf automatisch erzeugt.

Kanal- und Leerrohrkonstruktionen oder Elektro-Objekte, wie Schalter, Leuchten oder Verteiler etc., werden als Stückliste ausgegeben, die ausgedruckt oder an AVA-, Angebots- oder Tabellenkalkulationsprogramme übergeben werden kann.

Auch die Aussparungsplanung wird teilweise unterstützt. So können Aussparungen, Durchbrüche und Schlitze über Dialogfenster individuell definiert, geändert, automatisch bemaßt oder nach bestimmten Kriterien sortiert und ausgegeben werden.

Wie unterscheiden sich die Programme?

Bild 9 Da bei der Elektroplanung immer mehr auch EDV- und IT-Anlagen, Antennen-, Licht-, Sicherheits- und Photovoltaik-Anlagen oder die Gebäudeautomation berücksichtigt werden müssen, unterstützen einige Programme auch diese Bereiche.

Ziemer

Bild 9 Da bei der Elektroplanung immer mehr auch EDV- und IT-Anlagen, Antennen-, Licht-, Sicherheits- und Photovoltaik-Anlagen oder die Gebäudeautomation berücksichtigt werden müssen, unterstützen einige Programme auch diese Bereiche.
Bild 8 Auch die Beleuchtungsplanung und -visualisierung wird durch integrierte oder externe Programme unterstützt.  

Graphisoft Building Systems

Bild 8 Auch die Beleuchtungsplanung und -visualisierung wird durch integrierte oder externe Programme unterstützt. 
 

Unterschieden wird Elektro-CAD in 2D-zeichnungsorientierte und 3D-fähige Programme, die beispielsweise auch eine dreidimensionale Trassenplanung oder räumliche Visualisierungen ermöglichen. Sind die Programme objektorientiert, d. h. alle Zeichnungsobjekte mit individuellen Datenbankinformationen hinterlegt, lassen sich sämtliche für die Elektroplanung, Ausschreibung, Angebotserstellung und Installation notwendigen Informationen und Dokumente ableiten.

Unterschieden wird auch zwischen Programmen mit externen Berechnungsaufsätzen anderer Hersteller und Programmen mit integrierten Berechnungsfunktionen. Letztere bieten Vorteile, insbesondere bei häufigen Änderungen und im Arbeitsablauf.

Einige Programme verfügen über einen eigenen CAD-Kern, andere bauen als Applikationslösung auf Standard-CAD-Programmen, beispielsweise AutoCAD oder BricsCAD, auf. Auch im Webbrowser aufrufbare Elektroplaner gibt es inzwischen – sie sind mobil, flexibel und stets aktuell. Elektro-CAD-Programme, die Teil einer TGA-Komplettlösung sind, ermöglichen auch Kollisionsprüfungen mit SHK-Gewerken.

Einsatzschwerpunkte der rund 20 Programme für Elektro-CAD (siehe Tabelle und Info-Kasten) liegen nicht nur auf der Elektro-Installation. Einige Anbieter haben sich auf die Planung von Elektroschaltschränken oder die Automatisierungs- und Steuerungstechnik spezialisiert, zum Beispiel Ecscad, ELSchrank, Electrix oder Eplan.

Für das Handwerk zugeschnittenes Elektro-CAD, etwa LVZ ElektroCAD, SCC-CAD Elektro oder Treesoft CAD, ist direkt mit einer ERP-Branchensoftware für die Erstellung von Angeboten und Rechnungen verknüpft.

Andere Elektro-CAD-Programme oder -Module sind Teil einer umfangreichen CAD-Lösung für die Gebäudetechnik, wie AX3000, C.A.T.S., DDS-CAD, MagiCAD oder Pit-CAD etc.

Die Preise für Elektro-CAD liegen zwischen 300 und etwa 5000 Euro und mehr, je nach Funktionsumfang und Ausbaustufe. Hinzu kommen gegebenenfalls Kosten für Zusatzmodule, einmalige Schulungskosten zwischen 400 und 800 Euro pro Tag und Person, sowie jährliche Wartungskosten in Höhe von etwa 10 bis 15 % des Software-Kaufpreises.

Bild 10 Anhand von 3D-Ansichten der Kabeltrassenführung lassen sich Kollisionen innerhalb des eigenen Gewerks oder mit anderen TGA-Gewerken frühzeitig erkennen. 

IBS Döbeln

Bild 10 Anhand von 3D-Ansichten der Kabeltrassenführung lassen sich Kollisionen innerhalb des eigenen Gewerks oder mit anderen TGA-Gewerken frühzeitig erkennen.
 

Was sind die aktuellen Trends?

Da bei der Elektroplanung immer mehr auch EDV- und IT-Anlagen, Antennen-, Licht-, Sicherheits- und PV-Anlagen oder die Gebäudeautomation berücksichtigt werden müssen, unterstützen die meisten Programme diese Bereiche mit entsprechenden Funktionen und Modulen.

Ein weiterer Trend ist die BIM-Planungsmethode. Viele Programme können das BIM-Standardformat IFC inzwischen in den Versionen 2x3 und teilweise auch 4 importieren. Damit können sich Elektroplaner an BIM-Projekten beteiligen und beispielsweise prüfen, ob Kabeltrassen mit anderen TGA-Gewerken kollidieren.

Obwohl die Elektrotechnik ein sehr komplexes gebäudetechnisches Gewerk mit vielen Einzelteilen und Baugruppen ist, hinkt die Elektro-CAD der SHK-Planung beim BIM-Produktdatenaustausch (VDI 3805) hinterher. Dagegen ist die CAD-Datenübergabe an die Fertigung und Produktion elektrischer und elektronischer Bauteile auf aktuellem Stand: So können beispielsweise CAD-Daten an Fertigungszentren übergeben, die Montageplatten für die Schaltschrankinstallation vorbereiten oder Schaltschränke verdrahten. Marian Behaneck

Fachberichte mit ähnlichen Themen bündelt das TGAdossier TGA-Software

Literatur / weitere Infos

[1] www.baunetzwissen.de/elektro Baunetzwissen, Rubrik Elektro
[2] www.cad.de  CAD-Portal, Rubrik: Elektrotechnik
[3] www.elektro.net  Magazin Elektro-/Gebäudetechnik
[4] www.elektrofachkraft.de  Magazin für Elektrofachkräfte
[5] www.elektropraktiker.de  Magazin Elektropraktiker
[6] www.gebaeudedigital.de  Magazin GD Gebäudedigital

Weitere Programme und Anbieter (Auswahl)

Acado Haustechnik www.acado.ch
AutoCAD Electrical Toolset  www.autodesk.de
cadett Elsa  www.cadett.se
Caneco One  www.alpi-software.de
Eplan  www.eplan.de
ESplan  www.esplan.eu
EXS  www.exs-cae.com
liNear  www.linear.de
ProPlan  www.amperesoft.net
Tricad MS  www.venturisit.de
Trimble Nova  mep.trimble.com